Spacious modern four‑bedroom house with woodland views and seaside access.
Architectural reverse‑level design with dramatic top‑floor living space
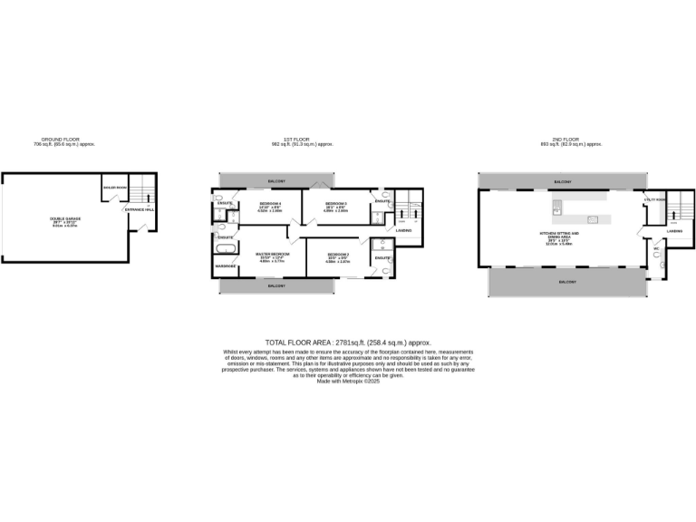
This striking reverse‑level detached house delivers nearly 2,700 sq ft of contemporary living across a private gated development. The top‑floor 39' x 18' open-plan living/dining/kitchen is a dramatic, light-filled entertaining space opening to front and rear terraces with woodland and countryside views. Four double bedrooms—all with ensuite facilities—sit on the middle level; the principal suite includes a walk‑in wardrobe, dual‑ended bath and balcony.
Built in 2020 to an architectural specification, the home benefits from double glazing, insulated timber‑frame construction, underfloor heating and an air‑source heat pump, achieving a B EPC and low running emissions. Practical features include an oversized double garage, carport and multiple parking areas, integrated NEFF/AEG kitchen appliances, CCTV and a 10‑year LABC warranty. The large, sloped plot and multiple terraces suit outdoor dining, socialising and enjoying the elevated wooded aspect.
The property is well placed for coastal access and the amenities of Bideford — walkable to town yet peaceful and private — making it appealing as a main residence or a high‑quality second home. It will particularly suit buyers seeking contemporary finishes, generous entertaining space and easy maintenance rather than period renovation.
Notable practical points: there is an annual communal charge for maintenance of shared areas (circa £2,000–2,500), council tax is described as expensive, and broadband speeds in the area are slow. The reverse‑level layout places principal living on the top floor, which may not suit buyers needing single‑level living or limited stair use.
5 bedroom house for sale in Marine Parade, Instow, Bideford, EX39 — £850,000 • 5 bed • 3 bath • 1791 ft²
4 bedroom detached house for sale in Langmead Drive, Bideford, Devon, EX39 — £650,000 • 4 bed • 3 bath • 1980 ft²
4 bedroom detached house for sale in Bideford, North Devon, EX39 — £575,000 • 4 bed • 3 bath • 2314 ft²
4 bedroom detached house for sale in Goodleigh, Barnstaple, North Devon, EX32 — £925,000 • 4 bed • 3 bath • 1409 ft²
5 bedroom detached house for sale in Plot 10 Sun Houses C, Yelland, Barnstaple, Devon, EX31 — £500,000 • 5 bed • 3 bath • 1788 ft²
4 bedroom detached house for sale in Langmead Drive, Bideford, Devon, EX39 — £595,000 • 4 bed • 3 bath • 1980 ft²






























































