Custom-build detached home with panoramic countryside views and fast guaranteed delivery.
Private gated development with elevated rural views
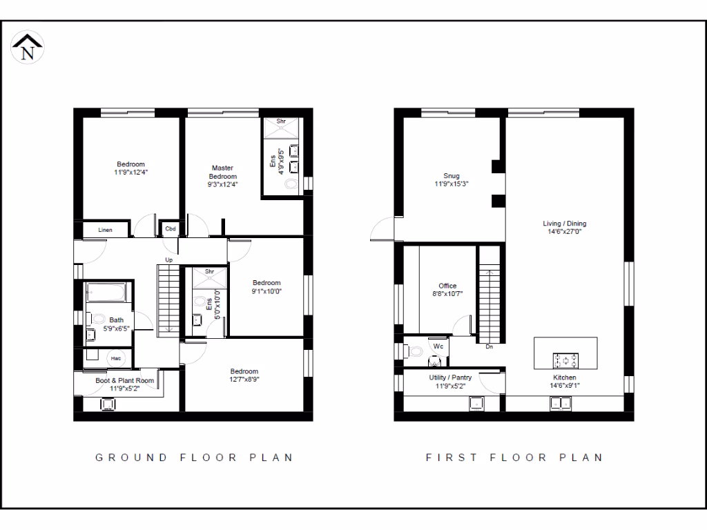
Set within a private gated development just minutes from Bideford and the coast, this bespoke four-bedroom detached home offers contemporary living with far‑reaching rural views. The design, pre-consented and architect-led, delivers almost 2,000ft² of flexible, high-ceilinged accommodation with large glazing, balcony and landscaped communal grounds. Buyers can personalise layout, finishes and fittings to suit family life.
The homes are factory-built timber frames with triple glazing, mechanical heat recovery and a 20-year structural warranty, promising energy efficiency and fast, guaranteed build times. Each plot is serviced with driveways, drainage and utilities, and the turnkey build route reduces the usual delays and complications of self-build while allowing tailored specification choices.
Important considerations: broadband speeds in the area are reported as slow, and selected upgrades or bespoke changes will incur additional costs and may need further approvals. Plot sizes are generous but not extensive private estates; communal landscaped features and a stream-side amenity are shared. Council tax is not yet confirmed.
This opportunity suits a family seeking a contemporary, energy-efficient home in a semi-rural setting with scope to personalise. If you value modern design, privacy and quick delivery over purchasing an older, ready-made property, this custom-build route offers strong value and control over final specification.
4 bedroom detached house for sale in Langmead Drive, Bideford, Devon, EX39 — £725,000 • 4 bed • 3 bath • 1980 ft²
Plot for sale in Cleave Wood, Langmead Drive, Bideford, EX39 — £250,000 • 1 bed • 1 bath • 2834 ft²
Plot for sale in Cleave Wood, Langmead Drive, Bideford, EX39 — £250,000 • 1 bed • 1 bath • 2834 ft²
Plot for sale in Cleave Wood, Langmead Drive, Bideford, EX39 — £250,000 • 1 bed • 1 bath • 2834 ft²
4 bedroom detached house for sale in Goodleigh, Barnstaple, North Devon, EX32 — £950,000 • 4 bed • 3 bath • 1073 ft²
4 bedroom detached house for sale in Langmead Drive, Bideford, Devon, EX39 — £675,000 • 4 bed • 4 bath • 2700 ft²










































