Modern fittings, huge plot and detached double garage near the Wolds.
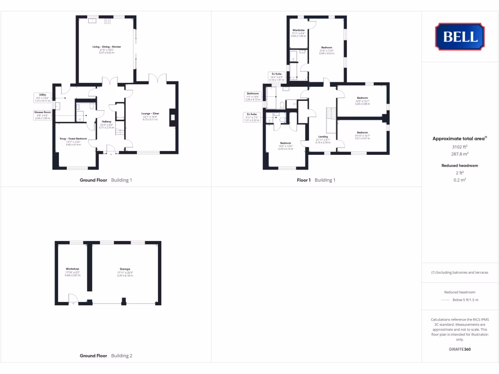
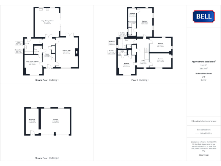
Large 4/5-bedroom detached family house, approx 3,102 sq ft
Set on a substantial plot at the edge of the Lincolnshire Wolds, Oak Field House is a spacious 4/5-bedroom detached family home with generous reception space and modern fittings. The rear open-plan living-dining-kitchen is the heart of the house, complemented by a large separate living-dining room, utility, and a ground-floor snug/guest bedroom. Two principal bedrooms have en-suite facilities and a family bathroom serves the first floor.
Externally the property benefits from a huge gravel forecourt providing ample parking, plus a detached double garage and adjoining workshop. Front and rear gardens offer scope for landscaping; the site provides open, semi-rural views and strong potential for those seeking extra outdoor space.
Practical points to note: the home sits in a relatively remote village with average mobile signal and slow broadband speeds; council tax is described as expensive. The property suits buyers seeking a roomy, modern family house in a quiet, rural setting rather than immediate town-centre convenience.
Plot for sale in Main Road, Hagworthingham, Spilsby, PE23 — £130,000 • 5 bed • 3 bath • 2265 ft²
4 bedroom detached house for sale in Main Road, Holland Fen, Lincoln, Lincolnshire, LN4 — £325,000 • 4 bed • 2 bath • 2215 ft²
5 bedroom detached house for sale in Oakmont, 125 Main Road, Hundleby, Spilsby, PE23 — £925,000 • 5 bed • 2 bath • 3888 ft²
5 bedroom detached house for sale in Horncastle Road, Woodhall Spa, LN10 — £625,000 • 5 bed • 4 bath • 2200 ft²
3 bedroom detached house for sale in 61 Woodland Drive, Woodhall Spa, LN10 — £525,000 • 3 bed • 2 bath • 1891 ft²
4 bedroom detached house for sale in Park Lane, Heighington, Lincoln, LN4 — £575,000 • 4 bed • 2 bath • 2400 ft²






















































































