Renovated multi-level home with driveway and terraces, ideal for family life.
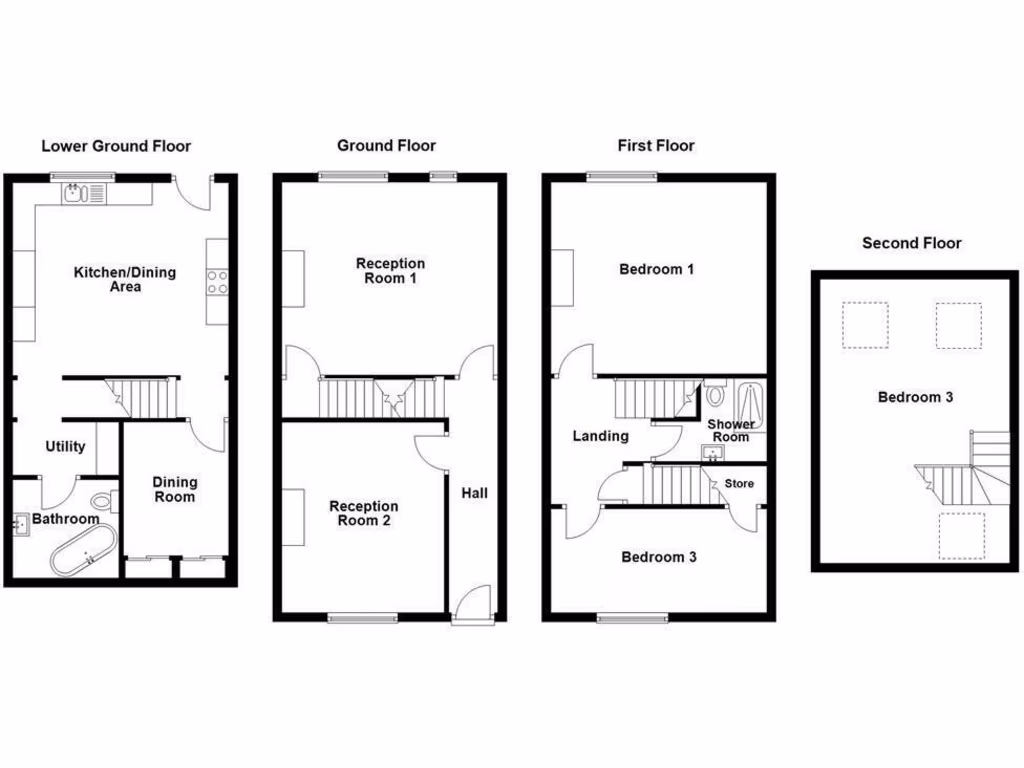
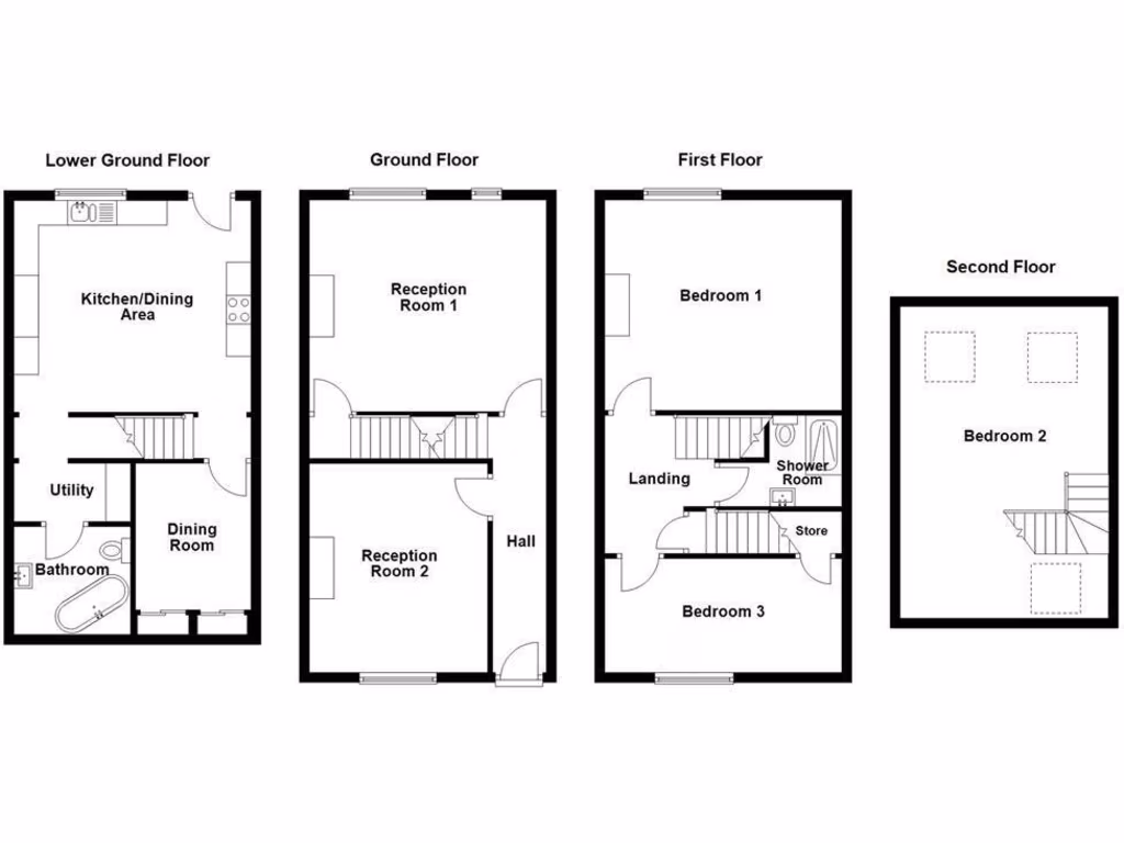
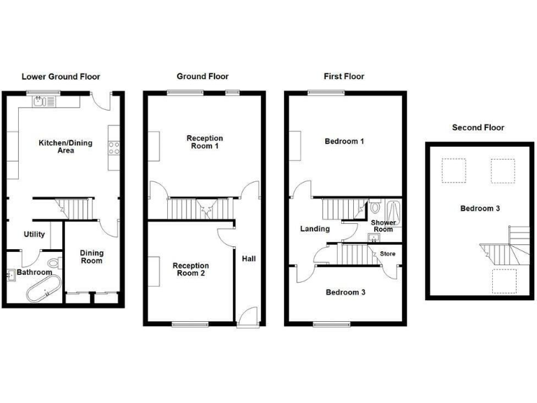
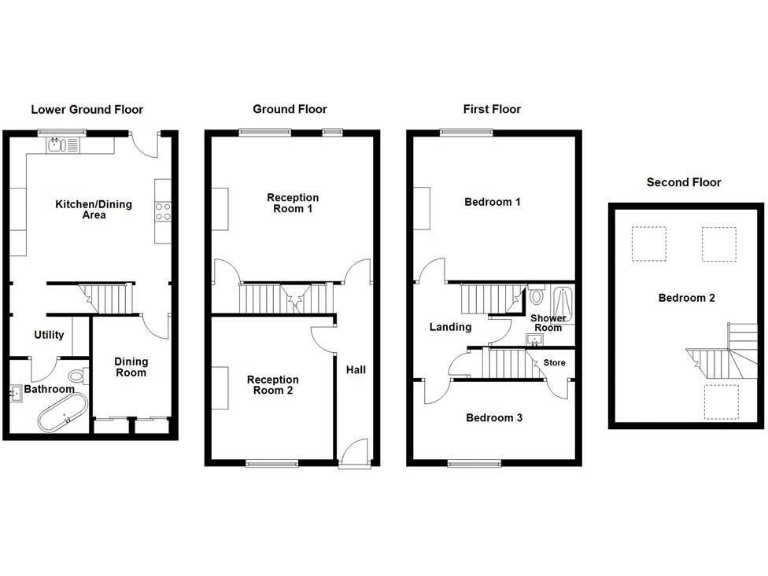
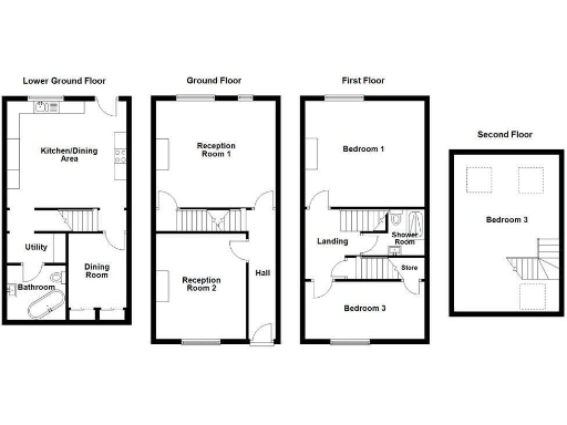
Three double bedrooms and two bathrooms across four floors
Large open-plan lower-ground kitchen and dining area
Two reception rooms with high ceilings and period features
Two paved terraced areas and a double off-street driveway
Recently fully transformed — largely move-in ready
Traditional sandstone walls; assumed no wall insulation
Leasehold tenure; EPC rating D
Council Tax Band B, low local crime and fast broadband
This striking mid-terrace in Ramsbottom has been fully renovated to offer generous family accommodation across four levels. High ceilings, period detail and contemporary fittings combine with three double bedrooms and two bath/shower rooms to deliver comfortable everyday living and entertaining space.
The lower-ground open-plan kitchen and dining area is the social heart, with a utility room and family bathroom adjacent. Two reception rooms on the ground floor provide flexible living — formal and informal spaces — while the large second-floor bedroom could serve as a master suite, playroom or home office.
Externally the property benefits from two paved terraced areas and a double driveway, a notable convenience in this location. Practical details include mains gas central heating, double glazing and a recent full refurbishment making the house largely move-in ready.
A few factual points to note: the house is leasehold and has an EPC rating of D. The building is of traditional sandstone construction and is assumed to have no wall insulation, which may affect running costs and future upgrade plans. Council tax is low (Band B). Overall this property will suit growing families seeking a stylish, characterful home close to local schools, transport links and Ramsbottom amenities.
3 bedroom terraced house for sale in Bolton Road North, Ramsbottom, Bury, BL0 — £299,950 • 3 bed • 2 bath • 1154 ft²
3 bedroom terraced house for sale in Bolton Road West, Ramsbottom, BL0 — £260,000 • 3 bed • 1 bath • 1069 ft²
3 bedroom terraced house for sale in Bolton Road West, Ramsbottom, BL0 — £260,000 • 3 bed • 1 bath • 1324 ft²
3 bedroom town house for sale in Grant Mews, Ramsbottom, BL0 — £260,000 • 3 bed • 2 bath • 794 ft²
4 bedroom terraced house for sale in Bolton Street, Ramsbottom, Bury, BL0 9JD, BL0 — £700,000 • 4 bed • 3 bath • 2196 ft²
4 bedroom house for sale in Earl Road, Ramsbottom, Bury, BL0 — £350,000 • 4 bed • 2 bath • 1306 ft²






























































































































































































































