Ideal village home near station, schools and countryside walks.
- Approximately 1,636 sq ft of living space
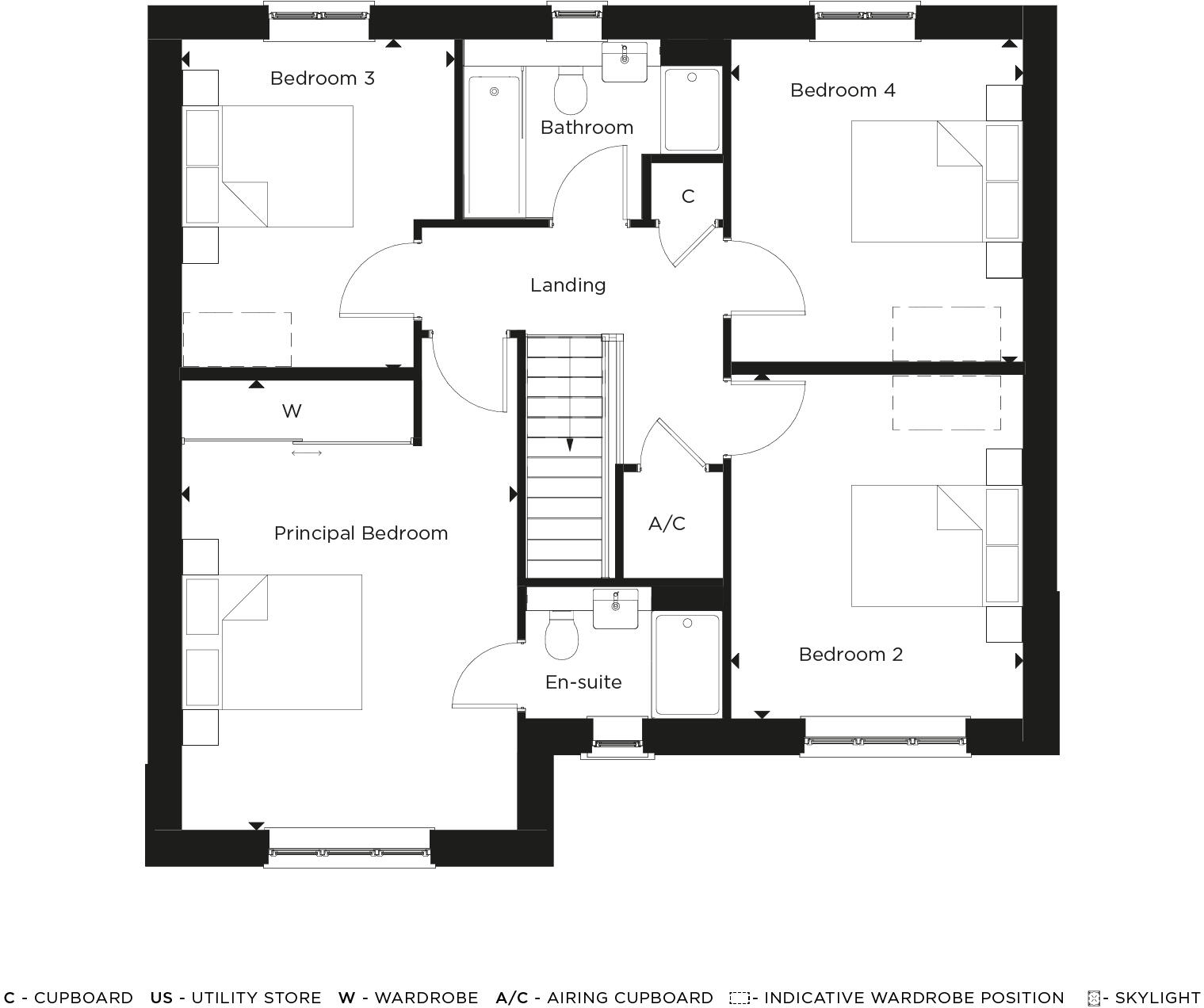
- Four double bedrooms including principal with en-suite
- Expansive open-plan kitchen/living/dining with integrated appliances
- Underfloor heating to ground floor and fitted flooring throughout
- Detached garage, driveway for two cars and EV charging point
- Turfed rear garden; overlooks green open space
- New-build with 10-year NHBC warranty; ready Dec 2025/Jan 2026
- Part of a development — confirm final layout and specification
A bright, newly built four-bedroom semi in Audley Green, ready to move into late 2025/early 2026 with a Stamp Duty contribution available on selected homes. The ground floor is designed for modern family life with an expansive open-plan kitchen/living/dining area fitted with integrated appliances, Caesarstone worktops and doors opening onto a turfed rear garden. Underfloor heating across the ground floor, an EV charging point, detached garage and driveway for two add practical, low-maintenance conveniences.
The principal bedroom benefits from an en-suite and bespoke fitted wardrobes, with three further double bedrooms and a dedicated study offering flexible space for a home office or playroom. A separate utility room and fitted flooring throughout underline the property’s move-in readiness and family focus. The home comes with a 10-year NHBC warranty as a new build guarantee.
Set in a very affluent village location, the property overlooks green open space and is a short walk to Great Chesterford train station, local shops, cafes and well-regarded primary schools. It suits buyers seeking contemporary village living with quick rail links to Cambridge and London and easy airport access.
Note the property is part of a new development: some internal photography is representative and individual layouts/finishes may vary. Check exact completion date, full specification and final room measurements before committing. Stamp Duty Contribution terms and availability apply.
4 bedroom detached house for sale in London Road,
Great Chesterford,
CB101NY, CB10 — £789,950 • 4 bed • 1 bath • 1247 ft²
4 bedroom detached house for sale in London Road,
Great Chesterford,
CB101NY, CB10 — £789,950 • 4 bed • 1 bath • 1636 ft²
4 bedroom semi-detached house for sale in London Road,
Great Chesterford,
CB101NY, CB10 — £569,950 • 4 bed • 1 bath • 1399 ft²
4 bedroom semi-detached house for sale in London Road,
Great Chesterford,
CB101NY, CB10 — £599,950 • 4 bed • 1 bath • 1410 ft²
3 bedroom semi-detached house for sale in London Road,
Great Chesterford,
CB101NY, CB10 — £559,950 • 3 bed • 1 bath • 1389 ft²
3 bedroom detached house for sale in London Road,
Great Chesterford,
CB101NY, CB10 — £600,000 • 3 bed • 1 bath • 1238 ft²






















































































