Spacious modern living in a quiet village cul-de-sac with excellent commuter links.
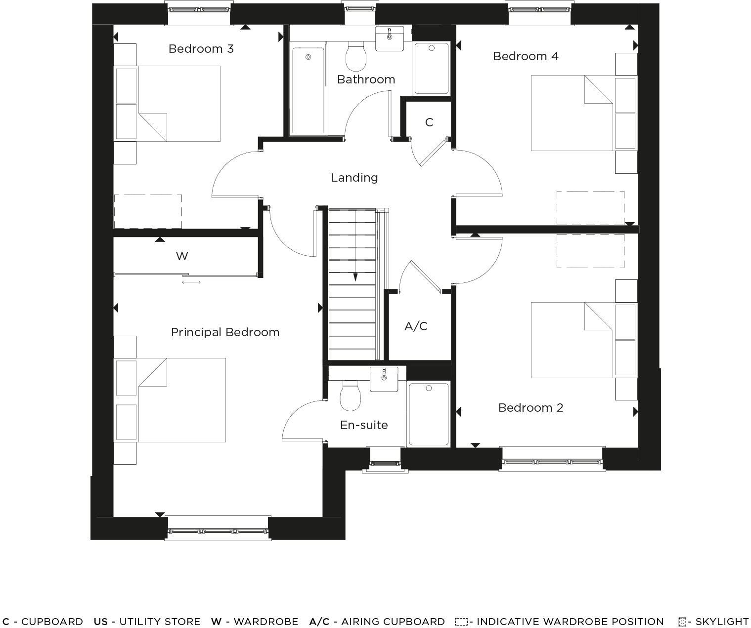
Four double bedrooms including principal with en-suite and fitted wardrobes
This detached four-double-bedroom home in Great Chesterford offers spacious, modern family living across approximately 1,636 sq ft. The ground floor centres on an expansive open-plan kitchen/living/dining area that opens onto a south-facing garden, complemented by a separate family room, dedicated study and utility for practical day-to-day living. The principal bedroom benefits from bespoke fitted wardrobes and an en-suite. Garage and driveway parking for two cars include an EV charging point.
Located in a quiet cul-de-sac with direct access to open countryside and within a 10-minute walk of Great Chesterford station, the property suits commuters and families seeking village life with good links to Cambridge and London. Local amenities, good schools and nearby green spaces add lifestyle appeal. The development is new build and ready to move into around January–February 2026, with a Stamp Duty contribution of up to £28,997 available subject to terms.
Important practical points: the listing records only one bathroom (the principal en-suite), which may be limiting for a four-bedroom household and could require consideration of additional bathroom provision. Council tax band and some specification details are not provided. Stamp Duty contribution terms apply and are not guaranteed for every buyer or plot.
4 bedroom detached house for sale in London Road,
Great Chesterford,
CB101NY, CB10 — £789,950 • 4 bed • 1 bath • 1636 ft²
4 bedroom semi-detached house for sale in London Road,
Great Chesterford,
CB101NY, CB10 — £749,950 • 4 bed • 1 bath • 1636 ft²
4 bedroom semi-detached house for sale in London Road,
Great Chesterford,
CB101NY, CB10 — £599,950 • 4 bed • 1 bath • 1410 ft²
4 bedroom semi-detached house for sale in London Road,
Great Chesterford,
CB101NY, CB10 — £569,950 • 4 bed • 1 bath • 1399 ft²
3 bedroom semi-detached house for sale in London Road,
Great Chesterford,
CB101NY, CB10 — £559,950 • 3 bed • 1 bath • 1389 ft²
5 bedroom detached house for sale in London Road,
Great Chesterford,
CB101NY, CB10 — £949,950 • 5 bed • 1 bath • 2045 ft²










































