New high-spec family house with parking and fast rail links.
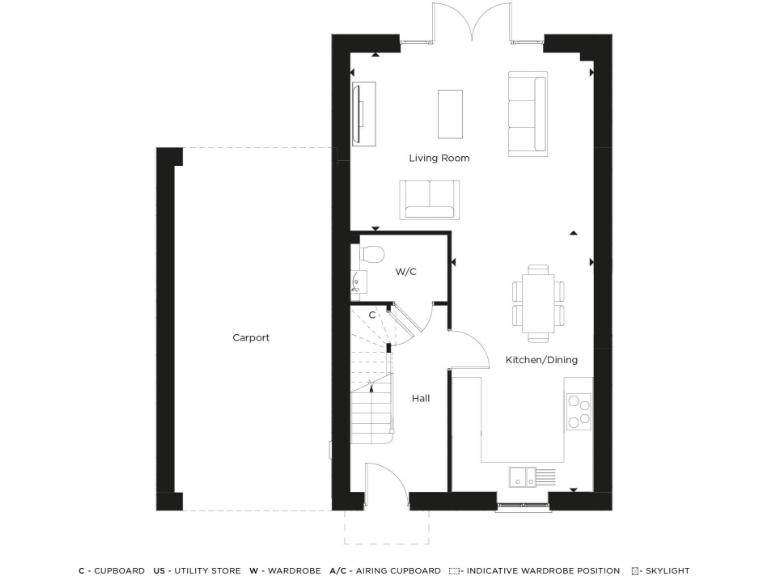
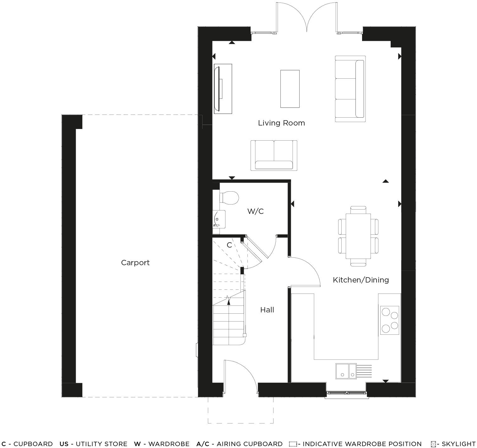
Three-bedroom new-build home marketed as The Primrose
The Primrose at Audley Green is a newly built three-bedroom home designed for everyday family life. The ground floor offers an open-plan kitchen/dining/living area and a separate living room that opens to a south-west facing garden, while the first floor includes a principal bedroom with fitted wardrobe and ensuite alongside two further bedrooms.
High-spec touches include a shaker-style kitchen with Caesarstone worktops and integrated appliances, underfloor heating across the ground floor, an air-source heat pump, EV charging point and fitted flooring throughout. Practical parking is provided by a car port with space for two cars. The home is marketed with a 10-year NHBC warranty and is expected to be ready to move into around December/January 2026.
The village location suits families who want countryside access without giving up rail links: Great Chesterford station is about a 10-minute walk, and the well-regarded Great Chesterford C of E Primary School is roughly 15 minutes on foot. Local pubs, village shops and countryside walks are all nearby, with Cambridge and London reachable by rail for commuting or day trips.
Important notes: the listing material is brochure-led and no independent photos of this specific plot are provided; buyers should arrange a site visit and inspect finished accommodation, plot boundaries and garden size before committing. The rear garden is modest to average for the development and the layout is best suited to mid-market family buyers looking for a modern, low-maintenance home.
5 bedroom detached house for sale in London Road,
Great Chesterford,
CB101NY, CB10 — £949,950 • 5 bed • 1 bath • 2045 ft²
4 bedroom semi-detached house for sale in London Road,
Great Chesterford,
CB101NY, CB10 — £569,950 • 4 bed • 1 bath • 1399 ft²
4 bedroom semi-detached house for sale in London Road,
Great Chesterford,
CB101NY, CB10 — £749,950 • 4 bed • 1 bath • 1636 ft²
4 bedroom semi-detached house for sale in London Road,
Great Chesterford,
CB101NY, CB10 — £599,950 • 4 bed • 1 bath • 1410 ft²
4 bedroom detached house for sale in London Road,
Great Chesterford,
CB101NY, CB10 — £789,950 • 4 bed • 1 bath • 1636 ft²
3 bedroom semi-detached house for sale in London Road,
Great Chesterford,
CB101NY, CB10 — £559,950 • 3 bed • 1 bath • 1389 ft²


































































