**Standout Features:**
- **Fixed Price:** £60,000
- **Plot Size:** 0.31 acre (to be confirmed by Title Deed)
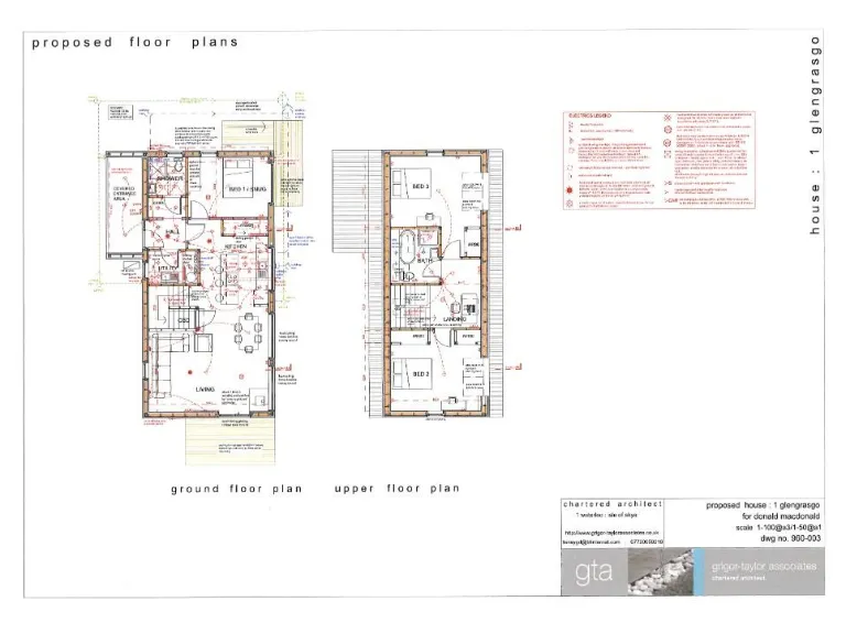
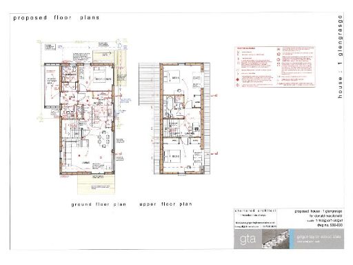
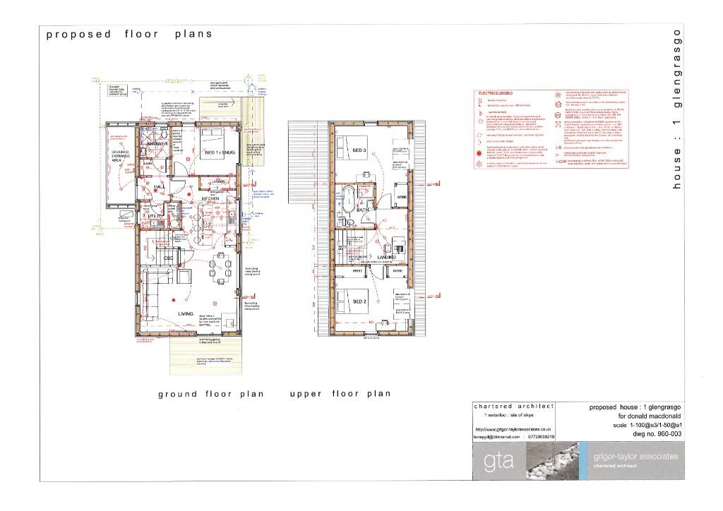
- **Planning Permission:** Detailed planning approved for a 1½ storey, three-bedroom home.
- **Rural Setting:** Panoramic views in a tranquil, scenic area.
- **Access:** Levelled site with access created from the township road.
- **Future Potential:** Ideal for building a family residence or investment property.
**Summary:**
Take advantage of this unique opportunity to own a 0.31-acre plot in Glengrasco, Portree, offering breathtaking views of the stunning Isle of Skye landscape. With detailed planning permission in place for a 1½ storey, three-bedroom home, this site is ready for your vision to come to life. The access has already been established, streamlining your path to construction.
Situated in a peaceful rural setting and just a short drive from Portree, this plot offers the perfect balance of seclusion and accessibility. Enjoy community amenities in Portree, such as schools, shops, and healthcare facilities, while also relishing the beauty of island living.
While the purchaser will need to arrange for services such as water, electricity, and a septic system connection, this blank canvas is a fantastic investment for families looking to build their dream home or investors seeking an attractive rental opportunity. Don’t miss your chance to secure this plot in a highly desirable location—opportunities like this won't last long!
Plot for sale in Building Plot, Woodend, Portree, Isle Of Skye, IV51 9LN, IV51 — £46,000 • 1 bed • 1 bath
Plot for sale in Plot at 1, Glenuachdarach, Glenhinnisdal, Portree, Isle of Skye, IV51 9XA, IV51 — £40,000 • 1 bed • 1 bath
Plot for sale in Plot at Kensaleyre, Portree, ISLE OF SKYE, IV51 — £125,000 • 1 bed • 1 bath
Plot for sale in Plot 10A, The Passing Place, Fiscavaig, Carbost, Isle of Skye, IV47 8SN, IV47 — £65,000 • 1 bed • 1 bath
Plot for sale in Plot at 2 Coishletter, Edinbane, Portree, Isle of Skye, IV51 9PW, IV51 — £50,000 • 1 bed • 1 bath
Plot for sale in Treaslane, Portree, Isle of Skye, IV51 9NX, IV51 — £75,000 • 1 bed • 1 bath


















































