Chain-free family home near stations, schools and green spaces.
5 bedrooms including a ground-floor bedroom with ensuite
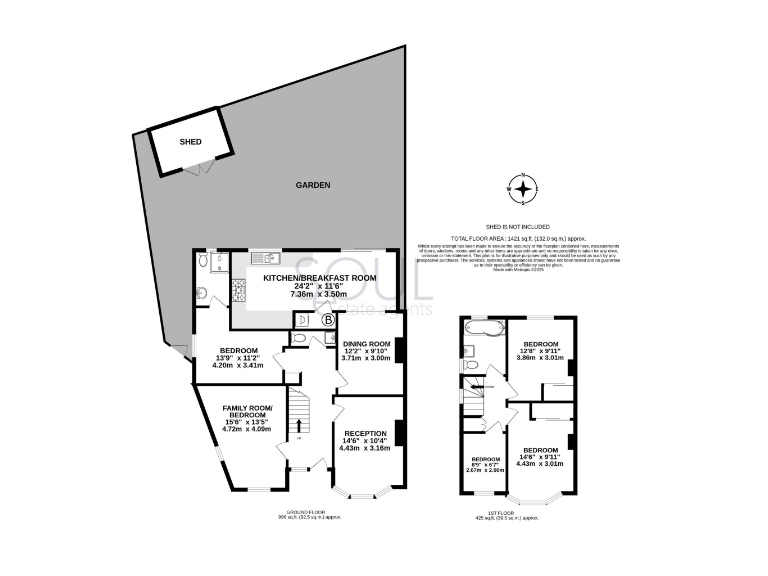
A flexible 4/5-bedroom semi-detached house set at the end of a peaceful cul-de-sac, offered chain free and ready for immediate occupation. The ground floor blends a formal front reception with a contemporary open-plan kitchen/diner, plus a downstairs bedroom with ensuite and a separate utility — useful for multigenerational living or home working. The property sits on a wider-than-average rear garden with a shed and a driveway that fits multiple cars.
Built in the 1930s and thoughtfully extended, the house retains period character while supplying modern living space. Two double bedrooms and a further single room occupy the first floor alongside a family bathroom. Local transport links are strong, with New Malden and Berrylands stations within walking distance, and excellent schools and green spaces nearby.
Buyers should note a few practical points: the building is assumed to have solid brick walls with no insulation (as built), glazing install dates are unknown, and council tax is above average. While the property is presented in good, liveable condition, there is scope — and potential cost — for energy upgrades or further modernisation to improve efficiency and value. All services and fittings should be independently checked.
5 bedroom semi-detached house for sale in Bodley Road, New Malden, KT3 — £1,200,000 • 5 bed • 3 bath • 2387 ft²
5 bedroom semi-detached house for sale in Elmbridge Avenue, Surbiton, KT5 — £925,000 • 5 bed • 3 bath • 1777 ft²
4 bedroom semi-detached house for sale in Malden Road, New Malden, KT3 — £800,000 • 4 bed • 2 bath • 1496 ft²
5 bedroom semi-detached house for sale in Beresford Avenue, Surbiton, KT5 — £835,000 • 5 bed • 2 bath • 1833 ft²
5 bedroom detached house for sale in Maria Theresa Close, New Malden, KT3 — £1,500,000 • 5 bed • 4 bath • 2269 ft²
4 bedroom semi-detached house for sale in Knightwood Crescent, Kingston Upon Thames, KT3 — £755,000 • 4 bed • 2 bath • 1378 ft²














































































