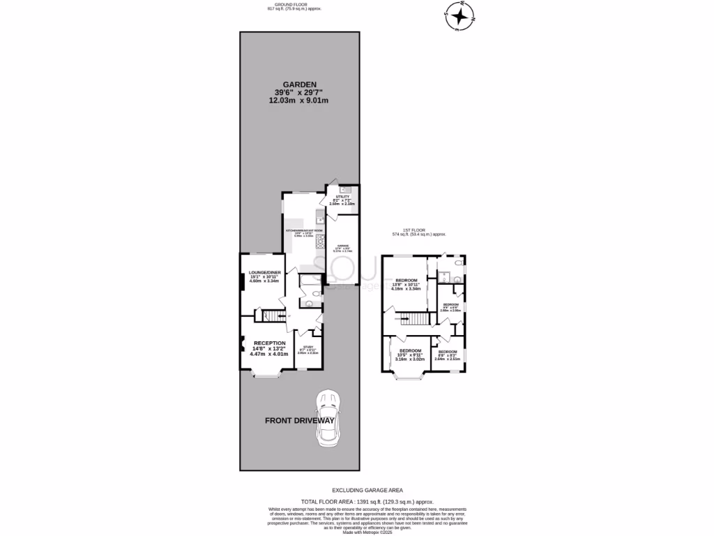
**Standout Features:**
- Spacious 4/5 bedroom semi-detached house
- 2 bathrooms, including one on the ground floor
- Double garage and off-street parking for multiple vehicles
- Potential for loft conversion (STPP)
- Westerly-facing garden, perfect for afternoon sun
- Located on Knightwood Crescent, a highly regarded residential street
- Excellent transport links to London Waterloo
**Summary:**
This charming semi-detached house offers a blend of comfort and adaptability in a tranquil neighborhood. The well-designed layout features a welcoming entrance hall that leads to two generous reception rooms—one with a bay window, and the other inviting you to the tranquil garden. The modern kitchen paired with an additional ground-floor room that can easily function as a study or fifth bedroom enhances its family-friendly appeal. Upstairs, you'll find four well-proportioned bedrooms and a family bathroom, making it perfect for larger families.
The property boasts a generous westerly garden, ideal for afternoon gatherings and outdoor dining. With a double garage and ample off-street parking, practicality is perfectly balanced with aesthetic charm. Situated near highly-rated schools and with excellent transport connections, this is an ideal family home. However, it’s important to note that while the house is well-maintained, potential buyers should be aware of the opportunity for future renovations, particularly with the loft conversion possibilities (subject to planning permission).
This home promises both current comfort and future potential—secure your viewing today and envision life in this delightful property!
4 bedroom semi-detached house for sale in Meadow Hill, New Malden, KT3 — £775,000 • 4 bed • 2 bath • 1428 ft²
5 bedroom detached house for sale in Cotsford Avenue, New Malden, KT3 — £950,000 • 5 bed • 3 bath • 2028 ft²
3 bedroom semi-detached house for sale in Barnfield, New Malden, KT3 — £625,000 • 3 bed • 1 bath • 1060 ft²
4 bedroom detached house for sale in Nelson Road, New Malden, KT3 — £1,200,000 • 4 bed • 1 bath • 1360 ft²
4 bedroom semi-detached house for sale in Oxford Crescent, New Malden, KT3 — £875,000 • 4 bed • 2 bath • 1856 ft²
4 bedroom semi-detached house for sale in Portland Avenue, New Malden, KT3 — £900,000 • 4 bed • 2 bath • 1679 ft²






























































