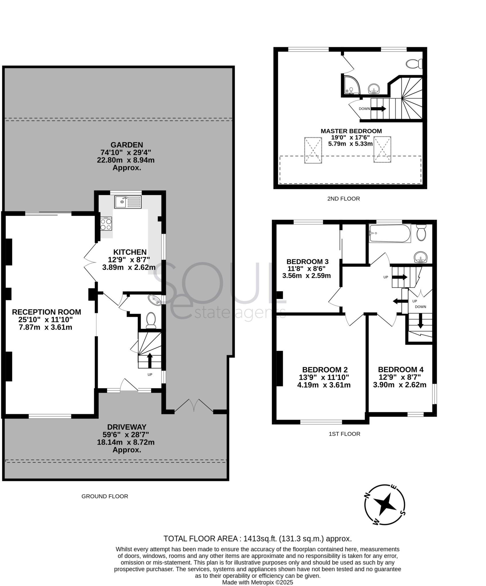
Vacant four-bed family home with 74ft garden and large driveway, no chain..
Four bedrooms across three floors with master en-suite
Spacious through reception room over 25ft, lots of natural light
Modern separate kitchen with garden access
Private rear garden approximately 74ft long
Large off-street driveway, multiple-car parking
Vacant possession — no onward chain for swift completion
Solid-brick 1930s build; likely no cavity wall insulation
Council tax above average; services not tested — inspections advised
Set across three floors, this four-bedroom semi-detached home in New Malden offers practical family living with immediate vacant possession and no onward chain. The ground floor features a through reception of over 25ft and a separate modern kitchen, both opening onto a long 74ft private rear garden—excellent for children, entertaining, or garden projects.
The top-floor master suite includes an en-suite and built-in storage, while three further bedrooms and a family bathroom occupy the middle floor, giving flexible sleeping arrangements. A large driveway provides convenient off-street parking for multiple cars. The property’s 1930s construction delivers period charm combined with modern fittings in key rooms.
Notable considerations: the house is of solid-brick interwar construction with assumed lack of cavity wall insulation, and council tax is above average. Services, fixtures and fittings have not been tested and prospective buyers should carry out their own inspections. There may be scope for extension or improvement (STPP), but any development will require permissions.
Overall, this is a straightforward purchase for families or buyers seeking extra outdoor space and roomy accommodation in a well-connected area, with the benefit of a quick sale due to vacant possession and no chain.
4 bedroom semi-detached house for sale in Knightwood Crescent, New Malden, KT3 — £700,000 • 4 bed • 2 bath • 1167 ft²
4 bedroom semi-detached house for sale in Westbury Road, New Malden, KT3 — £725,000 • 4 bed • 2 bath • 1423 ft²
5 bedroom semi-detached house for sale in Bodley Road, New Malden, KT3 — £1,250,000 • 5 bed • 3 bath • 2387 ft²
5 bedroom semi-detached house for sale in Highbury Close, New Malden, KT3 — £785,000 • 5 bed • 2 bath • 1421 ft²
4 bedroom detached house for sale in Kings Avenue, New Malden, London, KT3 — £1,325,000 • 4 bed • 3 bath • 1829 ft²
4 bedroom end of terrace house for sale in Bazalgette Gardens, New Malden, KT3 — £800,000 • 4 bed • 2 bath • 1525 ft²


























































































































































































