**Standout Features:**
- One-bedroom first-floor retirement apartment
- Located in the modern Arlington Lodge with attractive landscaping
- 24-hour Careline system for safety and security
- Owners' lounge with regular social events
- Private car park and guest suite availability
- Excellent transport links and close proximity to Leamington Spa amenities
- Air Source Heating for energy efficiency
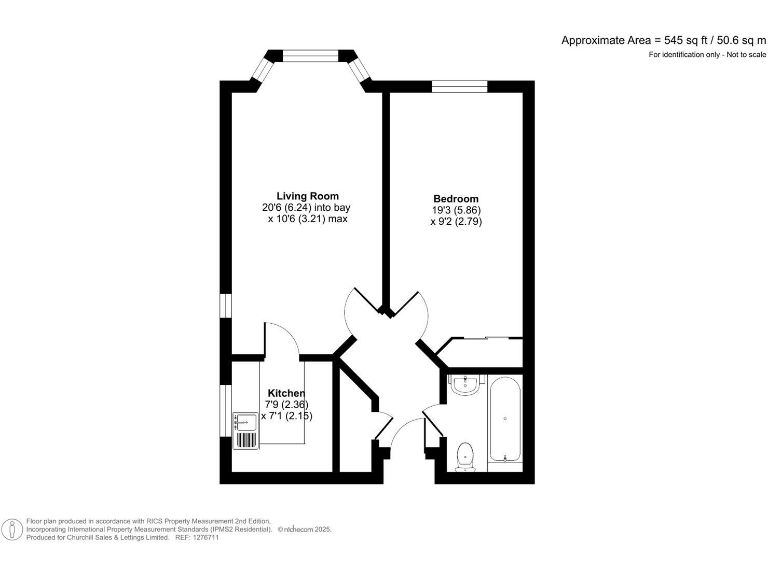
This charming one-bedroom apartment in Arlington Lodge combines comfort and community for an ideal retirement living experience. Boasting a spacious living room with a bay window and feature electric fireplace, this space is filled with natural light, perfect for entertaining or relaxing. The modern kitchen includes essential appliances and ample storage, while the sizable bedroom offers a built-in wardrobe and bright atmosphere. Safety is prioritized with a 24-hour Careline system, and the building is managed by a dedicated team ensuring a vibrant social environment with an owners' lounge and regular events.
Situated in a desirable area near Leamington Spa, the apartment is surrounded by beautiful gardens and parks, offering peaceful walks and community activities. Low crime rates and excellent transport links ensure a secure and convenient lifestyle. With a long lease of 107 years and potential for personalization, this apartment is not only a cozy home but also a smart investment for retirees seeking security and a sense of community. Don't miss the opportunity to call Arlington Lodge your own—schedule your viewing today!
1 bedroom flat for sale in Arlington Avenue, Leamington Spa, CV32 — £210,000 • 1 bed • 1 bath • 567 ft²
2 bedroom retirement property for sale in Arlington Avenue, Royal Leamington Spa, CV32 — £347,500 • 2 bed • 1 bath • 779 ft²
2 bedroom retirement property for sale in Arlington Lodge, Leamington Spa, CV32 — £350,000 • 2 bed • 2 bath • 864 ft²
2 bedroom retirement property for sale in Oakfield House, Binswood Avenue, Leamington Spa, CV32 — £155,000 • 2 bed • 1 bath • 679 ft²
1 bedroom ground floor flat for sale in Binswood Avenue, Leamington Spa, CV32 — £140,000 • 1 bed • 1 bath • 528 ft²
1 bedroom flat for sale in Oakfield House, Binswood Avenue, Leamington Spa, CV32 — £160,000 • 1 bed • 1 bath • 512 ft²


























































