Immediate rental income with clear scope for refurbishment and uplift.
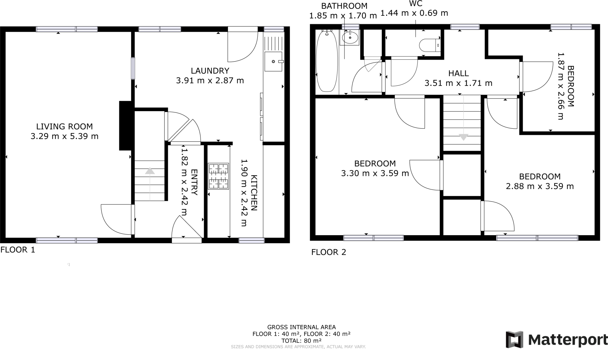
- Freehold mid-terrace with three bedrooms and one bathroom
- Generates £6,600 pa gross rent; tenants currently in situ
- Guide price £93,000; clear buy-to-let investment opportunity
- Private front and rear gardens; decent plot size
- Requires modernization to uplift rent and resale value
- Located in a very deprived area with high crime levels
- On-street parking; average broadband, excellent mobile signal
- Buyers Premium applies; purchase will likely include tenancy
A three-bedroom mid-terraced freehold in Benwell Lane offered with tenants in situ and immediate rental income. The property produces a gross annual rent of £6,600 against a guide price of £93,000, making it a straightforward yield play for a buy-to-let investor or portfolio manager.
The house has private front and rear gardens, on-street parking and a decent plot. Interiors are average-sized with a lounge, kitchen and three-piece bathroom; some areas show post-war detailing and will benefit from modernization to increase capital value and rental income. Broadband speeds are average while mobile signal is excellent.
Material considerations are clear: the area records higher-than-average crime and sits in a very deprived ward, factors that affect tenant demand and resale. The property is currently tenanted long-term and the occupants intend to remain, so purchasers should be prepared to acquire with the tenancy in place.
This is best-suited to serious investors or developers comfortable working in value areas. A Buyers Premium applies on completion, and prospective buyers should review the Let Property Pack and tenancy paperwork before committing. No flood risk is recorded, and the freehold tenure simplifies ownership administration.
3 bedroom terraced house for sale in Byrness, Newcastle Upon Tyne, NE5 — £125,000 • 3 bed • 2 bath • 915 ft²
2 bedroom terraced house for sale in Kingston Avenue, Newcastle Upon Tyne, NE6 — £110,000 • 2 bed • 1 bath • 646 ft²
3 bedroom end of terrace house for sale in Bruce Close, Newcastle Upon Tyne, NE5 — £120,000 • 3 bed • 1 bath • 764 ft²
3 bedroom semi-detached house for sale in Winton Way, Newcastle Upon Tyne, NE3 — £140,000 • 3 bed • 1 bath • 893 ft²
2 bedroom terraced house for sale in Garth Twentyseven, Newcastle Upon Tyne, NE12 — £105,000 • 2 bed • 1 bath • 718 ft²
2 bedroom terraced house for sale in Waterbeach Place, Newcastle Upon Tyne, NE5 — £105,000 • 2 bed • 1 bath • 829 ft²






















































































