**Standout Features:**
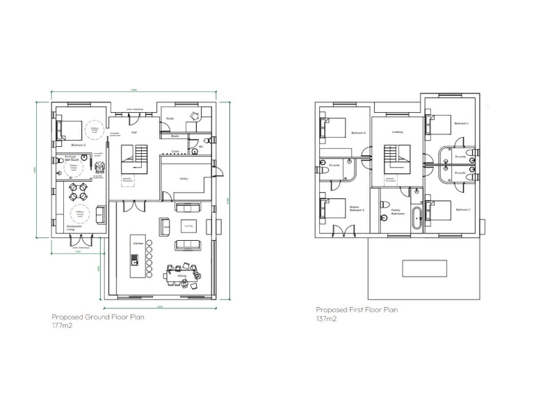
- Planning permission for a stunning 5-bedroom detached house
- Expansive 3,380 sq ft layout with four en suites
- Located in a tranquil semi-rural setting on a 0.22-acre plot
- Flexible living space with a self-contained quarter for guests or multi-generational living
- Proximity to excellent local schools and amenities
- Freehold tenure with no chain
**Concise Property Summary:**
Discover a rare opportunity to design and build your dream home on this exceptional plot in the charming village of Burton on the Wolds. With full planning permission granted for a spacious five-bedroom house featuring an impressive 3,380 sq ft of living space, you can create a bespoke residence that perfectly fits your lifestyle. The thoughtfully planned ground floor includes a generous open-plan living area, utility room, and a self-contained suite ideal for guests or extended family.
Nestled on a 0.22-acre plot, this property offers a peaceful retreat with wraparound gardens and mature trees, making it an idyllic setting for family life. Local amenities such as shops, a pub, and an outstanding primary school are just a short walk away, enhancing the appeal for families. Commuters will benefit from excellent transport links to Leicester and beyond.
This is not just a property, but a canvas for your vision, allowing for custom renovations and extensions to truly make it your own. Don’t miss out on securing this unique opportunity in a desirable village location—early viewing is highly recommended to appreciate its full potential!
Land for sale in Sowters Lane, Burton on the Wolds, LE12 — £325,000 • 1 bed • 1 bath • 3380 ft²
5 bedroom detached house for sale in Melton Road, Burton on the Wolds, LE12 — £350,000 • 5 bed • 3 bath • 3500 ft²
Land for sale in Land adj to No.2 Seymour Road, LE12 — £120,000 • 3 bed • 1 bath
Land for sale in Black Lane, Walton On The Wolds, LE12 — £175,000 • 1 bed • 1 bath • 1024 ft²
5 bedroom detached bungalow for sale in Hall Drive, Burton-On-The-Wolds, Loughborough, LE12 — £512,500 • 5 bed • 1 bath • 1302 ft²
Plot for sale in Building Plot - Swithland Lane, Rothley, LE7 — £695,000 • 5 bed • 5 bath • 4000 ft²






















