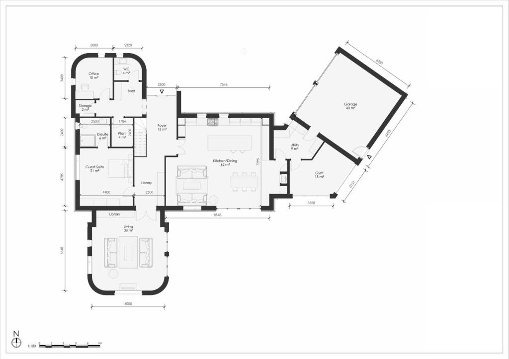
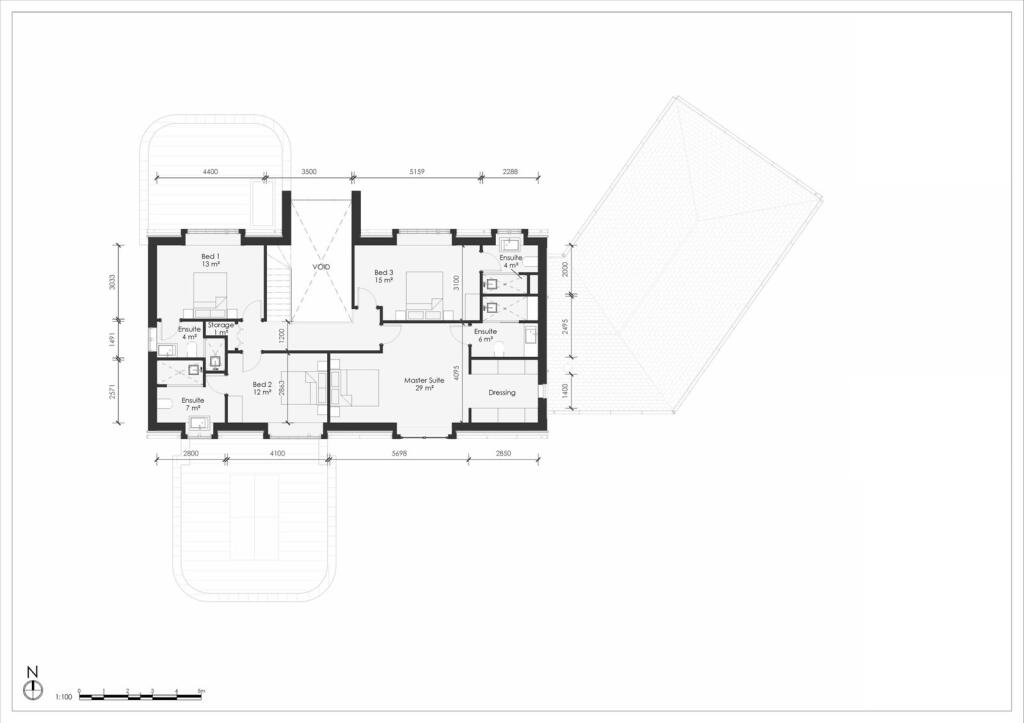
**Standout Features:**
- Rarely available 0.6-acre self-build plot on prestigious Swithland Lane
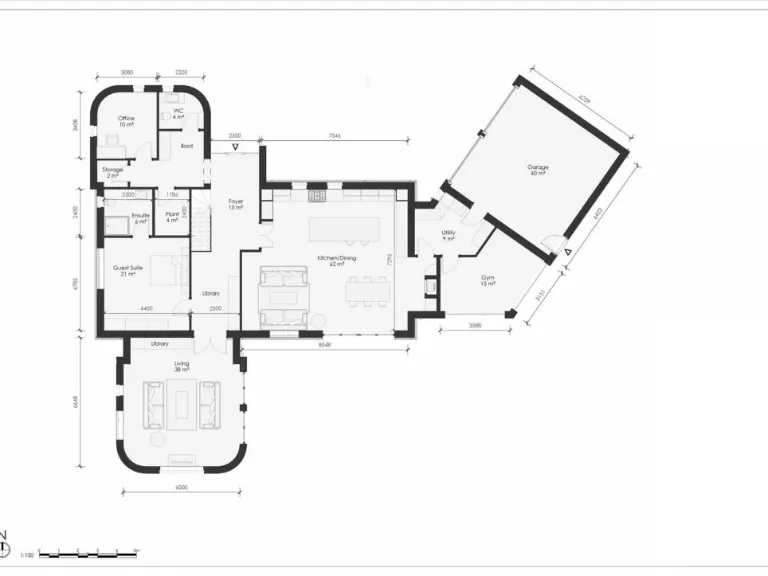
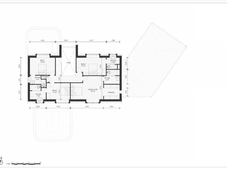
- Proposed dwelling: 4,000 sq. ft., five bedrooms (all en-suite), four reception rooms
- Private gated driveway and south-facing gardens with beautiful surroundings
- Option to purchase a finished home with customizable specifications
- Prime residential location near Rothley Park Golf Club, local amenities, and top schools
- Low crime rate and fast broadband access
This exceptional self-build plot presents a unique opportunity to develop a luxurious family home in the exclusive Swithland Lane area of Rothley. Spanning 0.6 acres, the proposed design encompasses approximately 4,000 square feet of living space, featuring five spacious en-suite bedrooms and four elegant reception rooms. The property is designed to maximize comfort and style, boasting a contemporary design with large windows and a double-height ceiling, set within beautifully landscaped gardens and a private gated driveway.
Local amenities are within easy reach, including reputable schools, delightful pubs, and stunning countryside perfect for outdoor activities. With a planning application currently in process, there’s immense potential for customization to reflect your preferences, or simply opt for the finished product, expected to be ready by Easter 2026. This opportunity is rare and may not be available for long—imagine creating a masterpiece tailored just for you in one of the East Midlands’ most sought-after neighborhoods. Act quickly to seize this competitive offering at £695,000!
5 bedroom detached house for sale in New Home - Swithland Lane, Rothley, LE7 — £1,750,000 • 5 bed • 5 bath • 4000 ft²
Land for sale in Sowters Lane, Burton on the Wolds, LE12 — £325,000 • 1 bed • 1 bath • 3380 ft²
5 bedroom detached house for sale in Sowters Lane, Burton on the Wolds, LE12 — £325,000 • 5 bed • 5 bath • 3380 ft²
Land for sale in Superior Building Plot, Walcote Road, South Kilworth, LE17 — £400,000 • 1 bed • 1 bath • 2758 ft²
4 bedroom detached bungalow for sale in Hallfields Lane, Rothley, Leicester, LE7 — £900,000 • 4 bed • 3 bath • 2347 ft²
Plot for sale in Nanpantan Road, Nanpantan, Loughborough, LE11 — £275,000 • 1 bed • 1 bath • 2821 ft²


















