**Standout Features:**
- Unique building plot with full planning permission
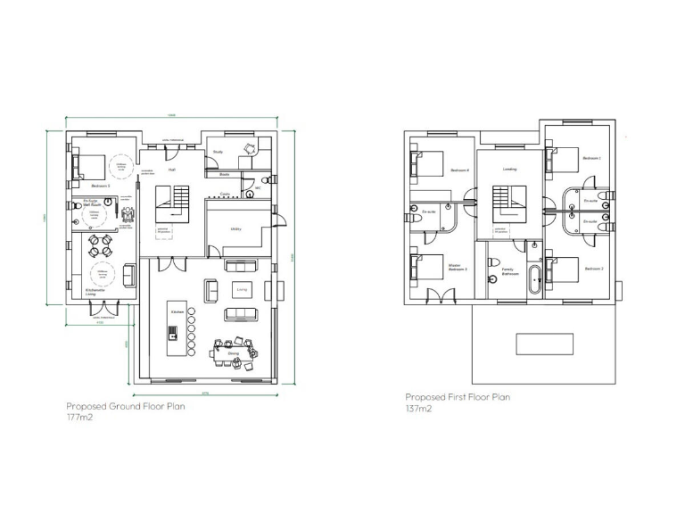
- Architectural design for a five-bedroom detached home (3,380 sq ft)
- Prime semi-rural location in Burton on the Wolds
- 0.22-acre plot featuring established hedgerows and wraparound gardens
- Short distance to local amenities and outstanding schools
- Excellent mobile signal, though broadband speeds may be slow
- Chain-free sale with accessible services (water, gas, electricity)
**Summary:**
Discover an extraordinary opportunity to create your dream home in the tranquil village of Burton on the Wolds. This generous 0.22-acre building plot comes with full planning permission, allowing you to construct a stunning five-bedroom residence designed for modern living. With over 3,300 square feet of space, the layout includes a spacious open-plan kitchen/living/dining area, a separate study, and a self-contained living quarter—ideal for guests or multi-generational families.
Set against a serene leafy backdrop, this exceptional plot is not only perfect for nurturing family life but also offers future flexibility for renovations or expansions. The location boasts easy access to local amenities, including an outstanding primary school and a welcoming public house. However, potential buyers should note that while services like drainage and water are available, broadband speeds may be slower—an important factor for remote workers.
This is a rare chance to secure a bespoke family home in a desirable village—early viewing is strongly recommended to fully appreciate the potential this property embodies. Don’t miss out on this exclusive opportunity; your dream home awaits!
5 bedroom detached house for sale in Sowters Lane, Burton on the Wolds, LE12 — £325,000 • 5 bed • 5 bath • 3380 ft²
Land for sale in Land adj to No.2 Seymour Road, LE12 — £120,000 • 3 bed • 1 bath
5 bedroom detached house for sale in Melton Road, Burton on the Wolds, LE12 — £350,000 • 5 bed • 3 bath • 3500 ft²
Land for sale in Black Lane, Walton On The Wolds, LE12 — £175,000 • 1 bed • 1 bath • 1024 ft²
Plot for sale in Building Plot - Swithland Lane, Rothley, LE7 — £695,000 • 5 bed • 5 bath • 4000 ft²
Plot for sale in Nanpantan Road, Nanpantan, Loughborough, LE11 — £275,000 • 1 bed • 1 bath • 2821 ft²






















