Single-storey, low-maintenance country living ideal for downsizers and couples.
Last remaining plot on a small development ready for immediate occupation
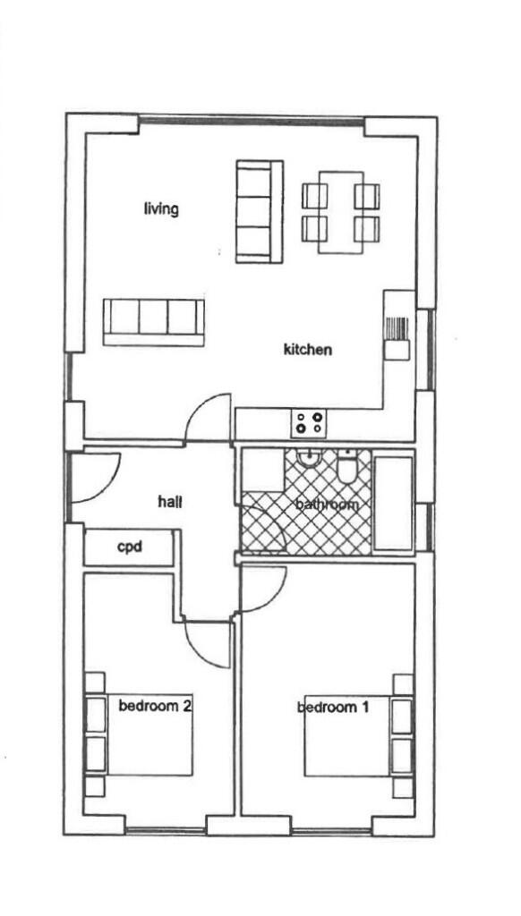
Spacious 19' x 18' open-plan kitchen, sitting and dining room with bi-folds
Two double bedrooms with front-facing farmland views
Generous bathroom with separate shower; single bathroom only
Air-source underfloor heating, double glazing and high-spec finishes
Block-paved drive for two plus electric vehicle charging point
Generous, secluded rear garden, newly fenced with paved terrace
Builder's warranty included; Energy Performance Rating TBC
This is the last remaining new-build detached bungalow on a small development in sought-after Barham, ready for immediate occupation. The property offers single-storey living with a generous 19' x 18' open-plan kitchen, sitting and dining room that opens via bi-fold doors onto a secluded rear garden backing farmland. High-spec finishes include built-in appliances, oak doors, LVT and fitted carpets, plus a builder's warranty for peace of mind.
Practical, energy-efficient features include air-source underfloor heating, double glazing and an electric vehicle charging point to the block-paved drive with two side-by-side spaces. Two double bedrooms and a sizable bathroom with separate shower make the layout comfortable for downsizers, couples or those seeking low-maintenance country living. The plot is large and newly fenced with a paved terrace, lawn and mature cherry tree.
Buyers should note this is a two-bedroom, one-bathroom home — suitable for those not needing en suites or multiple bathrooms. Energy Performance Rating remains to be confirmed. Mobile signal is average in the village; Ipswich town centre and mainline station are about three miles away. Overall, this bungalow combines modern, low-maintenance finishes with a peaceful village setting and convenient road links.
4 bedroom detached bungalow for sale in Norwich Road, Barham, Ipswich, Suffolk, IP6 — £550,000 • 4 bed • 2 bath • 1679 ft²
3 bedroom detached bungalow for sale in Jackson Place, Barham, IP6 — £450,000 • 3 bed • 2 bath • 1269 ft²
5 bedroom detached house for sale in Norwich Road,
Claydon,
IP6 0NU, IP6 — £620,000 • 5 bed • 1 bath • 1254 ft²
3 bedroom detached bungalow for sale in Cemetery Close, Great Blakenham, Ipswich, Suffolk, IP6 — £425,000 • 3 bed • 2 bath • 864 ft²
4 bedroom detached house for sale in Norwich Road, Barham, Ipswich, Suffolk, IP6 — £550,000 • 4 bed • 2 bath • 1679 ft²
3 bedroom detached house for sale in Norwich Road,
Claydon,
IP6 0NU, IP6 — £370,000 • 3 bed • 1 bath • 675 ft²






































































































