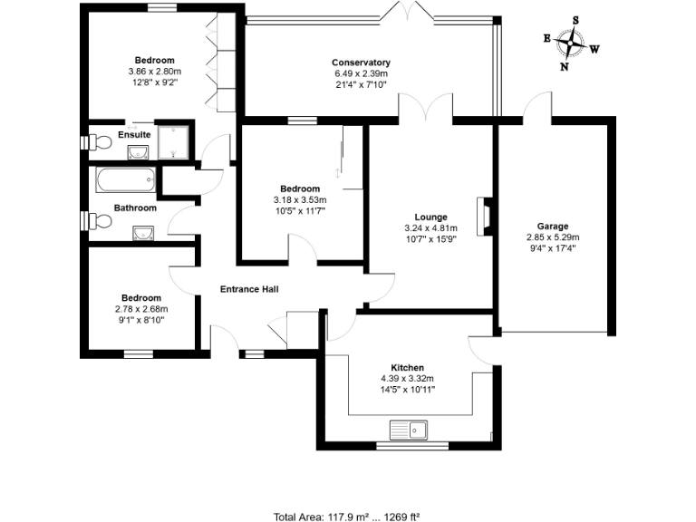
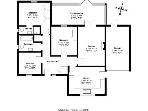
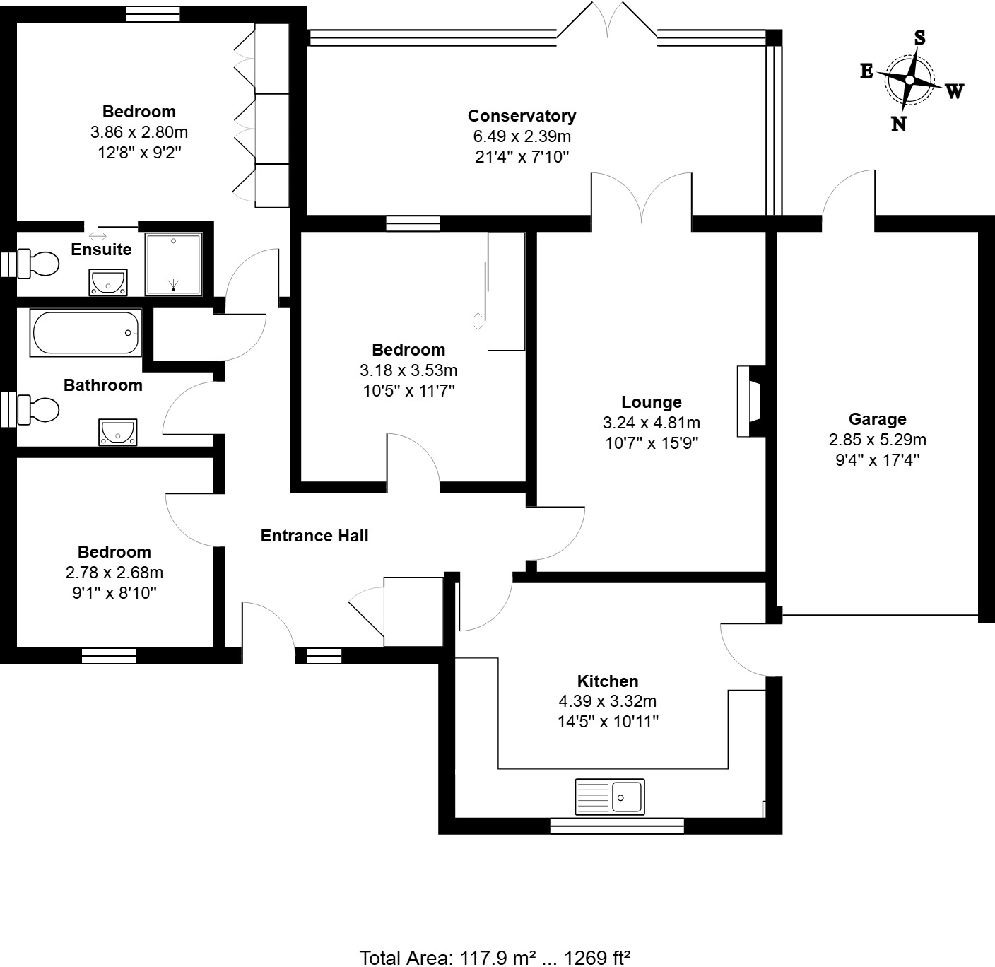
Comfortable single-floor living in a peaceful village location.
Three bedrooms with ensuite to master
20ft conservatory opening onto rear garden
Updated kitchen appliances installed 2024
Garage with power, driveway parking for multiple cars
Loft access and storage cupboard housing hot water tank
Freehold tenure; single-storey living ideal for mobility needs
Council Tax Band D — approx £2,211.07 pa
Rear garden is modest rather than extensive
This well-presented three-bedroom link-detached bungalow in Barham offers comfortable single-floor living in a sought-after village setting. The layout includes a 20ft conservatory, an ensuite to the master bedroom and a spacious lounge, making it ready for immediate occupation by downsizers or small families who value easy access and low-maintenance living.
Practical updates include integrated Bosch double oven and larder fridge/freezer installed in 2024, and a gas fire fitted in 2024. The property is freehold, has off-road parking on a block-paved driveway, an up-and-over garage with power and lighting, loft access for extra storage, and a decent rear garden with patios and lawn for outdoor use.
Buyers should note the property sits in Council Tax Band D (approx. £2,211.07) and the garden is useable but not extensive. The vendor’s particulars state that utilities, appliances and systems have not been formally tested, so purchasers should satisfy themselves during inspection. Overall, this bungalow suits buyers seeking a low-maintenance, single-storey home in a very low-crime, affluent village with easy road links to the A12/A14.
3 bedroom detached bungalow for sale in Phillipps Road, Barham, Ipswich, IP6 — £350,000 • 3 bed • 1 bath
4 bedroom detached bungalow for sale in Norwich Road, Barham, Ipswich, Suffolk, IP6 — £550,000 • 4 bed • 2 bath • 1679 ft²
2 bedroom detached bungalow for sale in 1a Hall Farm, Norwich Road, Barham, Ipswich, Suffolk, IP6 — £369,000 • 2 bed • 1 bath • 821 ft²
3 bedroom detached bungalow for sale in Chequers Rise, Great Blakenham, Ipswich, IP6 — £300,000 • 3 bed • 1 bath • 734 ft²
2 bedroom detached bungalow for sale in 1b Hall Farm, Norwich Road, Barham, Ipswich, Suffolk, IP6 — £369,000 • 2 bed • 1 bath • 821 ft²
4 bedroom detached house for sale in Norwich Road, Barham, Ipswich, Suffolk, IP6 — £550,000 • 4 bed • 2 bath • 1679 ft²






















































