Spacious three-bed family home near seafront, ripe for modernisation and extension.
Corner plot with substantial side and rear garden space
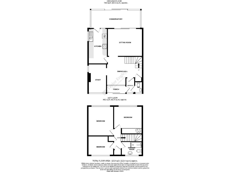
This three-bedroom detached house on a corner plot in Langney Point offers practical family living close to the seafront. The layout includes a generous dining hall, separate sitting room, large conservatory and a study (former garage) — practical spaces that suit family life and home working. Driveway parking for about three cars and a decent side/rear garden give outdoor space that many nearby homes lack.
The property is chain free and benefits from mains gas central heating and double glazing (install date unknown). The large conservatory links living areas to the garden, and the plot offers scope to extend or reconfigure subject to checks and permissions. Local schools rated Good are within reach and the seafront, shops and transport are close by.
The house is dated and in need of modernisation throughout; buyers should expect cosmetic and likely partial upgrade works. Walls are cavity-built with assumed no added insulation and the property may benefit from improved thermal performance. The study is a former garage conversion — check measurements and compliance if you need a permanent home office or garage space.
Practical considerations: there is one shower room only and the kitchen and fittings are older. Flood risk is low and the area records very low crime, making this a sensible family purchase for someone planning a renovation to unlock longer-term value.
3 bedroom detached house for sale in Wade Close, Eastbourne, East Sussex, BN23 — £340,000 • 3 bed • 1 bath • 1046 ft²
4 bedroom house for sale in Columbus Drive, Eastbourne, BN23 — £475,000 • 4 bed • 3 bath • 1541 ft²
4 bedroom detached house for sale in Columbus Drive, Eastbourne, BN23 — £499,950 • 4 bed • 3 bath • 1810 ft²
3 bedroom semi-detached house for sale in Aylesbury Avenue, Langney Point, Eastbourne, BN23 — £350,000 • 3 bed • 1 bath • 947 ft²
4 bedroom detached house for sale in Peyton Close, Eastbourne, BN23 — £450,000 • 4 bed • 1 bath • 1561 ft²
3 bedroom terraced house for sale in Rodney Close, Eastbourne, East Sussex, BN23 — £290,000 • 3 bed • 1 bath • 847 ft²


























































