Large four-bedroom home with double garage, wrap-around garden and major modernisation potential.
Chain free four-bedroom detached home on large corner plot
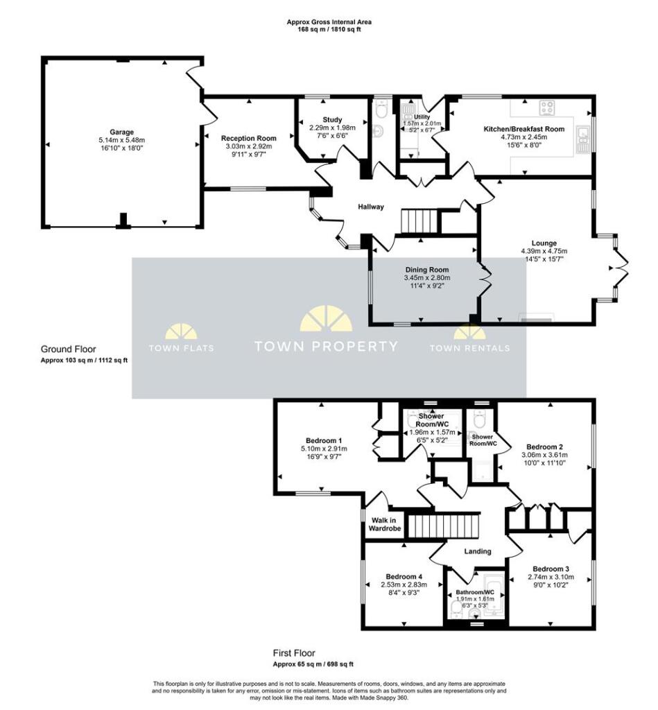
A substantial four-bedroom detached house set on a large corner plot, offered chain free and ready for a family to modernise. The layout includes four reception rooms, a kitchen/breakfast room, utility, ground-floor WC and three bathrooms (two en-suites), giving flexible space for living, home working and guests.
Externally there is a double integral garage with power, a wide driveway for two cars and a wrap-around lawned garden with side access — plenty of room for children, gardening or an extension (subject to consent). The property sits close to local shops, bus routes, Langney Point, the harbour and Eastbourne seafront; several good primary and secondary schools are within easy reach.
The house is dated throughout and needs renovation and modernisation to reach its full potential. Mechanical and cosmetic updates are likely (kitchen, bathrooms, finishes); glazing is double but ages are unknown. Council Tax Band F means running costs are higher than average. EPC rating C and low flood risk are positives, but buyers should allow a refurbishment budget.
This home will suit a growing family seeking space and a desirable Eastbourne setting, or an investor/buyer prepared to update a well‑sized property for resale or long-term occupation. Its combination of size, parking and location creates genuine potential once modernised.
4 bedroom detached house for sale in Tasmania Way, Eastbourne, East Sussex, BN23 — £525,000 • 4 bed • 2 bath • 1081 ft²
4 bedroom detached house for sale in Coral Reef Close, Eastbourne, East Sussex, BN23 — £495,000 • 4 bed • 1 bath • 943 ft²
4 bedroom detached house for sale in Peyton Close, Eastbourne, BN23 — £450,000 • 4 bed • 1 bath • 1561 ft²
4 bedroom detached house for sale in Tasmania Way, Eastbourne, BN23 — £385,000 • 4 bed • 2 bath • 935 ft²
3 bedroom detached house for sale in Gardner Close, Eastbourne, BN23 — £320,000 • 3 bed • 1 bath • 981 ft²
4 bedroom detached house for sale in Coral Reef Close, Eastbourne, BN23 5PF, BN23 — £675,000 • 4 bed • 2 bath • 1636 ft²


































































































