Large garden, double garage and scope to modernise close to local amenities.
Spacious detached house on a large plot with generous room count
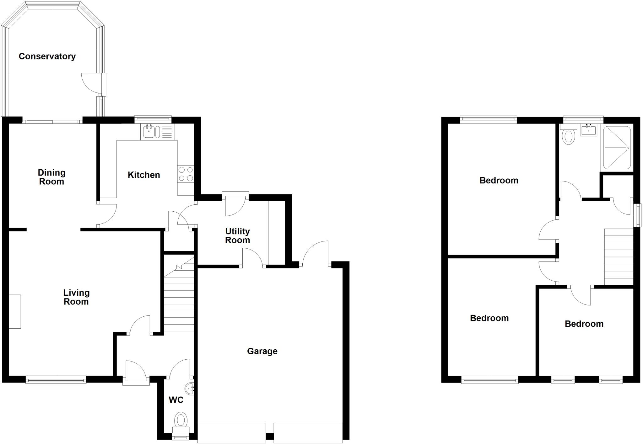
Set at the head of a quiet cul-de-sac, this substantial three‑bedroom detached house sits on a large plot with a sunny west‑facing rear garden and a generous double garage. Built in 1990, the home offers practical family living across multiple floors with a lounge, dining room, conservatory, kitchen, utility and a useful downstairs WC.
The property benefits from uPVC double glazing, gas central heating, good broadband and excellent mobile signal — practical for modern working households. Its size and layout (approximately 3,162 sq ft and about 18 rooms overall) create clear scope to reconfigure, extend or update to suit changing family needs.
There is one first‑floor wet room serving three bedrooms, which may feel limiting for larger families, and several areas would benefit from cosmetic modernization to unlock full value. Nearby amenities include good road links to Silverlink and Cobalt business parks, the coast, bus connections to Whitley Bay and North Shields, and several local schools (mixed Ofsted results).
Overall this is a roomy, well‑positioned family property with strong potential for improvement. Buyers seeking space, a large garden and parking will find practical advantages, while those wanting a fully modern interior should budget for updating and possible reconfiguration.
3 bedroom detached house for sale in Hamilton Crescent,
North Shields, Tyne & Wear,
NE29 8DW, NE29 — £250,000 • 3 bed • 1 bath • 2122 ft²
3 bedroom detached house for sale in Kilburn Gardens, North Shields, NE29 — £220,000 • 3 bed • 3 bath • 633 ft²
4 bedroom detached house for sale in Monkseaton Drive,
Whitley Bay, Tyne and Wear,
NE26 3DQ, NE26 — £795,000 • 4 bed • 1 bath • 2331 ft²
4 bedroom detached house for sale in Monkseaton Drive,
Whitley Bay, Tyne and Wear,
NE26 3DH, NE26 — £585,000 • 4 bed • 1 bath • 1447 ft²
4 bedroom detached house for sale in Beaconsfield Close, Whitley Bay, NE25 — £499,950 • 4 bed • 1 bath • 1600 ft²
3 bedroom semi-detached house for sale in Willoughby Drive,
Whitley Bay, Tyne & Wear,
NE26 3DY, NE26 — £340,000 • 3 bed • 1 bath • 893 ft²














































































































