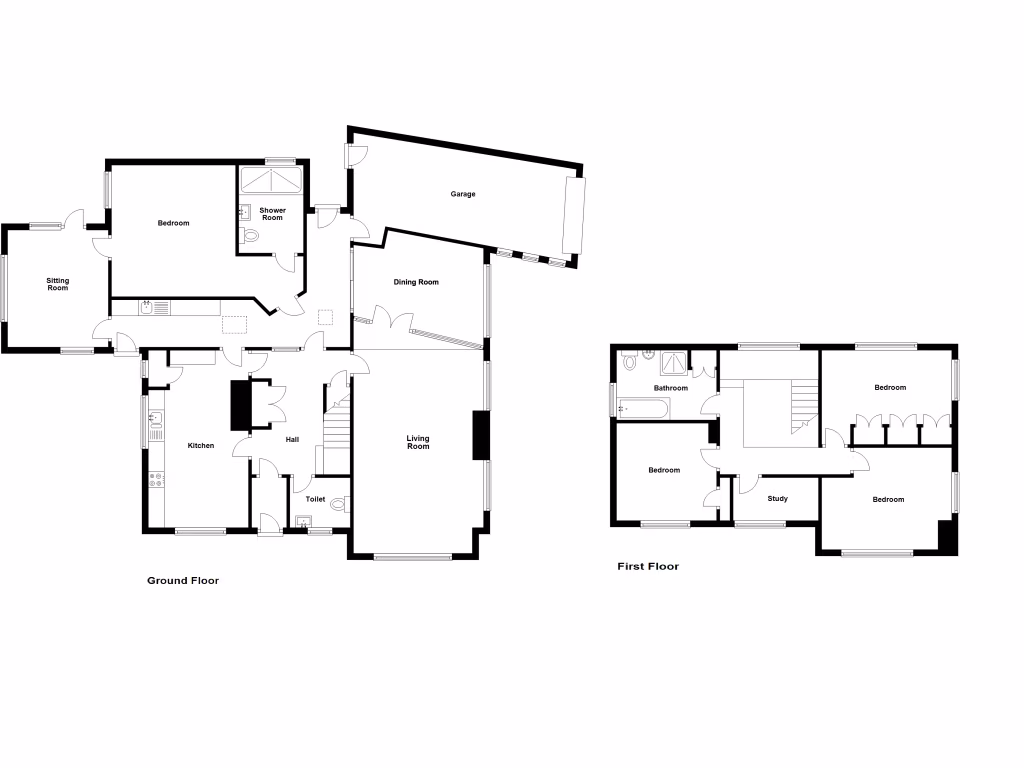
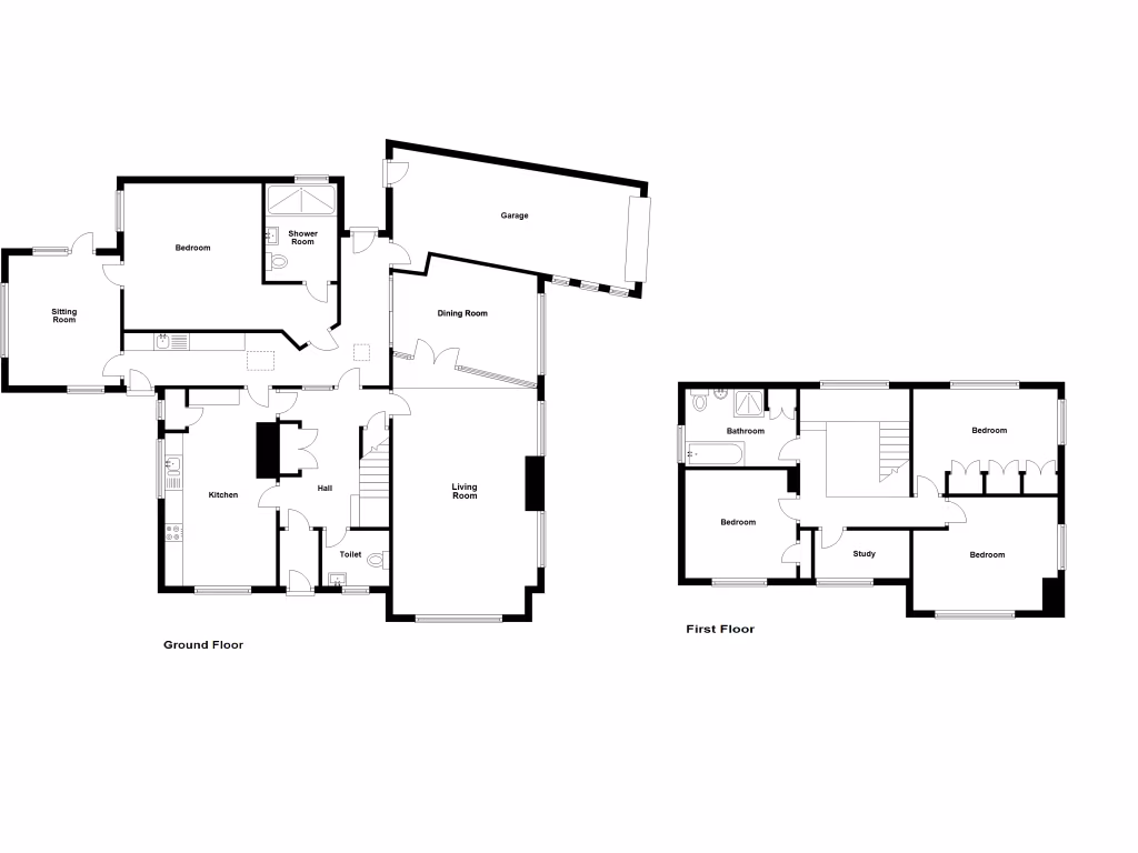
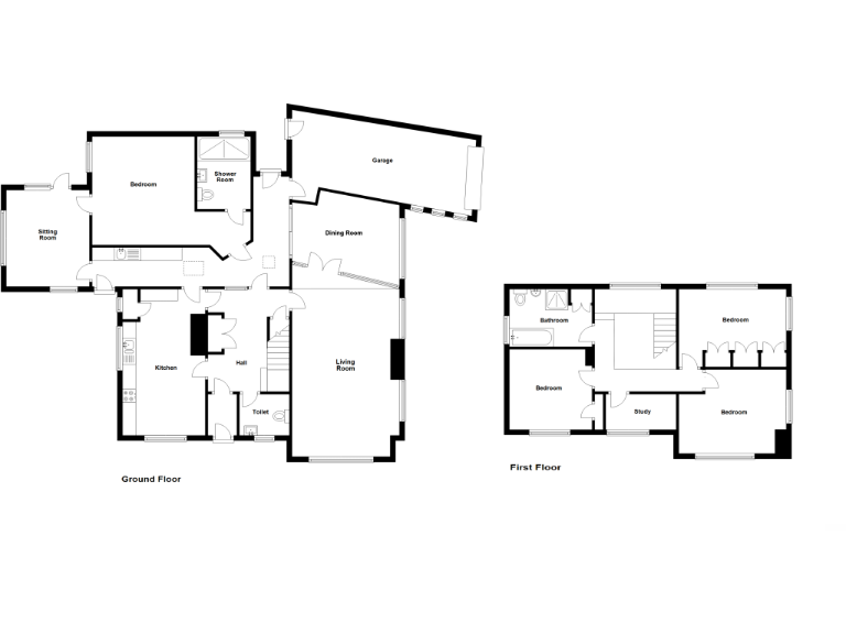
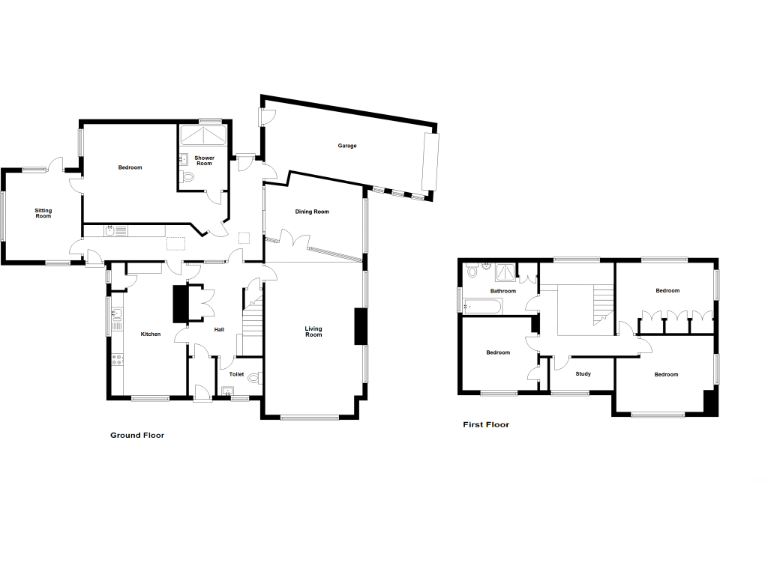
Corner‑plot 4‑bed detached with 2013 suite, garage and easy beach access — chain free.
Large corner plot with easterly and southerly gardens
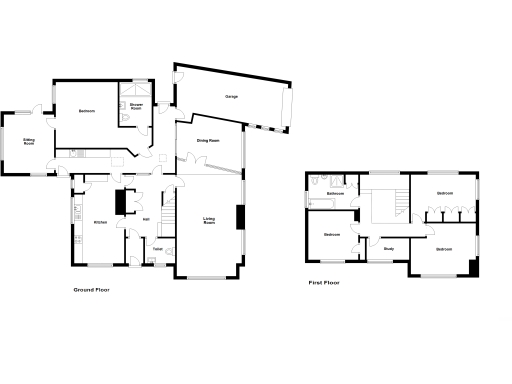
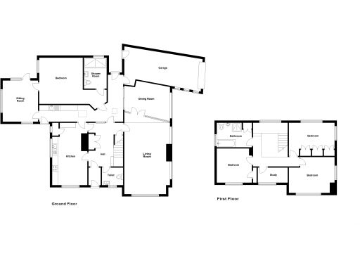
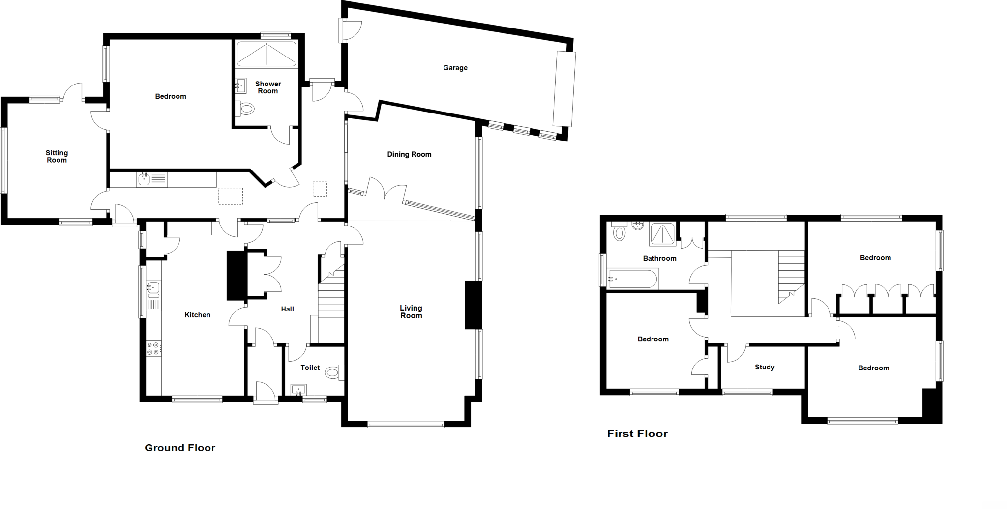
Extended layout includes 2013 self‑contained suite and wet room
Garage 23'8" long with water, power and up & over door
Short walk to beach, Monkseaton Metro and strong local schools
Freehold and offered chain free for quick move
Approximately 1,447 sq ft; average overall house size
Single main first‑floor bathroom; most en‑suite provision in ground suite
Some 1970s features remain (stairlift, parquet) may need updating
Set on a large corner plot in desirable Whitley Bay, this generously proportioned mid‑20th century detached home offers flexible family living and easy access to the coast and local transport. The ground floor includes two reception rooms, a dining kitchen, utility and a self‑contained suite added in 2013 (garden room, bedroom and wet room) that works well as guest or multi‑generational accommodation.
The house benefits from a long garage with water and power, off‑road parking, uPVC double glazing and a gas combi boiler (installed c.2012). Gardens are low‑maintenance block paving with raised borders and enjoy easterly and southerly aspects. The property is freehold and being sold with no upper chain.
Practical points for buyers: there is one main first‑floor bathroom plus the ground‑floor wet room in the suite, and the home retains some 1970s fittings (stairlift, parquet flooring) alongside more recent upgrades. At about 1,447 sq ft the accommodation is average in overall size for a four‑bed family house but the extended footprint and corner plot add usable space and adaptability.
Location is a clear strength — short walks to the beach, Monkseaton Metro, local shops and highly regarded schools (Valley Gardens and Whitley Bay High both highly rated). Council Tax is band F (expensive), so factor that into ongoing costs.
4 bedroom detached house for sale in Monkseaton Drive,
Whitley Bay, Tyne and Wear,
NE26 3DQ, NE26 — £795,000 • 4 bed • 1 bath • 2331 ft²
4 bedroom detached house for sale in Haddington Road, Beaumont Park, Whitley Bay, NE25 — £699,950 • 4 bed • 2 bath • 1918 ft²
4 bedroom detached house for sale in Dachet Road, Beaumont Park,
Whitley Bay, Tyne & Wear,
NE25 9UQ, NE25 — £650,000 • 4 bed • 1 bath • 1623 ft²
4 bedroom detached house for sale in Beaconsfield Close, Whitley Bay, NE25 — £499,950 • 4 bed • 1 bath • 1600 ft²
4 bedroom detached house for sale in Fairfield Drive, West Monkseaton , Whitley Bay, NE25 9SA, NE25 — £550,000 • 4 bed • 2 bath
4 bedroom detached house for sale in Hepscott Drive, Whitley Bay, NE25 — £675,000 • 4 bed • 2 bath • 1960 ft²


















































































































































































































































































