Three-bedroom family home with large garden and garage close to schools.
Extremely large detached home on a prominent corner plot
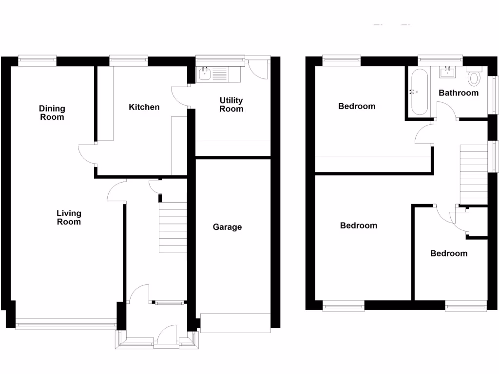
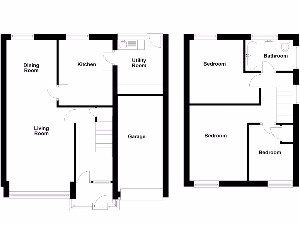
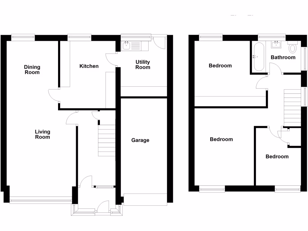
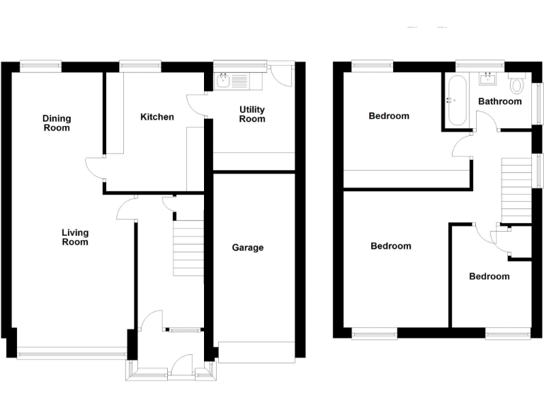
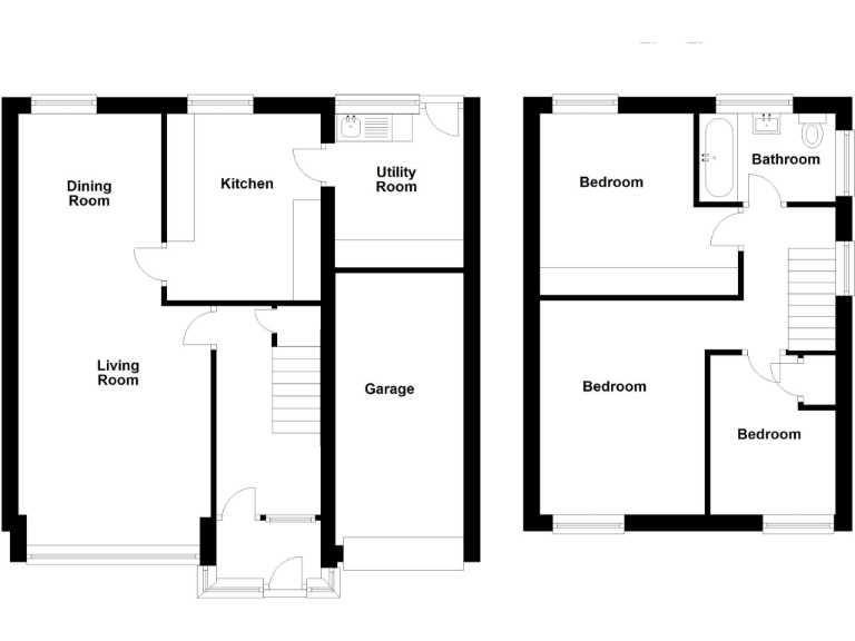
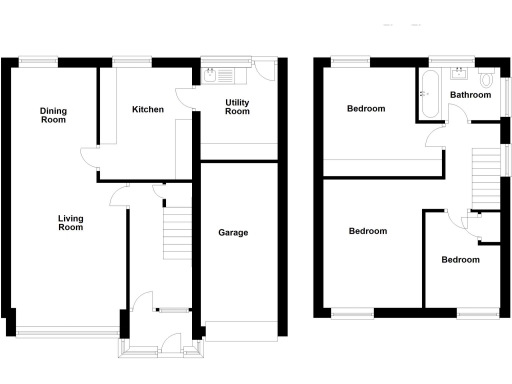
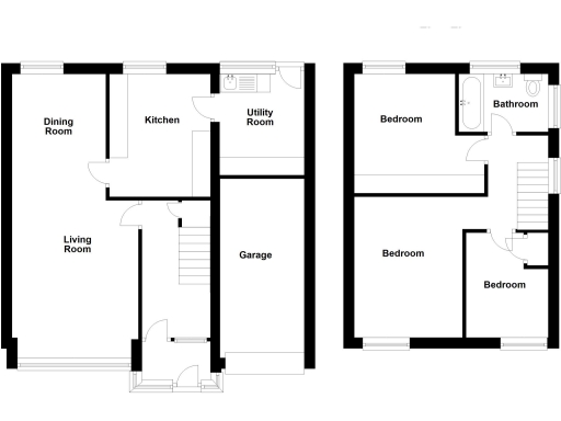
This roomy three-bedroom detached house sits on a corner plot in a popular North Shields neighbourhood, offering abundant living space across multi-storeys and a generous private garden. The layout works well for families: a large L-shaped living room, breakfasting kitchen (refitted 2017) with separate utility room, and a sunny south-facing rear garden are all strong day-to-day assets. A new combi boiler was installed in 2024 and uPVC double glazing is fitted throughout.
Externally the property includes an electric‑door garage and driveway for off‑road parking, plus a fenced rear garden with patio and mature planting. Local amenities, frequent bus links and direct road access to the A19 and Coast Road make commuting and shopping straightforward, while several well-rated primary and secondary schools are within the local catchment.
The house is extremely large internally but shows some 1970s features and will suit buyers prepared to refresh certain areas; images note 20th‑century styling and some wear on the staircase. There is only one family bathroom servicing three bedrooms, which may be a consideration for larger households. Overall this freehold property provides solid family accommodation with potential to update and personalise.
3 bedroom detached house for sale in Abbots Way,
Preston Farm, North Shields,
NE29 8LX, NE29 — £347,000 • 3 bed • 1 bath • 3162 ft²
4 bedroom detached house for sale in Abbots Way, North Shields, NE29 — £489,950 • 4 bed • 2 bath • 1565 ft²
3 bedroom detached house for sale in Stockton Road, Royal Quays, North Shields, NE29 — £300,000 • 3 bed • 2 bath • 1077 ft²
3 bedroom semi-detached house for sale in Molesdon Close, North Shields, NE30 — £280,000 • 3 bed • 2 bath • 1041 ft²
3 bedroom detached house for sale in Ayres Terrace, North Shields, NE29 — £300,000 • 3 bed • 1 bath • 1327 ft²
3 bedroom semi-detached house for sale in Trevor Terrace, North Shields, NE30 — £300,000 • 3 bed • 1 bath • 761 ft²






































































































































































































































































































































































