Compact renovation project close to town amenities and commuter links.
Stone mid-terrace cottage dating before 1900, traditional character
Requires full modernisation and energy-efficiency improvements
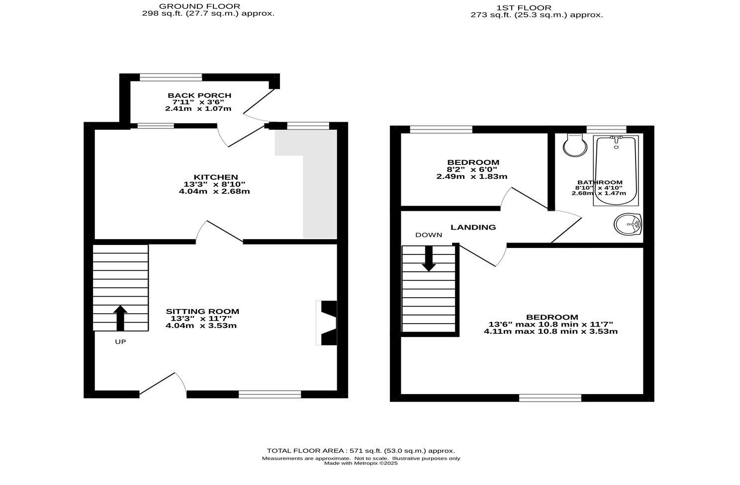
Two bedrooms; compact layout totalling 571 sq ft
Good-sized rear garden with flagged terrace and distant views
Double glazing and mains gas central heating present
Small footprint and potential street noise in town-fringe location
Overgrown garden and external maintenance needed
Local crime levels above average; council tax is low
This traditional Victorian stone mid-terrace offers a clear renovation opportunity in a convenient Whaley Bridge location. The compact two-bedroom layout is practical for first-time buyers seeking an affordable entry into the market or buyers wanting a straightforward project to add value.
Internally the house is ready for modernisation: a front sitting room, rear fitted kitchen with dining area, and two bedrooms above. The property already has double glazing and mains gas central heating, but the stone walls are likely uninsulated and the interior shows dated fittings and general wear — further upgrades will be needed to bring standards up and improve energy performance.
Outside, a flagged terrace leads down to a good-sized rear garden with distant views — a useful asset for outdoor living or extension subject to checks. The property footprint and garden are modest, typical of older terraces, and the rear garden is currently overgrown and will require maintenance.
Location is a major positive: minutes from Whaley Bridge town centre with shops, good primary and secondary schools, canal and countryside walks, plus excellent bus and rail commuter links. Practical considerations: the house is small (571 sq ft), in a town-fringe setting where street noise can occur, and local crime statistics are above average. Council tax is relatively low and there is no flooding risk recorded.
5 bedroom terraced house for sale in Old Road, Whaley Bridge, SK23 — £445,000 • 5 bed • 2 bath • 1786 ft²
2 bedroom end of terrace house for sale in Macclesfield Road, Whaley Bridge, High Peak, SK23 — £260,000 • 2 bed • 1 bath • 554 ft²
2 bedroom terraced house for sale in Bridgemont, Whaley Bridge, High Peak, SK23 — £225,000 • 2 bed • 1 bath • 711 ft²
2 bedroom end of terrace house for sale in Yeardsley Lane, Furness Vale, High Peak, SK23 — £125,000 • 2 bed • 1 bath • 811 ft²
2 bedroom terraced house for sale in Buxton Road, Whaley Bridge, SK23 — £225,000 • 2 bed • 1 bath • 926 ft²
2 bedroom terraced house for sale in Yeardsley Lane, Furness Vale, High Peak, SK23 — £199,000 • 2 bed • 1 bath • 618 ft²


















































