Renovation opportunity close to schools, shops and commuter links.
Stone end-of-terrace with period features and double glazing
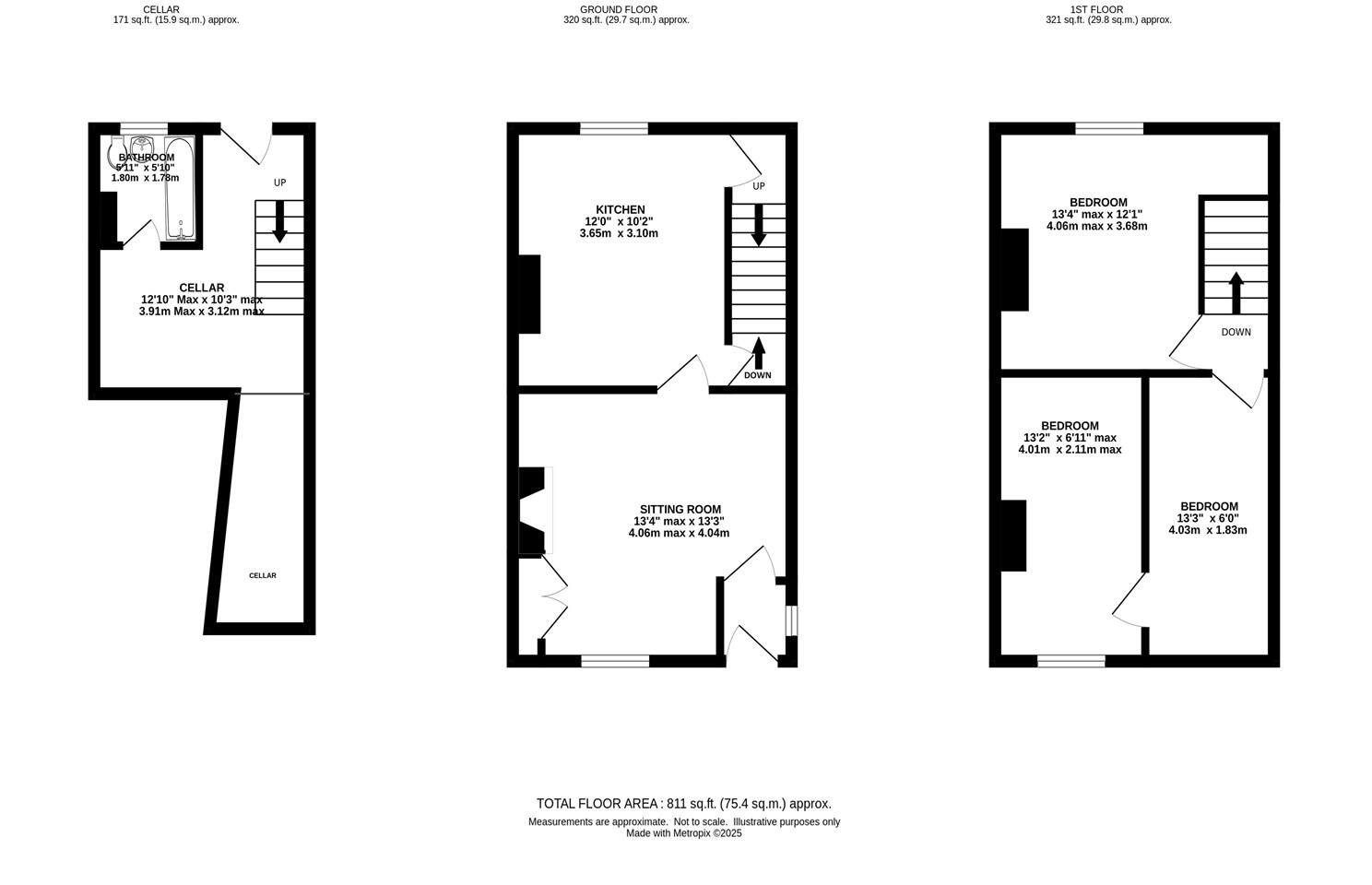
Two flexible bedrooms (one currently partitioned into two rooms)
Lower-ground basement includes bathroom, storage and laundry space
Good-sized rear garden with possible rear extension (subject to approvals)
Requires full modernisation and upgrading throughout
Leasehold tenure — check terms and any service charges
Original stone walls likely uninsulated; further insulation may be needed
Mains gas central heating; cheap council tax and very low local crime
This stone end-of-terrace mid-Victorian home offers a solid canvas for a first-time buyer or investor prepared to modernise. The property sits in a popular Furness Vale location close to shops, schools and commuter links to Whaley Bridge. Internally it provides a sitting room, dining kitchen, and a lower-ground basement with a bathroom and useful storage/laundry space.
The first-floor landing serves two generous bedrooms; one has been partitioned to create an additional smaller room, so accommodation can flex to two or three bedrooms. A good-sized rear garden and potential to extend at the rear (subject to planning approval) add scope to increase living space and future value.
Important practical points: the house requires upgrading throughout — cosmetic and likely mechanical improvements are needed — and the stone walls are original with no confirmed cavity insulation. The property is leasehold, offers double glazing installed after 2002, mains gas central heating and about 811 sq ft of living space. These facts make it a lower-entry-price purchase with renovation potential, suitable for owner-occupation or rental after refurbishment.
For buyers looking to add value, the layout and garden present clear opportunities. For those wanting a move-in-ready home, expect a programme of works and associated costs. Local amenities, low crime and good schools nearby strengthen long-term appeal.
2 bedroom terraced house for sale in Yeardsley Lane, Furness Vale, High Peak, SK23 — £199,000 • 2 bed • 1 bath • 618 ft²
2 bedroom end of terrace house for sale in Buxton Road, Furness Vale, High Peak, Derbyshire, SK23 — £175,000 • 2 bed • 2 bath • 877 ft²
2 bedroom terraced house for sale in Buxton Road, Furness Vale, SK23 — £170,000 • 2 bed • 1 bath
2 bedroom end of terrace house for sale in Buxton Road, Furness Vale, SK23 — £210,000 • 2 bed • 2 bath • 1082 ft²
2 bedroom terraced house for sale in Buxton Road, New Mills, High Peak, SK22 — £220,000 • 2 bed • 1 bath • 940 ft²
2 bedroom terraced house for sale in Buxton Road, Furness Vale, High Peak, Derbyshire, SK23 — £165,000 • 2 bed • 1 bath • 738 ft²


















































