- Traditional late-Victorian stone mid-terrace with period character
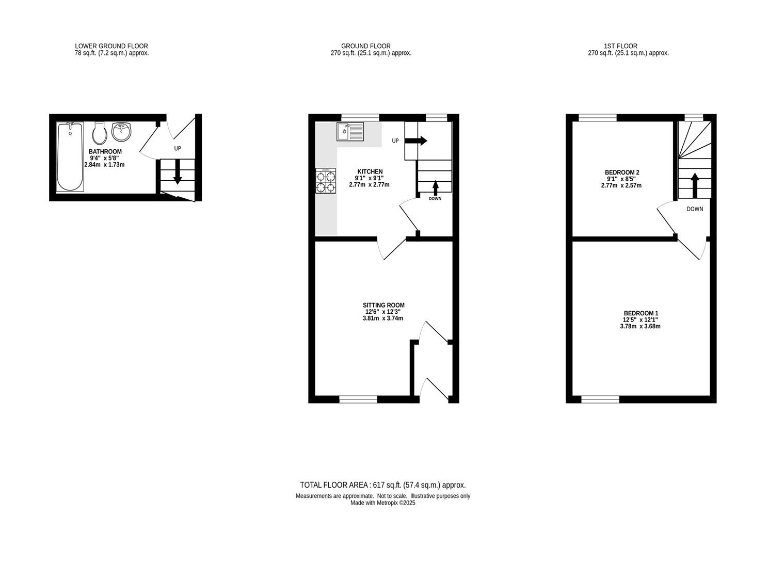
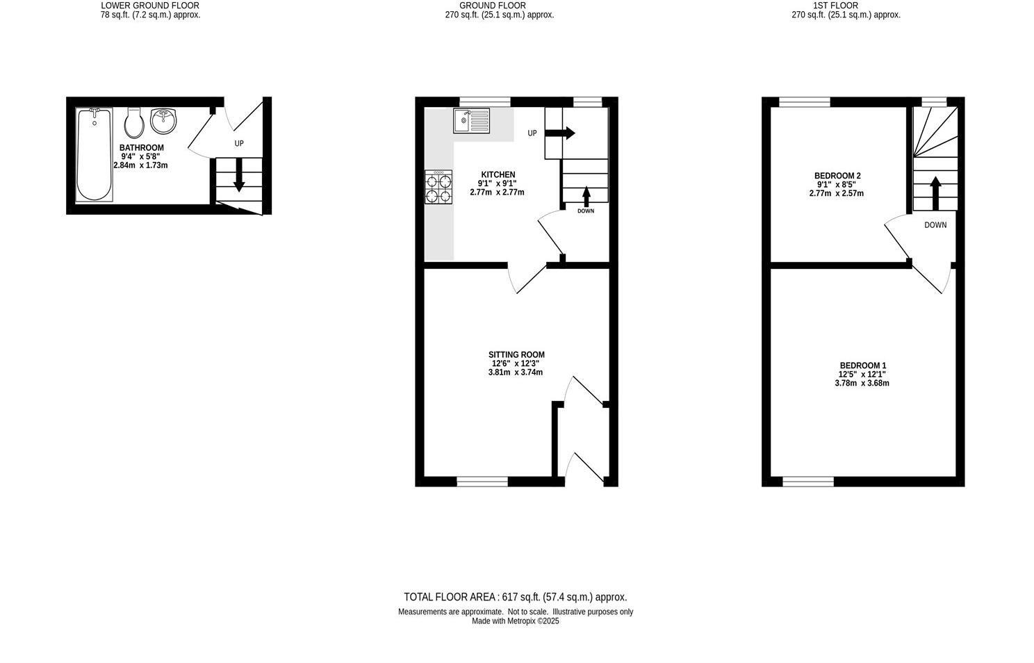
- Two bedrooms, sitting room, fitted kitchen, lower-ground bathroom
- Small front forecourt and enclosed rear garden with decking
- Long lease remaining (813 years) — leasehold tenure
- Property dated; requires modernisation and cosmetic refurbishment
- Noted signs of damp; professional investigation and repairs advised
- Double glazing installed after 2002; stone walls likely uninsulated
- Convenient for rail links, Whaley Bridge and New Mills amenities
A traditional late-Victorian stone mid-terrace in Furness Vale, this two-bedroom house sits on a quiet street with easy rail links to Manchester and nearby towns. The layout offers a sitting room, fitted kitchen, lower-ground bathroom and two first-floor bedrooms, with small forecourt and an enclosed rear garden featuring decking and additional space. The long lease (813 years) and mains gas central heating make it straightforward for mortgage or rental purposes.
The property is presented in an outdated condition and will suit buyers ready to modernise. Internal photos and descriptions indicate small-to-average room sizes and cosmetic wear throughout; there are noted signs of damp in places that will need investigation and repair. Double glazing was fitted post-2002, while original stone walls are uninsulated (assumed), so energy-efficiency upgrades would add long-term value.
This home will appeal to first-time buyers seeking an affordable, characterful starter home in a commuter-friendly village, or investors targeting rental demand in a low-crime, affluent area. Expect modest renovation and remediation costs but clear potential to increase comfort and value with targeted updates to heating, insulation, and décor.
2 bedroom terraced house for sale in Buxton Road, Furness Vale, SK23 — £170,000 • 2 bed • 1 bath
2 bedroom end of terrace house for sale in Buxton Road, Furness Vale, High Peak, Derbyshire, SK23 — £175,000 • 2 bed • 2 bath • 877 ft²
2 bedroom terraced house for sale in Buxton Road, New Mills, High Peak, SK22 — £220,000 • 2 bed • 1 bath • 940 ft²
2 bedroom terraced house for sale in Buxton Road, Furness Vale, High Peak, Derbyshire, SK23 — £165,000 • 2 bed • 1 bath • 738 ft²
2 bedroom terraced house for sale in Bingswood Avenue, Whaley Bridge, High Peak, SK23 — £195,000 • 2 bed • 1 bath • 740 ft²
2 bedroom apartment for sale in Station Road, Furness Vale, High Peak, SK23 — £195,000 • 2 bed • 1 bath • 917 ft²






























