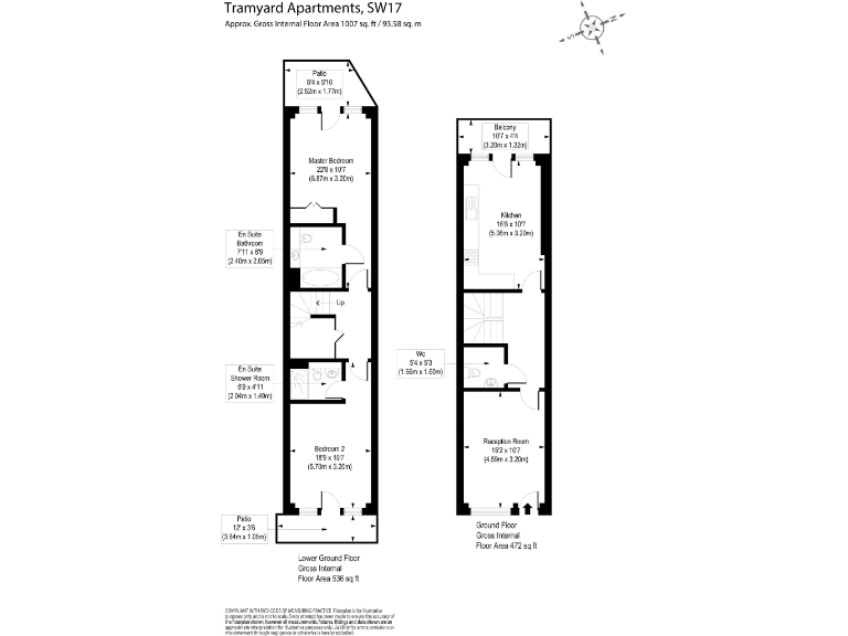
A contemporary two-bedroom home with private outdoor space and excellent transport links.
Own front door and split-level layout for townhouse feel
This contemporary split-level maisonette offers 1,007 sqft of well-arranged living space across two levels, with its own front door and private outdoor areas. The bright reception and modern kitchen open onto a balcony, while the lower ground floor master bedroom and second double both have patio access and en suite facilities. The finish is immaculate, with engineered wood floors, recessed lighting, and integrated appliances throughout.
Positioned on Balham High Road between Balham and Tooting Bec, the apartment is a short walk from Northern Line and National Rail connections, plus a wide selection of cafés, shops and green spaces such as Wandsworth and Tooting Commons. The long lease (992 years) and newly renovated condition make it straightforward to move into or to let out quickly.
Practical considerations: the property is leasehold with a service charge of £4,254 (above average) and heated via a community scheme. Local recorded crime is above average for the borough — purchasers should check security requirements. Council Tax band D applies.
2 bedroom flat for sale in Balham High Road, London, SW17 — £650,000 • 2 bed • 2 bath • 995 ft²
3 bedroom maisonette for sale in Caithness Road, Tooting, CR4 — £525,000 • 3 bed • 2 bath • 1095 ft²
3 bedroom maisonette for sale in Sellincourt Road, Tooting, SW17 — £700,000 • 3 bed • 2 bath • 1124 ft²
1 bedroom maisonette for sale in Oldridge Road, London, SW12 — £425,000 • 1 bed • 1 bath • 485 ft²
2 bedroom flat for sale in Barringer Square, Tooting, SW17 — £475,000 • 2 bed • 1 bath • 773 ft²
3 bedroom maisonette for sale in Midmoor Road, Balham, SW12 — £875,000 • 3 bed • 2 bath • 1104 ft²


























































