Move-in ready village home with furniture and a 5% deposit boost.
- Newly built three-bedroom semi-detached house
- Showhome sold with all furniture, fixtures and fittings
- 5% deposit contribution available (£24,997) on Sundew showhome
- Energy efficient: air source heat pump, LED lighting, double glazing
- Single garage plus driveway parking
- Enclosed rear garden; modest plot and limited front garden
- Average internal footprint; rooms typical of new-build proportions
- Council tax band unknown
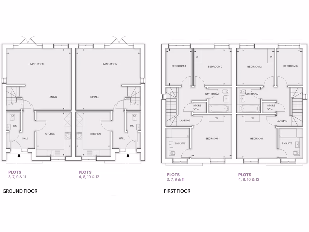
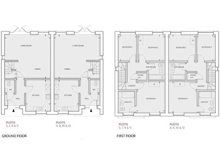
A newly built three-bedroom semi-detached home in the peaceful hamlet of South Chailey, finished to a high specification and designed for low-maintenance living. The showhome is sold with all fixtures, fittings and furniture included, and the developer is offering a 5% deposit contribution worth £24,997 when reserving the Sundew showhome — a useful boost for first-time buyers looking to get on the ladder.
The ground floor offers an entrance hall with cloakroom, a fitted kitchen with integrated Bosch appliances and Amtico flooring, plus a light open-plan living/dining room with French doors out to an enclosed rear garden and patio. First-floor accommodation comprises a master bedroom with built-in wardrobe and en-suite, two further bedrooms and a contemporary family bathroom. Practical extras include a single garage, driveway parking, underfloor heating to the ground floor and bathrooms, double glazing and an air source heat pump for energy efficiency.
Set within a small development bordering open green space and close to the South Downs National Park, the property benefits from a rural feel while being near Cooksbridge station and local schools rated Good–Outstanding. The plot is modest, typical of modern village developments, so the garden and overall footprint are average rather than expansive. Council tax band is not confirmed.
This a straightforward, energy-efficient new home with immediate move-in potential thanks to the included furnishings and a 10-year build warranty. It will appeal to first-time buyers wanting a ready-to-live-in property in an attractive countryside setting, though buyers seeking large gardens or extensive internal space should note the modest plot and room sizes.
3 bedroom semi-detached house for sale in Heatherlands,
Old Brickworks Lane,
Lewes,
South Chailey,
East Sussex,
BN8 4QD, BN8 — £499,999 • 3 bed • 2 bath • 1032 ft²
3 bedroom semi-detached house for sale in Heatherlands,
Old Brickworks Lane,
Lewes,
South Chailey,
East Sussex,
BN8 4QD, BN8 — £479,999 • 3 bed • 2 bath • 1032 ft²
3 bedroom semi-detached house for sale in Heatherlands,
Old Brickworks Lane,
Lewes,
South Chailey,
East Sussex,
BN8 4QD, BN8 — £469,999 • 3 bed • 2 bath • 1032 ft²
3 bedroom semi-detached house for sale in South Chailey, Lewes, BN8 — £479,999 • 3 bed • 2 bath • 1032 ft²
3 bedroom semi-detached house for sale in South Chailey, Lewes, BN8 — £469,999 • 3 bed • 2 bath • 1032 ft²
3 bedroom semi-detached house for sale in South Chailey, South Chailey, Lewes, East Sussex, BN8 — £450,000 • 3 bed • 1 bath • 768 ft²






























