Energy-efficient three-bedroom semi with garage, garden and £10,000 stamp duty aid.
£10,000 contribution towards stamp duty
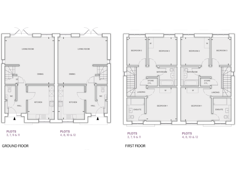
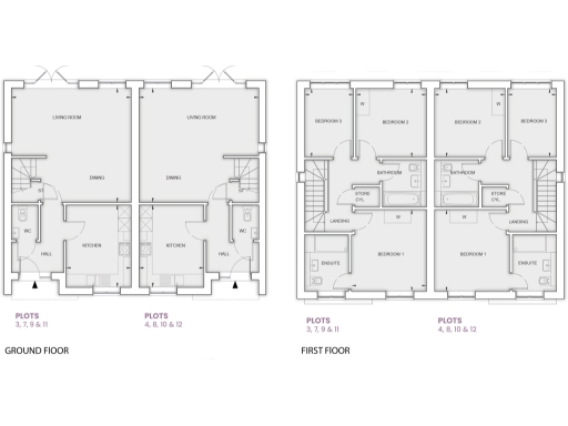
Plot 3 at Heatherlands is a newly built three-bedroom semi-detached house finished to a high specification in the picturesque village of South Chailey. The home is designed for low running costs, with an air source heat pump, underfloor heating to the ground floor and wet rooms, LED downlighters and double glazing. The kitchen comes complete with Bosch integrated appliances and Amtico flooring, while the master bedroom benefits from a built-in wardrobe and en-suite shower room.
The property includes an enclosed rear garden, single garage and off-street parking, and sits on a small plot within a development that backs onto open green space and is near the South Downs National Park. Interiors are bright and contemporary, with an open-plan living/dining room and French doors that open onto a patio for easy indoor–outdoor flow. Many practical extras are installed, including USB sockets, wiring for Sky and an electric fuse spur for an alarm.
Buyers should note this is a semi-detached home on a small plot, so there is an attached neighbour and limited garden space compared with detached houses. Photos are from the show home and the plot will be finished to the same specification; exact landscaping and final finishes may vary. Stamp duty assistance of £10,000 is offered to help with purchase costs.
This house will suit families or professionals seeking a low‑maintenance, energy-efficient home in a quiet rural setting with good broadband and mobile signal, easy access to local primary and secondary schools, and open countryside on the doorstep.
3 bedroom semi-detached house for sale in Heatherlands,
Old Brickworks Lane,
Lewes,
South Chailey,
East Sussex,
BN8 4QD, BN8 — £479,950 • 3 bed • 2 bath • 1032 ft²
3 bedroom semi-detached house for sale in Heatherlands,
Old Brickworks Lane,
Lewes,
South Chailey,
East Sussex,
BN8 4QD, BN8 — £499,950 • 3 bed • 2 bath • 1032 ft²
3 bedroom semi-detached house for sale in Heatherlands,
Old Brickworks Lane,
Lewes,
South Chailey,
East Sussex,
BN8 4QD, BN8 — £480,000 • 3 bed • 2 bath • 1032 ft²
2 bedroom semi-detached house for sale in Heatherlands,
Old Brickworks Lane,
Lewes,
South Chailey,
East Sussex,
BN8 4QD, BN8 — £395,000 • 2 bed • 2 bath • 848 ft²
3 bedroom semi-detached house for sale in Heatherlands,
Old Brickworks Lane,
Lewes,
South Chailey,
East Sussex,
BN8 4QD, BN8 — £525,000 • 3 bed • 2 bath • 1032 ft²
3 bedroom detached house for sale in Meadow Way, South Chailey, Lewes, BN8 — £475,000 • 3 bed • 2 bath • 1186 ft²






























