Move-in ready home with modern fittings and countryside access.
Bespoke shaker kitchen with Bosch integrated appliances
Bright living/dining room opening onto turfed rear garden
Master bedroom with en-suite and fitted wardrobes
Indian sandstone patio and landscaped low-maintenance garden
Garage, allocated parking and EV charging point included
Two-year defect and ten-year structural warranties provided
Service charge £343.33 pa; council tax band TBC for new build
Third bedroom is the smallest — better as child’s room or study
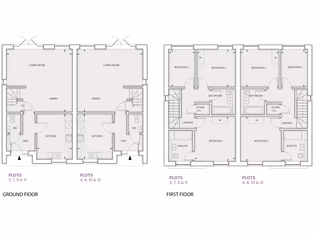
Set within Heatherlands in South Chailey, this three-bedroom semi-detached new build offers ready-to-move-in accommodation with sensible, modern specification. The bespoke shaker-style kitchen with integrated Bosch appliances and a bright living/dining room that opens onto a turfed rear garden make everyday life straightforward and low-maintenance. External features include Indian sandstone paths and patio, garage, allocated parking and an EV charging point.
Practical details include fitted wardrobes to the master and second bedroom, an en-suite, and contemporary bathroom tiling by Minoli with electric underfloor heating. The home is sold freehold and comes with a two-year defect and ten-year structural warranty for buyer reassurance. Internal finishes such as oak handrail, included flooring and contemporary fixtures mean there is little immediate work required.
Be aware of a modest annual service charge of £343.33 and that the council tax band for this new build is still to be confirmed. The third bedroom is the smallest of the three and will suit a child’s room, study or occasional guest room rather than a large primary bedroom. Overall, this property will appeal to buyers seeking a modern, low-upkeep home close to countryside walks and decent rail links.
3 bedroom semi-detached house for sale in Heatherlands,
Old Brickworks Lane,
Lewes,
South Chailey,
East Sussex,
BN8 4QD, BN8 — £499,999 • 3 bed • 2 bath • 1032 ft²
3 bedroom semi-detached house for sale in Heatherlands,
Old Brickworks Lane,
Lewes,
South Chailey,
East Sussex,
BN8 4QD, BN8 — £479,999 • 3 bed • 2 bath • 1032 ft²
3 bedroom semi-detached house for sale in South Chailey, Lewes, BN8 — £479,950 • 3 bed • 2 bath • 1032 ft²
3 bedroom house for sale in Woodland View, South Chailey, BN8 — £485,000 • 3 bed • 2 bath • 944 ft²
3 bedroom semi-detached house for sale in South Chailey, South Chailey, Lewes, East Sussex, BN8 — £450,000 • 3 bed • 1 bath • 768 ft²
3 bedroom detached house for sale in Old Brickworks Lane, South Chailey, BN8 — £495,000 • 3 bed • 2 bath • 1200 ft²


















































