EX22 7UQ - 3 bedroom detached house for sale in East Putford, Holswort…

View on Property Piper

3 bedroom detached house for sale in East Putford, Holsworthy, Devon, EX22

Summary - LITTLECOTT EAST PUTFORD HOLSWORTHY EX22 7UQ

3 bed 3 bath Detached

Period cottage with annexe income, outbuildings and large gardens in rural Devon.
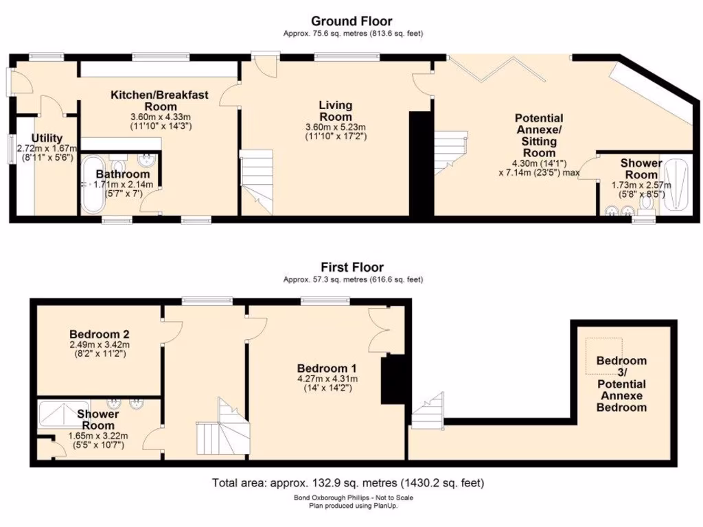
3-bedroom detached period cottage plus separate 1-bed annexe holiday let
A beautifully renovated detached period cottage quietly set in rural East Putford, now offering flexible living for families or landlords. The main house provides two bedrooms while a self-contained one-bedroom annexe operates as an established, profitable holiday let — offering immediate income and longer-term versatility.

Outdoor space and outbuildings are genuine selling points: generous gardens, extensive off-street parking for over ten cars, a 22ft double garage and a 45ft workshop provide scope for hobbies, storage or small-scale business use. There is also potential for further development subject to obtaining the necessary consents.

Buyers should note some important practical realities: the property has an EPC rating of G, electric storage heating and traditional granite walls likely without modern insulation. Broadband speeds are very slow and the location is a remoter hamlet, which suits rural buyers but may challenge those needing fast connectivity or frequent commuting.

Overall this is a rare, large rural plot with immediate holiday-let income and flexible accommodation. It will suit purchasers seeking countryside character, space for vehicles and workshops, and who are prepared for energy-efficiency upgrades and planning considerations.

Property Details

Brochure Descriptions

Image Descriptions

Floorplan Description

Rooms

Textual Property Features

Target Audience

AI Tags

Detected Visual Features

EPC Details

Nearby Schools

Nearest Bars And Restaurants

,,,,}

Nearest General Shops

,,}

Nearest Grocery shops

,,}

Nearest Supermarkets

,,}

Nearest Religious buildings

,,}

Nearest Medical buildings

,,,}

Nearest Leisure Facilities

,,,,}

Nearest Tourist attractions

,,}

Nearest Train stations

,,,,}

Nearest Bus stations and stops

,,,,}

Nearest Hotels

,,}

Tags

Local Market Stats

AirBnB Data

Similar Properties

Meta

High Res Images

Compatible Images

Low res Images

Thumbnails

Raw Images

High Res Floorplan Images

Compatible Floorplan Images

Low res Floorplan Images

FloorplanImages Thumbnail

Raw Floorplan Images