Spacious three-bed home with insulated summer house and off-street parking.
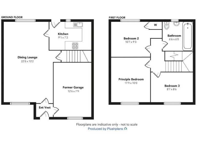
- Three bedrooms with a large 22' dining-size lounge
- Private rear garden with insulated, powered summer house
- Monobloc driveway providing two-car off-street parking
- Gas central heating, new double glazing, EPC C
- Single house bathroom; only one bathroom upstairs
- Former garage converted to storage, not full vehicle garage
- Situated in a very deprived area; may affect resale potential
- Closing date Wednesday 5th November at 11am for offers
A bright three-bedroom semi-detached villa in a quiet cul-de-sac, presented in neutral tones and ready to occupy. The ground floor includes a large 22' dining-size lounge and an efficient high-gloss kitchen with integrated oven and hob. A former garage provides useful storage; a monobloc driveway offers off-street parking for two cars. The private rear garden has a powered, insulated summer house ideal for home office, hobby room or extra storage.
Upstairs there are three carpeted bedrooms and a house bathroom with a plumbed shower over the bath. The home benefits from gas central heating, new double glazing and an EPC rating of C. At around 915 sq ft, it suits a family seeking straightforward, low-maintenance accommodation in a suburban modern estate close to local amenities and transport.
Important practical points: the property sits in a very deprived area, which may affect future resale values and external investment. There is a single bathroom only and the former garage is not a full garage for vehicle use. Prospective buyers should note a closing date of Wednesday 5th November at 11am for offers. Freehold tenure and low council tax reduce running costs.
This house will suit buyers looking for a functional family home with scope to personalise or small-scale refurbishments to boost value. The insulated summer house, generous living room and off-street parking are notable conveniences for everyday family life.
3 bedroom terraced house for sale in Maitland Place, Renfrew, PA4 — £175,000 • 3 bed • 2 bath • 893 ft²
3 bedroom semi-detached house for sale in 24 Ben More Drive, Paisley, PA2 7NS, PA2 — £210,000 • 3 bed • 1 bath • 936 ft²
3 bedroom semi-detached house for sale in Dunvegan Avenue, Elderslie, Johnstone, PA5 — £250,000 • 3 bed • 2 bath • 468 ft²
3 bedroom semi-detached house for sale in Haining Road, Renfrew, PA4 — £185,000 • 3 bed • 1 bath • 801 ft²
3 bedroom semi-detached house for sale in Ben Uird Place, Glasgow, Glasgow City, G53 — £215,000 • 3 bed • 1 bath • 725 ft²
3 bedroom semi-detached house for sale in 8 St. Peters Close, Glenburn, Paisley, PA2 8NT, PA2 — £199,995 • 3 bed • 1 bath • 1011 ft²






















































