**Standout Features:**
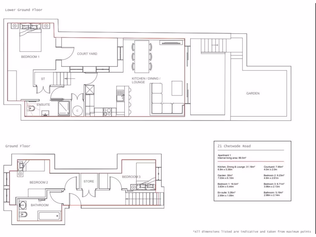
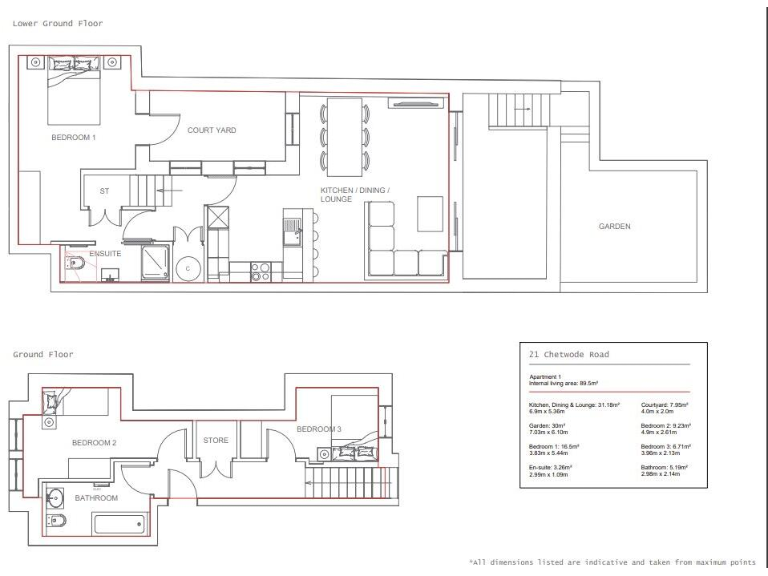
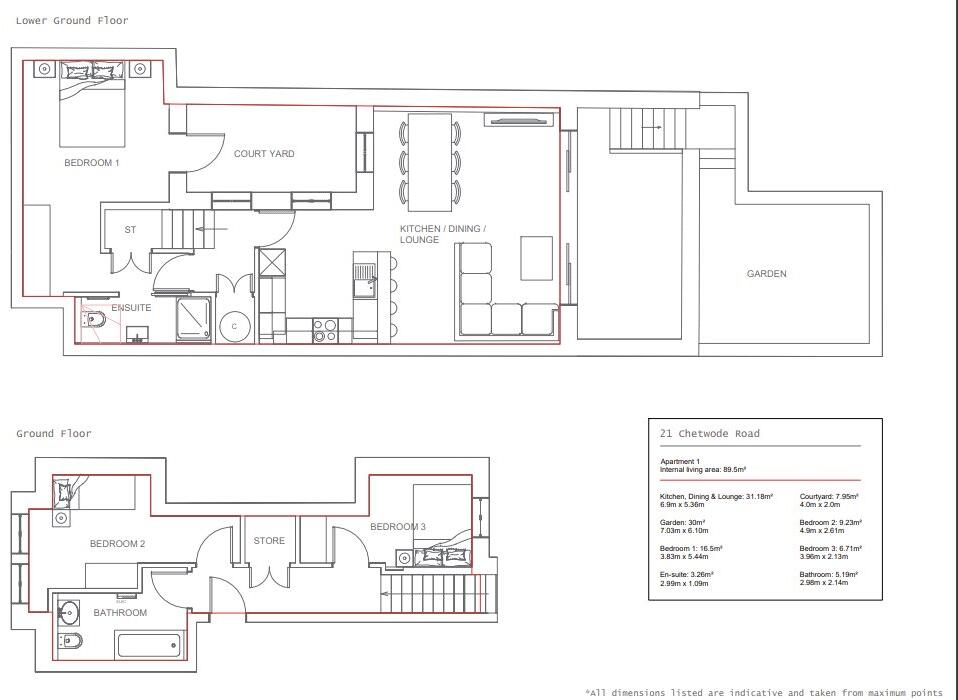
- Newly built split-level apartment, Victorian style
- Three spacious double bedrooms
- Open-plan kitchen reception area with modern finishes
- Private terrace and garden, perfect for entertaining
- Eco-friendly features: air source heat pumps, underfloor heating
- Excellent transport links and nearby green spaces
**Concise Summary:**
Discover contemporary living in this beautifully designed, split-level three-bedroom apartment, ideal for families and professionals alike. Measuring approximately 963 sq ft, this newly built residence features an open-plan kitchen reception area with modern finishes, a private garden, and a terrace perfect for outdoor entertaining. The stylish kitchen boasts integrated appliances and quartz countertops, illuminated by floor-to-ceiling glass sliding doors that invite abundant natural light.
All three double bedrooms provide ample space, with the main suite featuring a convenient en-suite shower room. Situated in a vibrant community in SW17, enjoy proximity to Balham and Tooting Bec's amenities, along with excellent transport links via the Northern Line. Additionally, the property includes eco-friendly features such as underfloor heating and secure bike storage.
While the rent can seem slightly high and the crime rate in the area is above average, the overall condition and exclusive new build nature create a fantastic investment opportunity for those seeking quality living in a bustling inner-city location. With a council tax band yet to be confirmed and a share of the freehold, this unique property won't stay on the market long—act fast to make it your own!
2 bedroom apartment for sale in Chetwode Road, SW17 — £675,000 • 2 bed • 2 bath • 773 ft²
1 bedroom apartment for sale in Chetwode Road, SW17 — £450,000 • 1 bed • 1 bath • 425 ft²
2 bedroom apartment for sale in Balham High Road, London, SW17 — £775,000 • 2 bed • 2 bath • 1007 ft²
3 bedroom apartment for sale in Trinity Road, London, SW17 — £550,000 • 3 bed • 2 bath • 932 ft²
3 bedroom apartment for sale in Louisville Road, London, SW17 — £750,000 • 3 bed • 1 bath • 1000 ft²
2 bedroom flat for sale in Trinity Road, Balham, London, SW17 — £600,000 • 2 bed • 2 bath • 840 ft²














































