**Highlights:**
- Newly built Victorian-style one-bedroom apartment
- Total size: 425 sq ft, designed for modern living
- Stylish open-plan kitchen/reception with large windows and terrace access
- Private, spacious terrace for outdoor enjoyment
- Eco-friendly features: air source heat pump, electric boiler, underfloor heating
- Share of freehold with 999 years lease remaining
- Excellent transport links to Balham and Tooting Bec
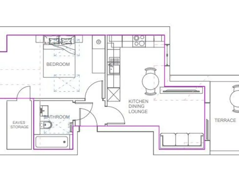
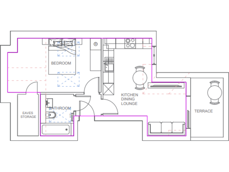
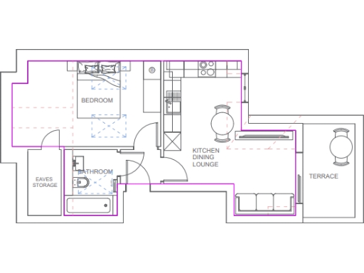
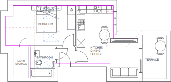
Nestled in the vibrant SW17 postcode, this contemporary one-bedroom apartment combines modern luxury with urban charm. Spanning approximately 425 sq ft, the inviting open-plan kitchen and reception area are flooded with natural light from large sliding doors that lead to a private terrace, perfect for relaxation or entertaining guests. The sleek kitchen features handleless cabinetry, integrated appliances, and elegant quartz surfaces, making it a joy for culinary enthusiasts.
The spacious bedroom, finished in calming neutrals with built-in storage, complements the aesthetic of the home. The family bathroom showcases stylish fixtures, reflecting the high-quality renovations throughout the property. With energy-efficient design elements such as double-glazing and underfloor heating, this apartment stands out in a city setting.
Though the property is compact, it maximizes its charm with thoughtful layouts and eco-credentials. Located near Balham and Tooting Bec, it offers excellent transport links and a variety of amenities at your doorstep, making it an ideal choice for first-time buyers or couples seeking a stylish, low-maintenance lifestyle in a cosmopolitan neighbourhood. Don’t miss your chance to claim this modern urban residence!
2 bedroom apartment for sale in Chetwode Road, SW17 — £675,000 • 2 bed • 2 bath • 773 ft²
3 bedroom apartment for sale in Chetwode Road, SW17 — £825,000 • 3 bed • 2 bath • 963 ft²
1 bedroom apartment for sale in Trinity Road, SW17 — £450,000 • 1 bed • 1 bath • 527 ft²
1 bedroom apartment for sale in Franciscan Road, SW17 — £450,000 • 1 bed • 1 bath • 500 ft²
1 bedroom apartment for sale in Garratt Lane, SW18 — £395,000 • 1 bed • 1 bath • 396 ft²
1 bedroom apartment for sale in Chetwode Road, London, SW17 — £425,000 • 1 bed • 1 bath • 563 ft²


























































































