DD8 2PZ - Commercial property for sale in 2 The Square, Letham, Forfa…

View on Property Piper

Commercial property for sale in 2 The Square, Letham, Forfar, DD8 2PZ, DD8

Summary - COMMERCIAL INN, 2, THE SQUARE DD8 2PZ

2 bed 1 bath Commercial Property

**Standout Features:**
- Traditional public house with owner's accommodation
- Central location in the picturesque village of Letham
- Spacious bar and customer area with characterful design
- Two-bedroom flat on the first floor, ideal for owner/manager or rental
- Freehold sale, offering a unique live/work opportunity
- Strong community support for local establishments

**Summary:**
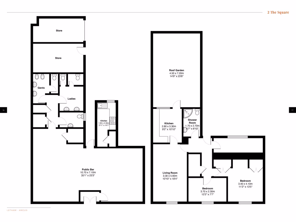
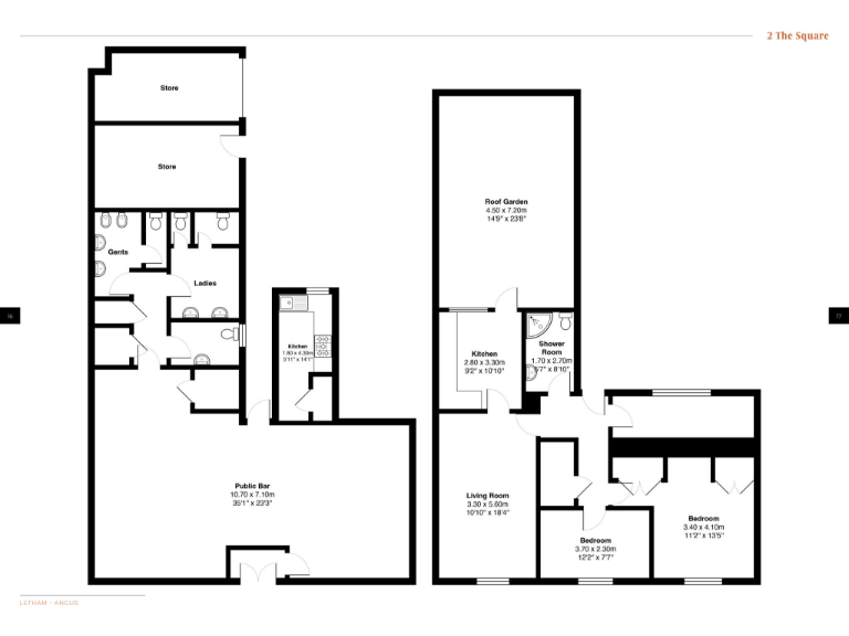
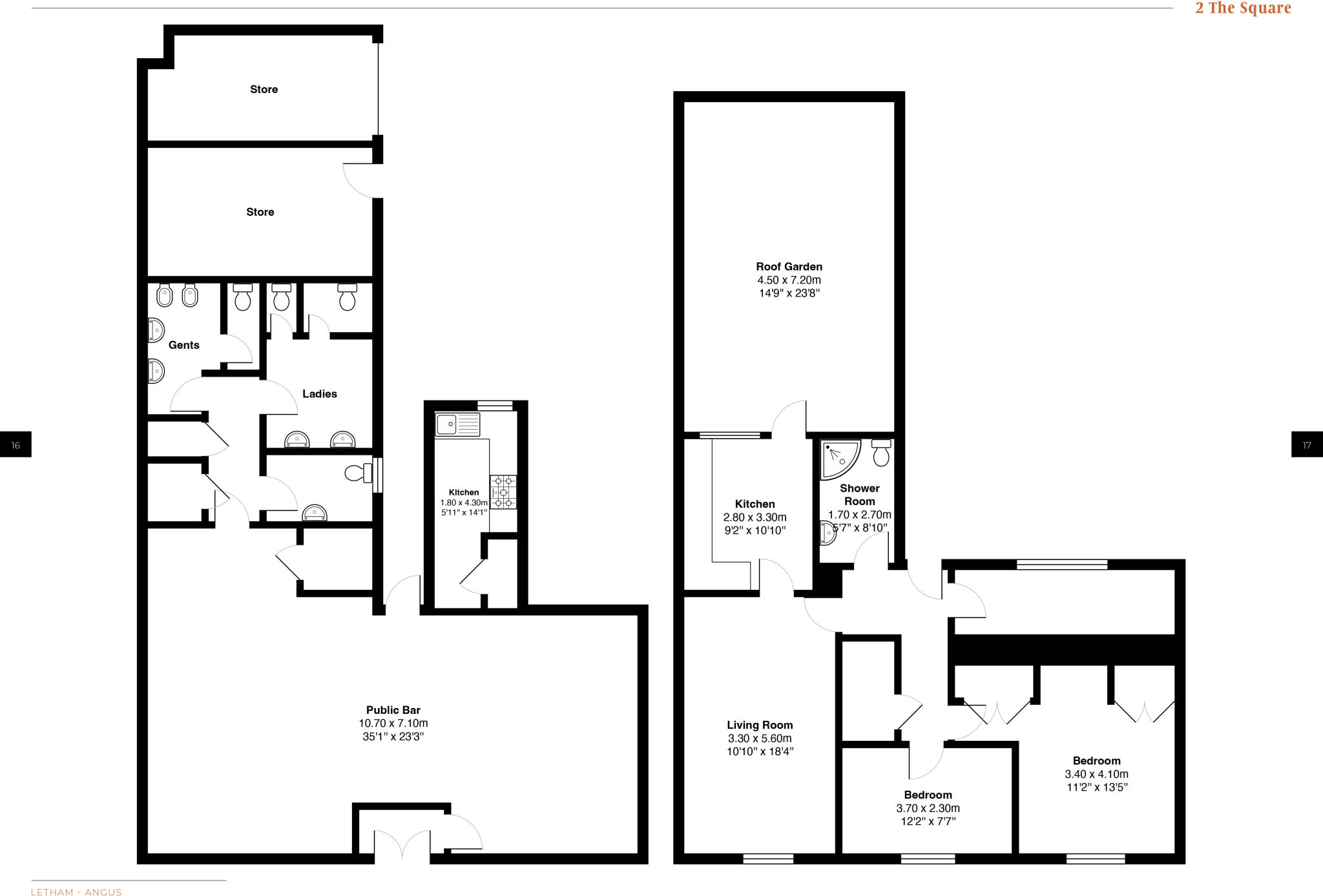
Seize the rare opportunity to own 'Commercial Inn', a charming traditional public house situated in the heart of Letham village. Spanning a significant 1,855 sq ft, this freehold property features a welcoming ground floor bar with ample natural light, a spacious trading area, and potential for wet sales. The highlight is the comfortable two-bedroom flat above, offering a bright living room, fitted kitchen, and bathroom—perfect for owner occupancy or rental income.

This property not only promises a vibrant community atmosphere but also presents numerous possibilities for growth, whether you continue as a public house or explore alternative hospitality ventures. With local amenities and strong community ties, envision a unique lifestyle where home and business seamlessly coexist. Don’t miss out on this fantastic investment in a desirable location that embodies both comfort and potential!

Property Details

Brochure Descriptions

Image Descriptions

Floorplan Description

Rooms

Textual Property Features

Detected Visual Features

Nearest Bars And Restaurants

,,,,}

Nearest General Shops

,,}

Nearest Grocery shops

,,}

Nearest Supermarkets

,,}

Nearest Religious buildings

,,}

Nearest Medical buildings

,,,}

Nearest Leisure Facilities

,,,,}

Nearest Tourist attractions

,,}

Nearest Train stations

,,,,}

Nearest Bus stations and stops

,,,,}

Nearest Hotels

,,}

Tags

Local Market Stats

Similar Properties

Meta

High Res Images

Compatible Images

Low res Images

Thumbnails

Raw Images

High Res Floorplan Images

Compatible Floorplan Images

Low res Floorplan Images

FloorplanImages Thumbnail

Raw Floorplan Images