Rare long garden and extension potential close to Grange Park station.
Significant rear garden exceeding 200 feet
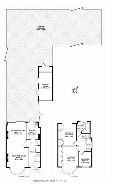
Set on a quiet cul-de-sac in N21, this three-bedroom semi offers a rare garden of more than 200 feet — a major draw for families who want outdoor space and scope for landscaping or play. The through-lounge and separate kitchen provide flexible living, and the house benefits from double glazing, air conditioning and sound-insulated floors.
Practical features include off-street parking and a location within walking distance of Grange Park station (around 30 minutes to Moorgate). The property sits within the catchment areas for St. Paul’s CofE, Grange Park Primary and Winchmore School, making it convenient for school runs and family life.
There is clear potential to extend to the rear and into the loft (subject to planning permission), offering scope to increase living space and value. Internally the home mixes period character with modernised elements, making it comfortable now while still allowing buyers to personalise further.
Buyers should note material points: the house has a single bathroom plus separate WC, solid brick walls likely without cavity insulation, and an expensive council tax band. Flooding risk is assessed as medium in the area. These factors affect running and improvement costs and should inform renovation plans.
5 bedroom semi-detached house for sale in Old Park Grove, Enfield, EN2 — £1,075,000 • 5 bed • 2 bath • 2221 ft²
5 bedroom semi-detached house for sale in Chaseville Park Road, London, N21 — £995,000 • 5 bed • 3 bath • 2191 ft²
3 bedroom semi-detached house for sale in Hoodcote Gardens, London, N21 — £965,000 • 3 bed • 1 bath • 1136 ft²
4 bedroom semi-detached house for sale in Eversley Park Road, London, N21 — £1,200,000 • 4 bed • 2 bath • 2021 ft²
5 bedroom semi-detached house for sale in Green Dragon Lane, N21 — £1,300,000 • 5 bed • 2 bath • 2926 ft²
6 bedroom semi-detached house for sale in Landra Gardens, London, N21 — £1,000,000 • 6 bed • 3 bath • 2373 ft²






































































































































