E17 8JL - 4 bedroom terraced house for sale in Farmilo Road, Walthams…

View on Property Piper

4 bedroom terraced house for sale in Farmilo Road, Walthamstow, E17

Summary - 7 FARMILO ROAD LONDON E17 8JL

4 bed 2 bath Terraced

Well-presented 4-bed Victorian terrace with loft conversion and private garden.
Central Walthamstow location near shops, bars, and excellent transport
Set in central Walthamstow, this four-bedroom mid-terrace blends Victorian character with recent renovation. The house is presented in good decorative order and benefits from a modern kitchen, a recently refurbished loft conversion and two bathrooms — ready for family life from day one. The private rear garden and a generous lounge/dining room provide useful living and entertaining space.

Practical benefits include freehold tenure, mains gas heating with boiler and radiators, double glazing, fast broadband and excellent mobile signal. The property’s 1,125 sqft of accommodation and room proportions suit growing families who need space close to shops, cafes, schools and strong transport links into central London.

Notable points to check: the plot and front/rear gardens are small, the wider area is classified as deprived and the property’s solid brick walls are assumed to lack insulation — buyers may want to budget for insulation or energy improvements. Also verify planning/building-regulation consents for the loft conversion and any other works, as well as fixtures, fittings and services.

This home is best for families seeking a well-presented, characterful period house in a lively, well-connected neighbourhood with excellent local schools and amenities nearby.

Property Details

Image Descriptions

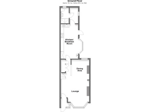
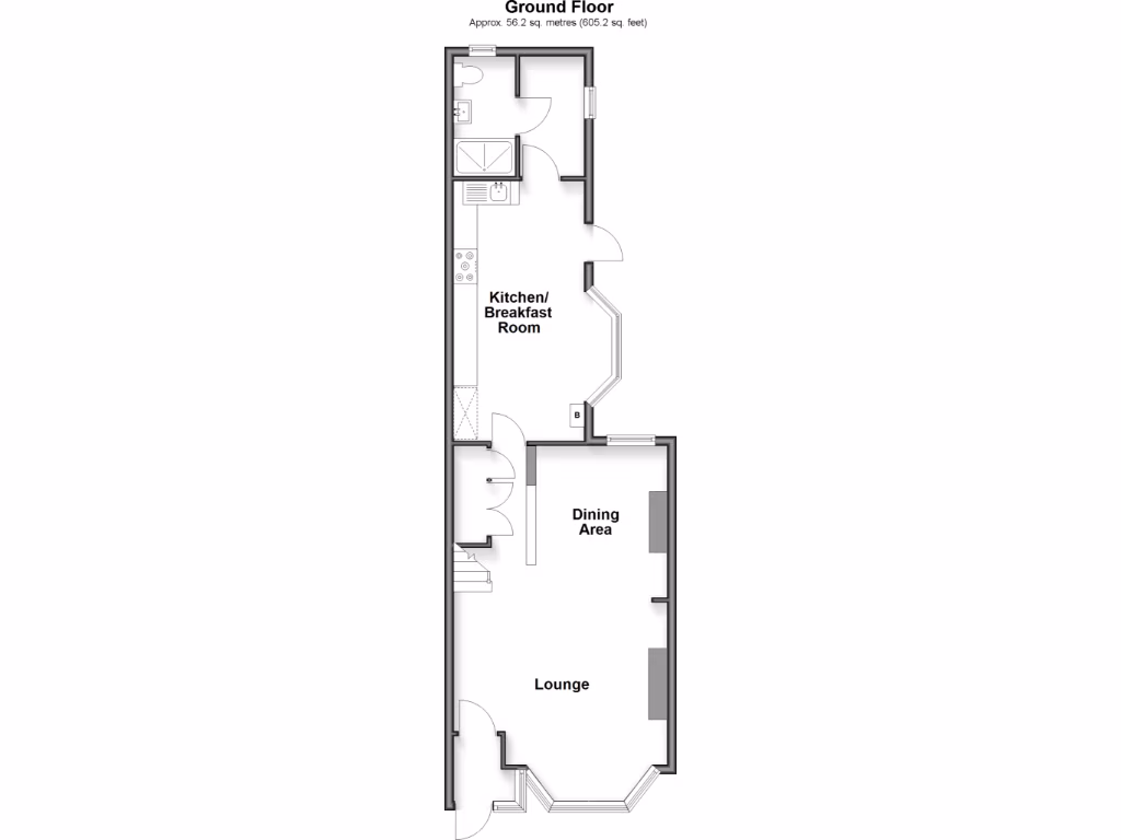
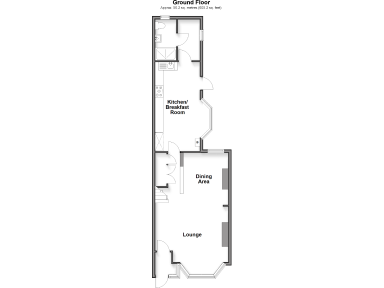
Floorplan Description

Rooms

Textual Property Features

Target Audience

AI Tags

Detected Visual Features

EPC Details

Nearby Schools

Nearest Bars And Restaurants

,,,,}

Nearest General Shops

,,}

Nearest Grocery shops

,,}

Nearest Supermarkets

,,}

Nearest Religious buildings

,,}

Nearest Medical buildings

,,,}

Nearest Airports

,}

Nearest Leisure Facilities

,,,,}

Nearest Tourist attractions

,,}

Nearest Train stations

,,,,}

Nearest Bus stations and stops

,,,,}

Nearest Hotels

,,}

Tags

Local Market Stats

AirBnB Data

Similar Properties

Meta

High Res Images

Compatible Images

Low res Images

Thumbnails

Raw Images

High Res Floorplan Images

Compatible Floorplan Images

Low res Floorplan Images

FloorplanImages Thumbnail

Raw Floorplan Images