Freshly renovated two-bed cottage with large south garden, close to train links.
South-facing, large rear garden with useful outbuilding
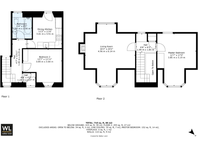
A freshly renovated two-bedroom semi-detached cottage on Greenock Road offers a smart, move-in-ready home for first-time buyers. The ground floor has a modern dining kitchen with integrated appliances and a neat bathroom; upstairs features a generous, dual-aspect living room and a spacious master bedroom with fitted storage.
Practical positives include gas central heating, double glazing and a surprisingly large south-facing rear garden with a useful outbuilding — rare for village cottages and ideal for children, pets or growing plants. The property’s traditional exterior and contemporary interior strike a comfortable balance between character and low-maintenance living.
Be aware of a few practical points: the living room has a lower-than-average ceiling in places, the front garden area is small, and the wider local area is classified as very deprived. Tenure and council tax band are not specified and should be confirmed before purchase. Overall, this is a straightforward, well-presented home priced for those seeking an affordable entry into Bishopton with strong transport links to Glasgow.
3 bedroom semi-detached house for sale in Dunsmore Road, Bishopton, PA7 — £230,000 • 3 bed • 1 bath • 794 ft²
3 bedroom semi-detached house for sale in Craighead Road, Bishopton, PA7 — £225,000 • 3 bed • 1 bath • 798 ft²
3 bedroom semi-detached house for sale in Newton Road, Bishopton, PA7 — £280,000 • 3 bed • 2 bath • 1281 ft²
3 bedroom terraced house for sale in Shuttle Street, Kilbarchan, PA10 — £215,000 • 3 bed • 2 bath • 1397 ft²
3 bedroom semi-detached house for sale in Maxwell Road, Bishopton, Renfrewshire, PA7 — £240,000 • 3 bed • 1 bath • 759 ft²
3 bedroom semi-detached house for sale in 68 Craigton Drive, Bishopton, Renfrewshire, PA7 — £235,000 • 3 bed • 3 bath


































































































