Character cottage with exceptional 160ft garden — ideal for downsizers seeking ground-floor living..
Approx. 160ft private rear garden
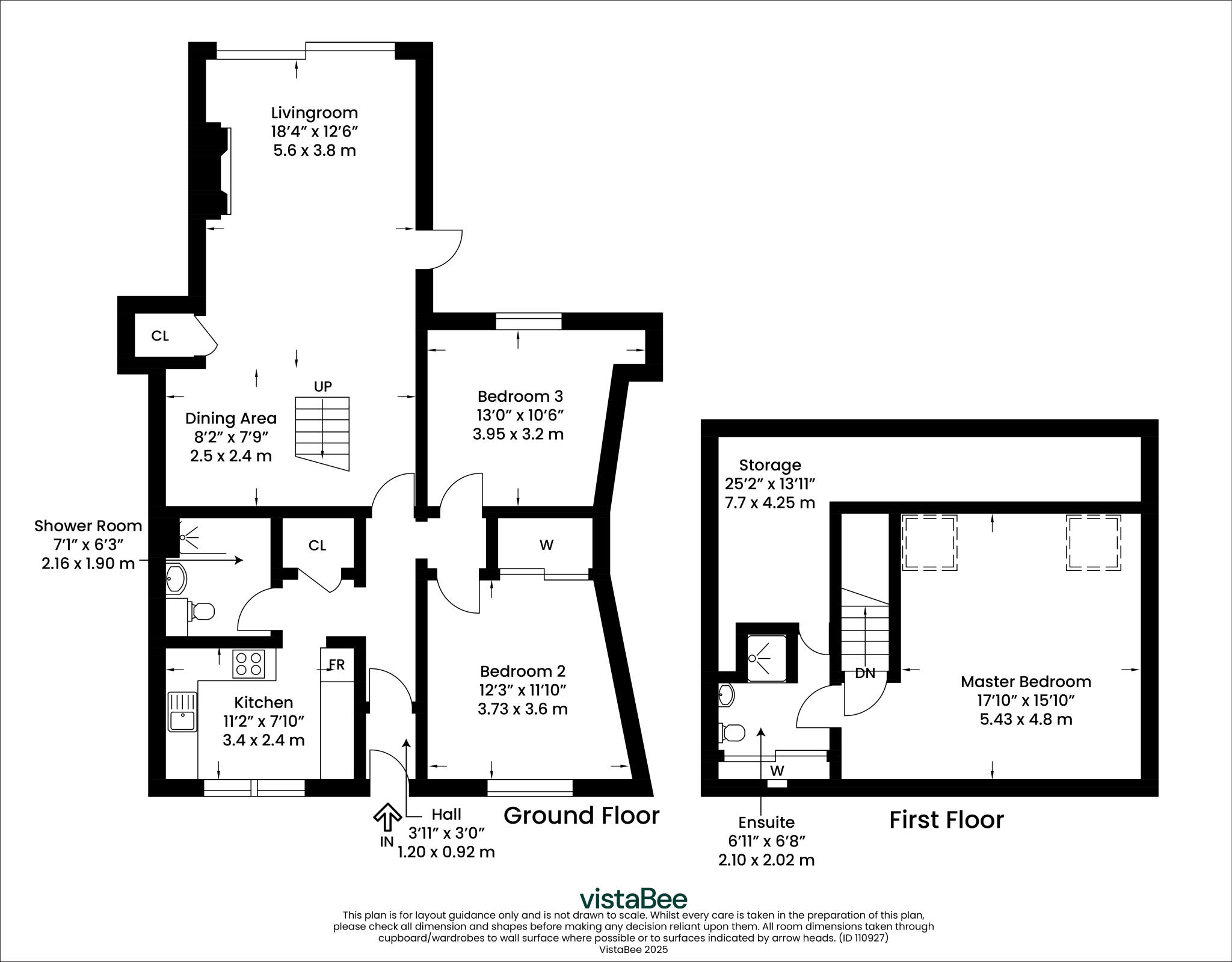
Majority of accommodation on ground floor
Large living room with patio doors to garden
Newly fitted ground-floor shower room
Main bedroom with en suite and loft storage
No private driveway or garage; limited parking
Council tax above average; area classed very deprived
Gas central heating, double glazing, fast broadband
A traditional three-bedroom terraced cottage set in Kilbarchan’s conservation village, offering comfortable mostly ground-floor living and an exceptional rear garden of approximately 160ft. The majority of accommodation is on one level, including two double bedrooms and a newly fitted shower room; upstairs is a large main bedroom with en suite and access to substantial loft storage. The house has gas central heating and mostly double glazing and has been maintained, providing a ready-to-live-in home for downsizers who value outdoor space.
The long, landscaped rear garden is the property’s standout feature — private, mature and ideal for gardening, pets or safe outdoor play. Broad patio doors from the large living room create a strong indoor–outdoor flow and bring in natural light, making the ground-floor reception particularly pleasant despite some lower ceiling heights in parts of the cottage.
Practical points to note: there is no visible private driveway or garage and on‑street parking or a forecourt is the likely option. Council tax is above average for the area and the wider locality is classified as very deprived, which may affect resale or rental demand. Broadband speeds are fast, mobile signal average, and there is no flooding risk.
Kilbarchan provides village amenities and good road links to the M8, with more comprehensive shopping and rail connections nearby. This cottage will suit someone seeking a characterful, low‑maintenance home with an unusually large garden — particularly attractive to downsizers, gardeners or buyers prioritising outside space over on‑site parking.
3 bedroom semi-detached house for sale in Milliken Drive, Kilbarchan, PA10 — £190,000 • 3 bed • 2 bath • 849 ft²
3 bedroom cottage for sale in Glenpath Cottage, Strowans Well Road, Dumbarton G82 2QN, G82 — £299,000 • 3 bed • 2 bath • 1765 ft²
4 bedroom end of terrace house for sale in McCrorie Place, Kilbarchan, Johnstone, Renfrewshire, PA10 — £240,000 • 4 bed • 2 bath • 1010 ft²
3 bedroom detached house for sale in Barochan Garden Cottage, Houston, Renfrewshire, PA6 — £549,950 • 3 bed • 4 bath • 2736 ft²
2 bedroom semi-detached house for sale in Greenock Road, Bishopton, Renfrewshire, PA7 — £200,000 • 2 bed • 1 bath • 710 ft²
5 bedroom detached house for sale in Station Road, Kilbarchan, PA10 — £525,000 • 5 bed • 3 bath • 3000 ft²






















































































