Full permission for a five-bedroom house with open field views, ideal for self-build or developer resale..
- Full planning permission for a detached five-bedroom house
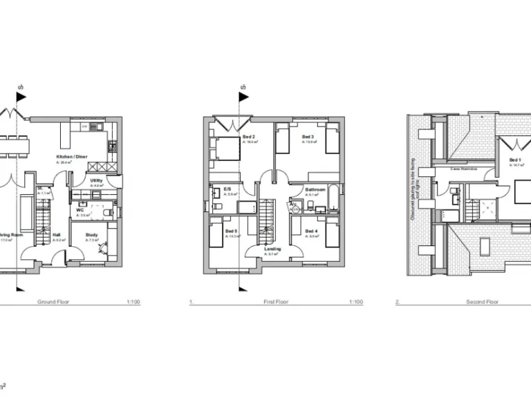
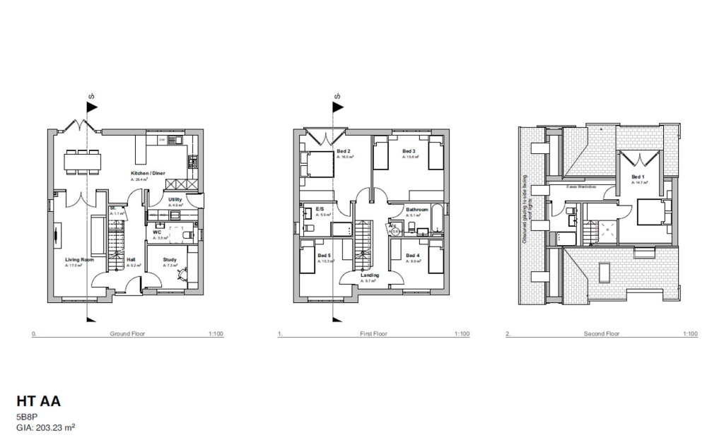
- Approx 203 sq m / 2,186 sq ft of new-build accommodation
- Large plot with countryside views and private rear garden
- Off-street parking; garage shown on Plot 2 may not be included
- Services not yet connected; utilities must be laid via access route
- Part of rear land lies within Green Belt (limited further development)
- Fast broadband and excellent mobile signal; very low local crime
- Tenure not confirmed; buyers should verify ownership details
A ready-to-go development opportunity in Stoke Prior with full planning permission for a detached five-bedroom house (Plot 1). The approved design delivers approximately 203 sq m (2,186 sq ft) of new-build accommodation, a private rear garden and off-street parking, set on a large plot with open views over adjoining fields.
The site sits in a quiet semi-rural hamlet close to Bromsgrove with fast broadband, excellent mobile signal and low local crime. Good transport links (M5/M42 nearby), strong local schools and nearby amenities make the plot viable for a resale developer scheme or a high-spec self-build family home. Elevation drawings show a modern two-storey brick design with practical internal layout including kitchen/diner, utility room and study.
Important practical notes: services are not yet connected and will need to be laid via the access route shown on the site plan. Part of the rear land included in the sale is within Green Belt designation and has historically been used as garden space, which limits further development potential. The single garage illustrated sits on Plot 2 and may not form part of this plot’s deliverables. Tenure details are not confirmed.
This plot is best suited to builders, small developers and experienced self-builders who can manage utility connections and work within Green Belt constraints. For those prepared to take on the practical matters above, the granted permission and attractive semi-rural location create clear development upside.
Land for sale in Land, Foley Gardens, Stoke Prior, Bromsgrove, B60 4LD, B60 — £440,000 • 5 bed • 3 bath • 711 ft²
Land for sale in Timberhonger Lane, Upton Warren, Bromsgrove, Worcestershire, B61 — £275,000 • 1 bed • 1 bath • 4900 ft²
Land for sale in Building Plot 3 Wescoe Newland Lane Newland Droitwich, Worcestershire, WR9 7JH, WR9 — £275,000 • 1 bed • 1 bath • 8276 ft²
Plot for sale in Haye Lane, Mappleborough Green, B80 — £300,000 • 3 bed • 3 bath • 1808 ft²
Plot for sale in Stourbridge Road, Bromsgrove, Worcestershire, B61 — £90,000 • 2 bed • 1 bath
Plot for sale in Woodcote Green, Bromsgrove B61, Worcestershire, B61 — £565,000 • 1 bed • 1 bath • 2852 ft²






















