Private garden and high ceilings moments from Upper Street and excellent transport links.
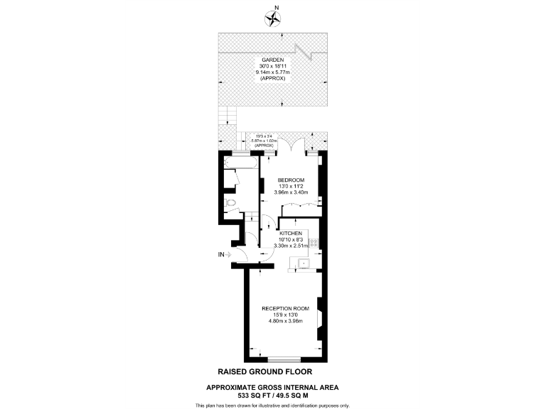
Raised ground-floor one-bedroom with private garden
High ceilings, decorative mouldings and bay-window reception
Large bedroom with French doors onto garden
Open-plan kitchen and bright bathroom
533 sq ft (average-sized one-bedroom in N1)
Share of freehold tenure
Built before 1900; solid brick, likely no cavity insulation
Double glazing present; install date unknown
Set on a raised ground floor in Barnsbury, this one-bedroom home pairs original Victorian details with an open-plan layout. High ceilings, decorative mouldings and a bay window give the reception room period character, while the open kitchen and bright bathroom suit modern living.
The large bedroom opens via French doors onto a private garden—rare for this location—and offers outdoor space for potted planting or entertaining. At 533 sq ft the apartment is an average-sized one-bedroom for N1 and will suit a couple or first-time buyer seeking a central, walkable location close to Upper Street amenities and excellent transport links.
The building dates from before 1900 with solid brick walls and assumed lack of cavity insulation; double glazing is present but install date is unknown. Heating is by mains-gas boiler and radiators. The share of freehold tenure is a positive, but buyers should allow for potential improvement costs (insulation, window upgrades) and check communal maintenance arrangements before purchase.
Location is a key strength: Barnsbury’s cafés, shops and transport to the City and West End are within easy reach. Nearby well-rated schools and fast broadband make the flat suitable for professionals or first-time buyers wanting a central, characterful home with private outdoor space.
2 bedroom apartment for sale in Barnsbury Park, London, N1 — £925,000 • 2 bed • 1 bath • 991 ft²
1 bedroom flat for sale in Barnsbury Street, Barnsbury, London, N1 — £600,000 • 1 bed • 1 bath • 563 ft²
2 bedroom flat for sale in Richmond Avenue, Islington, London, N1 — £700,000 • 2 bed • 1 bath • 600 ft²
2 bedroom apartment for sale in Offord Road, London, N1 — £1,000,000 • 2 bed • 2 bath • 925 ft²
1 bedroom flat for sale in Huntingdon Street,
Barnsbury, N1 — £500,000 • 1 bed • 1 bath • 465 ft²
2 bedroom apartment for sale in Offord Road, London, N1 — £675,000 • 2 bed • 1 bath • 1043 ft²










































































































































































































































































