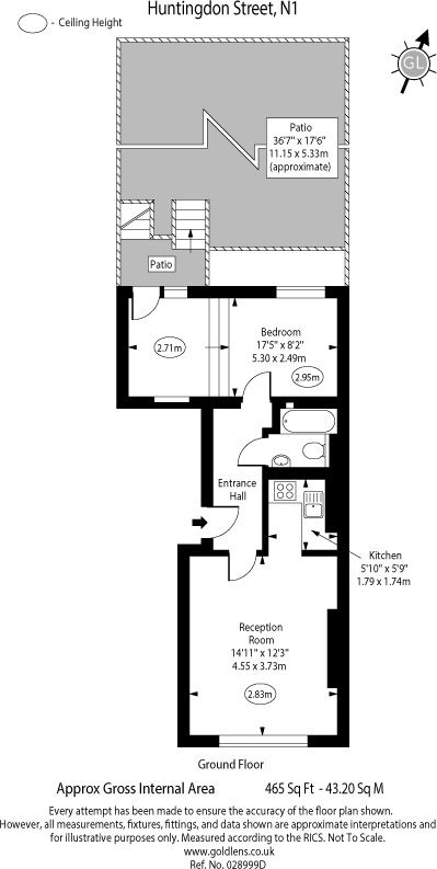
Raised‑ground one‑bedroom with generous private outdoor space close to Upper Street.
Private south‑west facing garden approx 37 ft — rare for central N1
A bright raised ground‑floor one-bedroom apartment set within a handsome Victorian terrace in central Barnsbury. The reception benefits from impressive ceiling heights, restored cornicing and a bay window that adds period character and generous natural light. The compact kitchen and bathroom are modern and the apartment is presented in good decorative order throughout.
The standout is the private south‑west facing garden of approximately 37 feet — unusually large for a central N1 flat and ideal for dining, plants and summer entertaining. The bedroom opens directly onto the garden, giving a sense of space beyond the compact internal footprint and excellent potential to extend living outdoors.
Practical points for buyers: the flat is leasehold with 108 years remaining and an average ground rent of £300. The building is solid brick and likely has limited wall insulation as originally constructed; prospective buyers should consider energy upgrade costs. Broadband and mobile signals are strong and local transport links, shops and restaurants are all within easy walking distance.
This flat will suit a first-time buyer or investor seeking central Barnsbury with rare private outdoor space. The layout is compact — internal living space is typical for a one‑bed conversion — so it’s best for single occupants, couples, or as a lettable asset that can be enhanced to increase value.
1 bedroom flat for sale in Caledonian Road,
Kings Cross, N1 — £450,000 • 1 bed • 1 bath • 603 ft²
1 bedroom flat for sale in Almeida Street,
Barnsbury, N1 — £600,000 • 1 bed • 1 bath • 530 ft²
4 bedroom terraced house for sale in Huntingdon Street,
Barnsbury, N1 — £3,250,000 • 4 bed • 3 bath • 2400 ft²
2 bedroom apartment for sale in Hemingford Road, Barnsbury, Islington, London, N1 — £1,150,000 • 2 bed • 1 bath • 896 ft²
1 bedroom flat for sale in Barnsbury Street,
Barnsbury, N1 — £500,000 • 1 bed • 1 bath • 410 ft²
1 bedroom flat for sale in Barnsbury Street,
Barnsbury, N1 — £550,000 • 1 bed • 1 bath • 457 ft²


















































