Roomy Victorian terrace with garden, garage and no upper chain — ideal for first-time buyers..
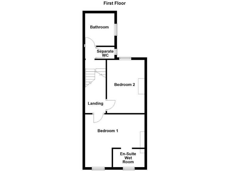
Two double bedrooms and en suite wet room
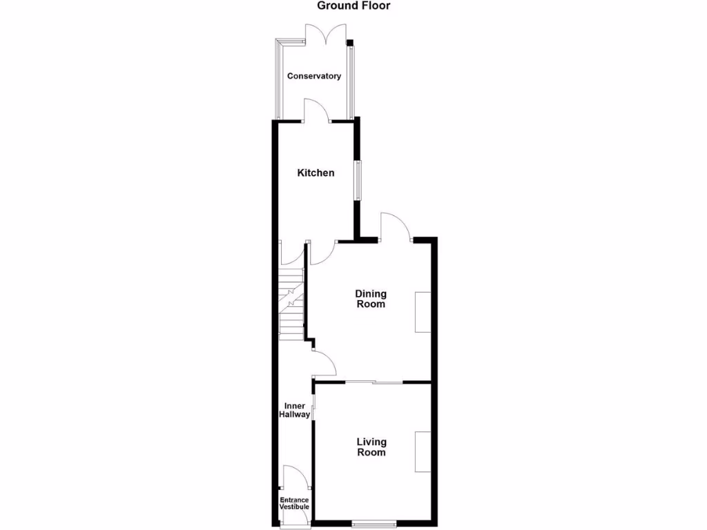
Spacious reception rooms plus conservatory and cellar
Lawned, fully enclosed rear garden and detached garage
Off-road parking at rear; access from back lane
No upper chain — ready for a quicker sale
Dated kitchen and some fixtures need modernisation
Solid brick walls likely uninsulated; insulation work advised
Very high local crime rate and area classed very deprived
This well-proportioned Victorian mid-terrace offers two double bedrooms, generous reception rooms and a lawned rear garden — ideal for a first-time buyer seeking space and scope. The house is offered with no upper chain and benefits from off-road parking via a detached rear garage, plus good transport links to Wakefield city centre and the M1/M62.
Internally the layout is traditional with a living room, separate dining room, kitchen, conservatory and cellar. The accommodation is roomy for the footprint (about 1,120 sq ft) and includes an en suite to the main bedroom and a separate ground-floor W.C., giving practical family-style living from day one.
The property requires some updating: the kitchen and some internal fittings are dated and the solid brick walls likely lack cavity insulation. The EPC is D61. Prospective buyers should be aware the local area records very high crime rates and is classified as very deprived; buyers seeking a quieter or more affluent neighbourhood may prefer to look elsewhere.
Practical positives include freehold tenure, mains gas central heating, double glazing, fast broadband and excellent mobile signal. Early viewing is recommended to appreciate the space, garden and parking, and to assess renovation potential including cellar use and insulation improvements.
3 bedroom terraced house for sale in Doncaster Road, Wakefield, WF1 — £155,000 • 3 bed • 1 bath • 1034 ft²
2 bedroom town house for sale in Fryergate, Wakefield, WF2 — £145,000 • 2 bed • 1 bath • 937 ft²
2 bedroom terraced house for sale in Longfield Terrace, Wakefield, WF2 — £140,000 • 2 bed • 1 bath • 819 ft²
2 bedroom terraced house for sale in Potovens Lane, Wrenthorpe, WF2 — £200,000 • 2 bed • 1 bath • 851 ft²
2 bedroom terraced house for sale in Alverthorpe Road, Wakefield, WF2 — £145,000 • 2 bed • 1 bath • 526 ft²
2 bedroom semi-detached house for sale in First Avenue, Wakefield, West Yorkshire, WF1 — £190,000 • 2 bed • 1 bath • 920 ft²






































































