Three-bedroom mid-terrace near Wakefield centre with garage and parking—ideal for first-time buyers ready to update..
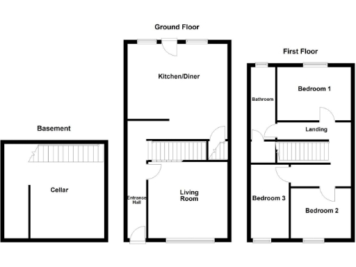
Three bedrooms plus large cellar for storage or conversion
Off-road parking, block-paved rear and detached garage
Freehold with low Council Tax Band A
EPC rating D68; double glazing, install dates unknown
Electric storage heating; likely higher running costs
Solid brick walls assumed with no insulation (upgrade recommended)
Dated kitchen and bathroom—modernisation potential
Local area: deprived with very high crime statistics
This three-bedroom mid-terrace on Doncaster Road offers practical central living within easy reach of Wakefield town centre. The property benefits from a large kitchen/diner, cellar storage, and a block-paved rear area with detached garage — useful for parking or secure storage. Off-road parking is a standout feature for a terrace of this age and location, and the home sits on a freehold title with low council tax band A.
The house retains period character externally with Victorian brickwork and sash-style windows but needs some updating internally. The kitchen is mid-20th century and the bathroom is serviceable; the property would benefit from modernisation to heating and insulation standards (electric storage heaters and assumed solid brick walls with no insulation). The EPC is D68, and glazing is double but install dates are unknown.
Practical buyers — particularly first-time purchasers or investors seeking rental potential — will appreciate the size and layout: a generous living room, sizeable kitchen/diner, three bedrooms and a cellar. Note the area has higher-than-average local crime statistics and sits within a deprived urban area, which may affect resale or rental appeal. An internal inspection is recommended to assess renovation scope and running costs.
Overall, this terrace offers a solid, affordable entry into central Wakefield with immediate parking and garage benefits. It suits buyers willing to carry out targeted improvements to heating, insulation and cosmetic finishes to unlock full potential.
3 bedroom terraced house for sale in Benjamin Street, Wakefield, WF2 — £150,000 • 3 bed • 1 bath • 1045 ft²
3 bedroom semi-detached house for sale in Doncaster Road, Wakefield, WF1 5DF, WF1 — £165,000 • 3 bed • 1 bath • 732 ft²
2 bedroom town house for sale in Fryergate, Wakefield, WF2 — £145,000 • 2 bed • 1 bath • 937 ft²
2 bedroom terraced house for sale in Henry Street, Wakefield, WF2 — £130,000 • 2 bed • 1 bath • 627 ft²
2 bedroom terraced house for sale in Alverthorpe Road, Wakefield, WF2 — £145,000 • 2 bed • 1 bath • 526 ft²
2 bedroom terraced house for sale in Portland Street, Wakefield, WF1 — £110,000 • 2 bed • 1 bath • 711 ft²


























































