Bright two-bedroom apartment near Swanpool Beach with lift and covered parking.
Top-floor two-bedroom apartment with lift access
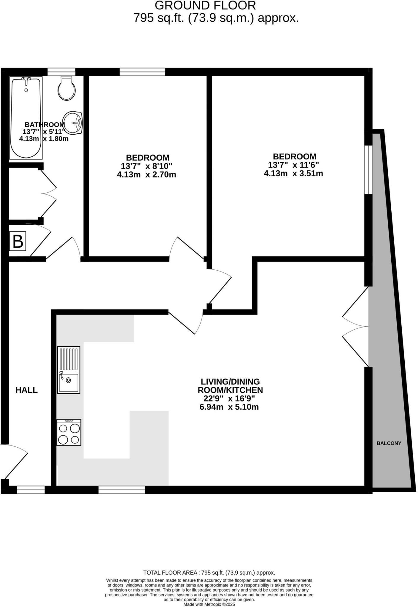
Set on the top floor of a modern low-rise development, this two-bedroom apartment offers a bright open-plan living area and elevated views over nearby greenery. Lift access and an allocated covered parking space add everyday convenience, while the long 999-year lease and no onward chain make it straightforward to purchase. The location is a strong selling point: under a mile from Falmouth town centre, close to Swanpool Beach and local shops, with reliable mobile signal and fast broadband for working from home.
Internally the apartment is well presented with contemporary finishes, double glazing and gas central heating. Both bedrooms easily accommodate doubles and the balcony provides an outdoor spot for morning coffee. The property suits first-time buyers, downsizers seeking low-maintenance living, or investors—holiday letting is allowed and small pets are permitted under the managing agent’s terms.
Notable costs and constraints are clear: the property is leasehold with a service charge currently £3,074 per annum (2025) and a peppercorn ground rent. Communal outdoor space is limited and private garden space is minimal — buyers wanting extensive outdoor amenity should note the small balcony only. The development is modern and timber-clad, so ongoing exterior maintenance and service-charge-funded works are possible over time.
Overall this is a convenient, move-in-ready flat in a seaside town location with practical transport and amenity links. It represents a low-hassle option for those prioritising location, convenience and rental potential, but purchasers should budget for the annual service charge and accept limited private outdoor space.
2 bedroom apartment for sale in Falmouth, TR11 — £175,000 • 2 bed • 1 bath • 590 ft²
2 bedroom flat for sale in Melvill Court, Sea View Road, Falmouth, Cornwall, TR11 — £445,000 • 2 bed • 2 bath • 889 ft²
2 bedroom flat for sale in Penvale Court, Falmouth, TR11 — £230,000 • 2 bed • 1 bath • 667 ft²
2 bedroom apartment for sale in Cliff Road, Seascapes Cliff Road, TR11 — £425,000 • 2 bed • 2 bath • 769 ft²
2 bedroom flat for sale in Spacious & well presented apartment, Falmouth, TR11 — £147,000 • 2 bed • 1 bath • 709 ft²
2 bedroom flat for sale in Swans Reach, Falmouth, TR11 — £227,500 • 2 bed • 1 bath • 428 ft²


























































