Light-filled two-bedroom apartment ideal for relaxed retirement living.
Chain free, long lease (974 years)
Allocated off-street parking space
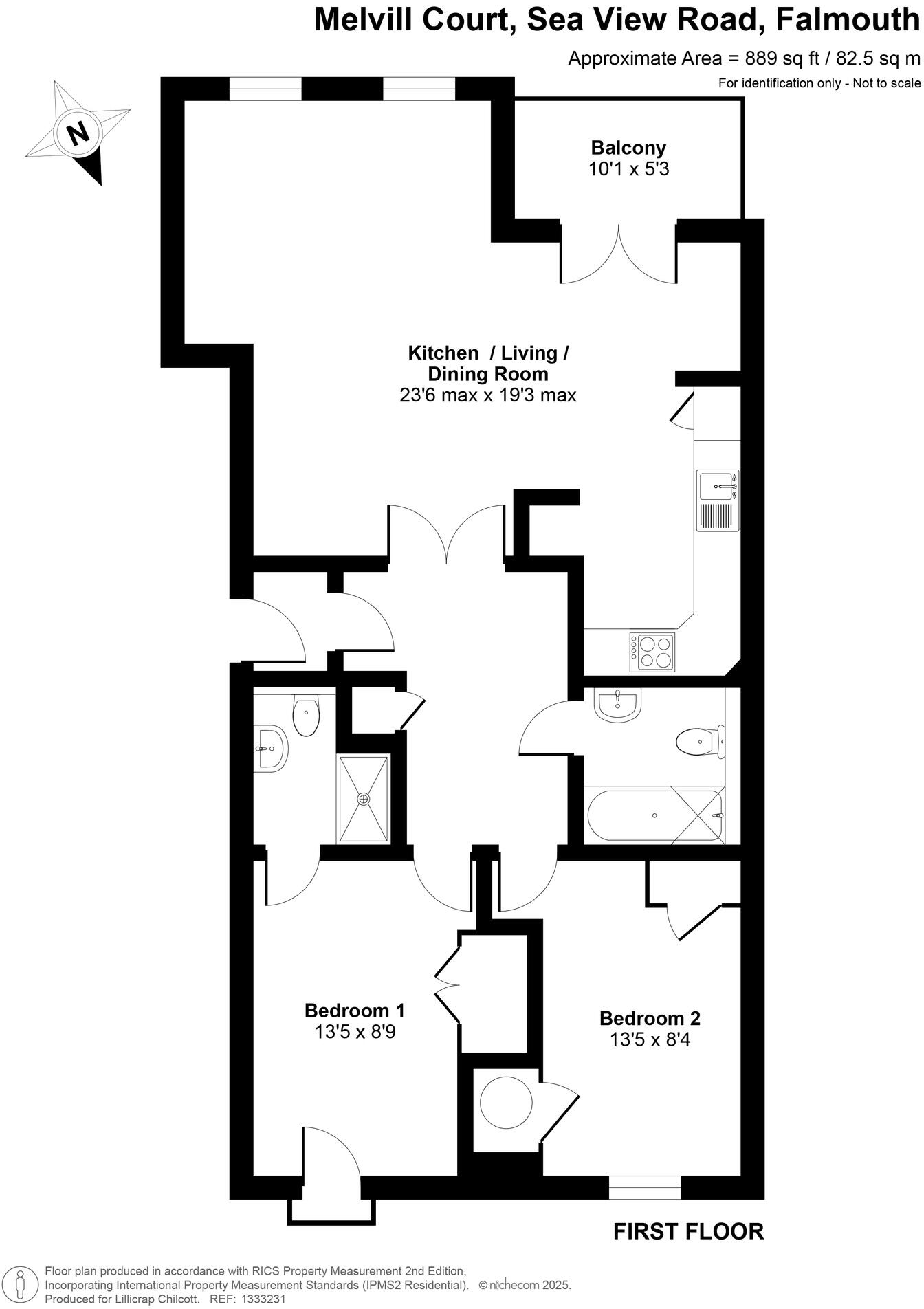
Large open-plan living/dining/kitchen
Covered balcony overlooking communal gardens
Two double bedrooms and two bathrooms
Timber-framed building (assumed insulated)
Double glazing present; install date unknown
No flood risk; fast broadband and mains gas heating
This immaculately presented two-bedroom apartment sits on the first floor of a modern classic building, a short walk from Falmouth’s seafront. The large open-plan living/dining/kitchen opens to a covered balcony with a pleasant outlook over well-kept communal gardens. It includes two bathrooms and an allocated off-street parking space, offered chain free and with a very long lease (974 years).
Designed with comfortable, low-maintenance living in mind, the flat benefits from mains gas central heating, double glazing (install date unknown) and fast broadband — practical for everyday life and remote working. The property is in a very low-crime, very affluent area close to local amenities, parks and good-rated schools, making it suitable for those downsizing who want convenience without compromise.
Buyers should note this is a leasehold apartment (long lease remains) in a timber-framed building (assumed insulated). There are no reported flood risks, and the accommodation is offered chain free, but prospective purchasers should satisfy themselves on glazing age and any building-specific maintenance arrangements.
2 bedroom flat for sale in Hillside Road, Falmouth, TR11 — £199,500 • 2 bed • 1 bath • 795 ft²
2 bedroom flat for sale in Gyllyngdune Manor, Emslie Road, Falmouth, Cornwall, TR11 — £750,000 • 2 bed • 3 bath • 1635 ft²
2 bedroom apartment for sale in Falmouth, TR11 — £250,000 • 2 bed • 1 bath • 715 ft²
2 bedroom flat for sale in Penvale Court, Falmouth, TR11 — £230,000 • 2 bed • 1 bath • 667 ft²
2 bedroom apartment for sale in Falmouth, TR11 — £445,000 • 2 bed • 2 bath • 872 ft²
2 bedroom apartment for sale in Falmouth, TR11 — £175,000 • 2 bed • 1 bath • 590 ft²






























































