Period farmhouse with manège, barns and c.8 acres in the Peak District..
- 6-bedroom period farmhouse with extensive original features
- Approximately 8.08 acres, additional 35 acres available separately
- 40m x 20m manège with Martin Collins Clopf fibre surface
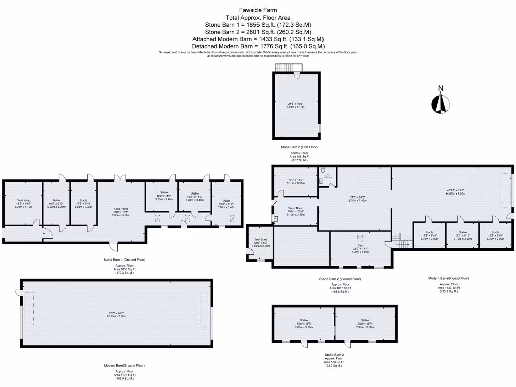
- Multiple stables, stone barns, portal sheds and hardstanding
- Private driveway, elevated position with wide valley views
- EPC rating E; uninsulated stone walls assumed
- Oil-fired heating; higher running costs and maintenance needs
- Slow broadband despite excellent mobile signal
Fawside Farm is a substantial period farmhouse set within circa 8 acres in the Peak District National Park, with an additional 35 acres available by separate negotiation. The house is rich in original character — exposed beams, stone mullioned windows, flagstone floors and a sympathetic renovation — arranged over three floors with six bedrooms and generous living spaces. The grounds include formal cottage gardens, an orchard and sweeping lawns with far-reaching rural views.
The holding is highly equipped for equestrian and agricultural use: a 40m x 20m manège with a Martin Collins Clopf fibre surface, multiple stables, schooling areas, portal-frame machinery sheds, traditional stone barns (including foaling facilities), and substantial hardstanding. Internal tracks and ring-fenced paddocks make the land practical for grazing, livery or smallholding enterprises. The property offers scope for additional development or change of use, subject to planning.
Practical considerations are stated plainly: the EPC rating is E and walls are uninsulated sandstone/limestone (assumed), with primary heating from oil-fired boilers and underfloor/radiator systems. Broadband speeds are slow despite excellent mobile signal. Council tax is described as expensive and the wider area faces pockets of deprivation, factors to weigh for running costs and connectivity. Some outbuildings and yards will need ongoing maintenance and could require investment for adaptions.
This property will suit buyers seeking an established rural equestrian smallholding or a large family home with significant outbuildings and land. It combines elevated privacy, productive pasture and immediate riding amenities within an accessible Peak District location — a rare packaged opportunity for those prepared to manage older building fabric and the operational responsibilities of a working holding.
Equestrian facility for sale in Longnor, Buxton, Derbyshire, SK17 — £1,750,000 • 6 bed • 3 bath • 11083 ft²
Equestrian facility for sale in Longnor, Buxton, Derbyshire, SK17 — £1,950,000 • 6 bed • 3 bath • 11083 ft²
4 bedroom detached house for sale in Longnor, Buxton, Staffordshire, SK17 — £1,350,000 • 4 bed • 4 bath • 4574 ft²
5 bedroom detached house for sale in Quarnford, Buxton, Derbyshire, SK17 — £795,000 • 5 bed • 1 bath • 1798 ft²
3 bedroom farm house for sale in Hall Hill Farmhouse, Newtown, Longnor, SK17 — £625,000 • 3 bed • 2 bath • 1178 ft²
5 bedroom detached house for sale in Wildboarclough, Macclesfield, Cheshire, SK11 — £1,250,000 • 5 bed • 3 bath • 4399 ft²














































































































































































