**Standout Features:**
- Charming period farmhouse newly renovated with 6 bedrooms and 3 bathrooms
- Set on approximately 43.21 acres, ideal for equestrian and agricultural uses
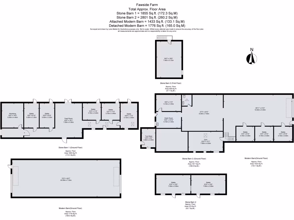
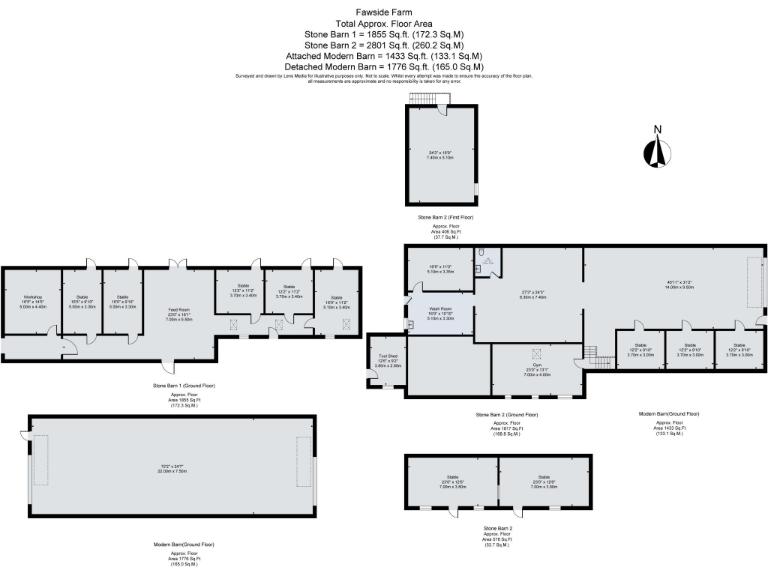
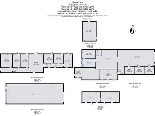
- Extensive traditional and modern outbuildings, including stables and a manège
- Stunning rural views within the Peak District National Park
- Tastefully updated while retaining original character features
- Excellent mobile signal, though broadband speeds may be slow
- Chain-free, providing immediate possession
Nestled within the breathtaking Peak District National Park, Fawside Farm boasts an immaculately presented period farmhouse set against a backdrop of rolling grassland and mature woodland. This idyllic smallholding stretches over 43 acres, offering ample grazing and paddock space, making it perfect for equestrian enthusiasts or those pursuing a rural lifestyle. The elegant six-bedroom residence features a spacious farmhouse kitchen equipped with an Aga, dual-aspect sitting room, and refined period details like exposed beams and stone mullioned windows, creating both comfort and character for family living.
With generous grounds that include beautifully landscaped gardens, an orchard, and various outbuildings, this property provides endless potential for both agriculture and leisure activities. While the farmhouse has been thoughtfully renovated, there is also room for further development of the extensive outbuildings, subject to planning permissions. Enjoy the peace of rural life, just a short drive from local amenities in Longnor and larger market towns, making it an excellent option for families or investors looking for a unique retreat in a stunning location. Don’t miss this rare opportunity to own a piece of charming countryside living in a prime equestrian and agricultural setting.
Equestrian facility for sale in Longnor, Buxton, Derbyshire, SK17 — £1,750,000 • 6 bed • 3 bath • 11083 ft²
5 bedroom detached house for sale in Onecote Leek, Staffordshire, ST13 7RZ, ST13 — £1,000,000 • 5 bed • 4 bath • 3271 ft²
3 bedroom farm house for sale in Hall Hill Farmhouse, Newtown, Longnor, SK17 — £625,000 • 3 bed • 2 bath • 1178 ft²
6 bedroom semi-detached house for sale in Peak Dale, Buxton, Derbyshire, SK17 — £650,000 • 6 bed • 2 bath • 1336 ft²
5 bedroom detached house for sale in Quarnford, Buxton, Derbyshire, SK17 — £795,000 • 5 bed • 1 bath • 1798 ft²
5 bedroom detached house for sale in Wildboarclough, Macclesfield, Cheshire, SK11 — £1,250,000 • 5 bed • 3 bath • 4399 ft²






















































































































































































