**Standout Features:**
- Charming, newly renovated period farmhouse with six bedrooms
- Set within 21.6 acres of land, with an option to purchase an additional 22 acres
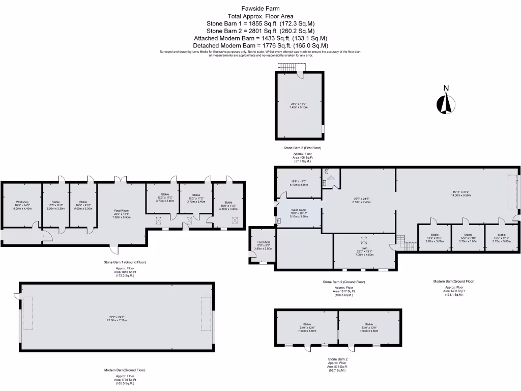
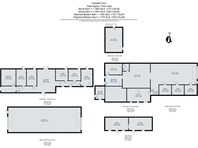
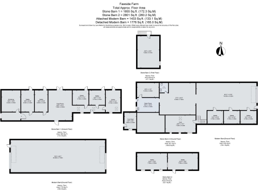
- Excellent equestrian and agricultural facilities, including stables, a manège, and traditional barns
- Scenic location in the Peak District National Park with stunning views
- Expansive cottage gardens with diverse planting and an orchard
- Large footprint (approx. 7,452 sq ft) ideal for families or those seeking space
- Easy access to local amenities and rural lifestyle
**Concerns:**
- EPC Rating: E, indicating potential energy efficiency improvements needed
- Broadband speeds noted as slow, which could affect connectivity
- Council tax classified as expensive, impacting running costs
Nestled in the idyllic Peak District National Park, this exquisite period farmhouse presents a rare opportunity for families and equestrian enthusiasts alike. With six spacious bedrooms and a thoughtful blend of original charm and modern updates, this home provides both comfort and aesthetic appeal. The extensive grounds—spanning 21.6 acres, with additional land available—are beautifully landscaped, offering vibrant gardens, an orchard, and productive paddocks for livestock or recreation. The equestrian facilities are second to none, featuring stables, a manège, and various barns, all primed for both personal use and potential development.
While the property's energy efficiency (EPC Rating: E) indicates room for improvement, its charm and sprawling space make it a compelling choice for those looking to embrace a countryside lifestyle. Conveniently located near the village of Longnor, with essential amenities and excellent transport links to market towns and major cities, this unique farmhouse awaits your personal touch in what could be your perfect rural retreat. Don't miss your chance to secure this exclusive offering—explore the potential of Fawside Farm today!
Equestrian facility for sale in Longnor, Buxton, Derbyshire, SK17 — £1,950,000 • 6 bed • 3 bath • 11083 ft²
3 bedroom farm house for sale in Hall Hill Farmhouse, Newtown, Longnor, SK17 — £625,000 • 3 bed • 2 bath • 1178 ft²
4 bedroom detached house for sale in Longnor, Buxton, Staffordshire, SK17 — £1,450,000 • 4 bed • 4 bath • 4574 ft²
6 bedroom semi-detached house for sale in Peak Dale, Buxton, Derbyshire, SK17 — £650,000 • 6 bed • 2 bath • 1336 ft²
5 bedroom detached house for sale in Onecote Leek, Staffordshire, ST13 7RZ, ST13 — £1,000,000 • 5 bed • 4 bath • 3271 ft²
5 bedroom detached house for sale in Quarnford, Buxton, Derbyshire, SK17 — £795,000 • 5 bed • 1 bath • 1798 ft²






















































































































































































