Rare freehold opportunity with large garden and strong London links.
Grade II listed Tudor-style public house with strong historic character
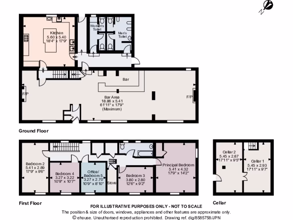
A rare freehold opportunity in Wrecclesham: an attractive Grade II listed Tudor-style public house on a prominent roadside plot of approximately 0.6 acres. The property offers a traditional bar/restaurant with around 65 covers, an extensive rear trade garden for circa 70 covers, and on-site parking for up to 13 vehicles, all within easy reach of Farnham and strong rail links to London Waterloo.
This is aimed at investors or operators seeking a turnkey leisure site or a redevelopment opportunity. The building provides a commercial kitchen, cellar and stores, plus first-floor staff/residential accommodation (four double bedrooms, bathroom, office and kitchen). The premises are currently closed and being sold with vacant possession; trade fixtures and fittings are excluded from the sale and VAT is applicable.
Strengths include the prominent location, generous plot, historic character and a premises licence already in place. There is alternative use potential, subject to planning and listed-building consents from Waverley Borough Council, but purchasers must allow time and budget for any conversion because the property sits within a conservation area and is Grade II listed.
Important considerations are factual: listed-status constraints will restrict alterations and may increase restoration costs; the property is closed so no trading income is offered on completion; branded or leased trade items are excluded; and VAT applies to the sale. The EPC is C-68 and all mains services are understood to be connected. Investors should carry out detailed surveys and pre-application planning enquiries before committing.
High street retail property for sale in The Royal Oak, 89 Oak Hill, Wood Street Village, Guildford, GU3 3DA, GU3 — £750,000 • 1 bed • 1 bath • 2745 ft²
Pub for sale in Dog & Pheasant, Haslemere Road, Brook, Godalming, GU8 5UJ, GU8 — £995,000 • 1 bed • 1 bath • 4809 ft²
Leisure facility for sale in The Rose & Olive Branch Pub, Callow Hill, Virginia Water, GU25 4LH, GU25 — £1,200,000 • 1 bed • 1 bath • 2163 ft²
Restaurant for sale in Withies Inn, Withies Lane, Compton, GU3 1JA, GU3 — £1,695,000 • 1 bed • 1 bath
Pub for sale in Surrey - Wet-led Pub In Residential Area, TW20 — £1,400,000 • 3 bed • 1 bath
Pub for sale in The George & Falcon, Warnford Road, Warnford, Nr Southampton, SO32 3LB, SO32 — £575,000 • 1 bed • 1 bath • 6892 ft²


































